MEIN ERGEBNIS ANPASSEN

PREISGÜNSTIGE 2 Zimmer Altbauwohnung in der Storchengasse + 1 hofseitiger Balkon mit ca. 5,60 m² - nur ca. 3 - 4 Gehminuten zur U-Bahn U4 & U6 - Objektnr. 5620220

1150
Ort
60,04 m²
Fläche
2.0
Zimmer

ECKDATEN
FindMyHome.at // Externe Immobilien-ID5620220 // 19258
ImmobilienartWohnung - Eigentum
Anschrift1150 Wien,Rudolfsheim-Fünfhaus
Baujahr1890
Stock1
Fläche60,04 m²
Zimmer2.0
Bad1
WC1
Kaufpreis:€ 270.000,00
Ratenzahlung:Finanzierungsmöglichkeiten für diese Immobilie anzeigen
Provision: 3% des Kaufpreises zzgl. 20% USt.







BESCHREIBUNG

PREISGÜNSTIGE 2 Zimmer Altbauwohnung in der Storchengasse + 1 hofseitiger Balkon mit ca. 5,60 m² - nur ca. 3 - 4 Gehminuten zur U-Bahn U4 & U6

Die Wohnung ist in einem guten Gesamtzustand und befindet sich in der Storchengasse und wurde vor ca. 17 Jahren generalsaniert. Ein Lift ist vorhanden.

Das Haus wurde um 1890 errichtet, in den Jahren 2007 bis 2009 wurde es generalsaniert (Sockelsanierung) und das Dachgeschoß ausgebaut.

Die U4 / U6 Station Längenfeldgasse ist nur ca. 3 - 4 Gehminuten entfernt.

 

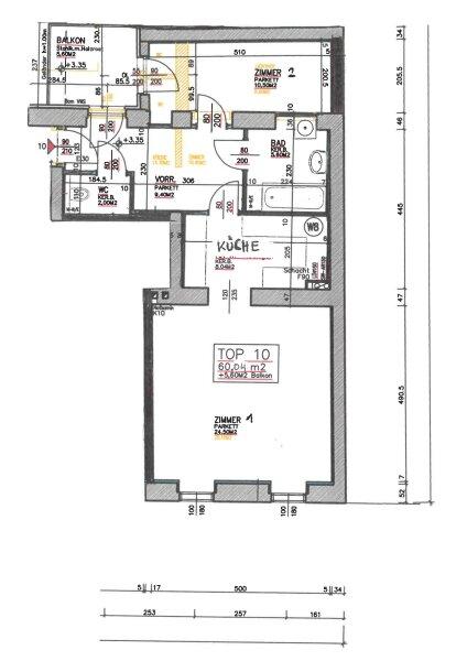
Die Wohnung hat eine Fläche von ca. 60,04 m² und besteht aus:

 

1 geräumigen Vorraum mit ca. 9,40 m²

1 WC extra mit ca. 2 m²

1 Badezimmer mit Badewanne mit ca. 5,60 m²

1 Küche möbliert mit sämtlichen Geräten mit ca. 8,04 m²

1 Zimmer mit ca. 24,50 m²

1 Zimmer mit ca. 10,50 m²

1 Balkon hofseitig mit ca. 5,60 m². Der Balkon ist über das Zimmer mit ca. 10,50 m² oder über den Vorraum begehbar

+ 1  Kellerabteil im Eigentum (grundbücherlich eingetragen) mit ca. 2,10 m²

 

Auch ein Fahrradabstellraum ist vorhanden.

 

Die monatlichen Betriebskosten inklusive Reparaturrücklage betragen gesamt €  269,43

.

 

Für weitere Rückfragen oder einer Besichtigung stehe ich, Herr Klaus Lex, Ihnen unter der Tel.nr.   0664  /  443  20  88   jederzeit gerne zur Verfügung.

Wir weisen darauf hin, dass zwischen dem Vermittler und dem zu vermittelnden Dritten ein familiäres oder wirtschaftliches Naheverhältnis besteht.

Der Vermittler ist als Doppelmakler tätig.

Kabel/SAT/TV: JA
Barrierefrei: JA
Provision: 3% des Kaufpreises zzgl. 20% USt.


Alle Details anzeigen

KONTAKT






 

Lasse dich kostenlos vom Anbieter dieser Immobilie zurückrufen.







 


 
IMMO AGENCY GmbH
Klaus Lex
Telefonnummer anzeigen Telefon Allgemein: +4319043080
Handy Bearbeiter: +436644432088
 
Bitte dem Makler die FindMyHome.at - ID bekanntgeben: 5620220

Bewertungen dieses Anbieters
Qualitätsmakler
Qualitätsmakler:
2015, 2016, 2017, 2019, 2020, 2021, 2023 , 2024,
Netiquette
Freundlichkeit
76 %

BEWERTUNGEN DIESES ANBIETERS

 
Qualit�tsmakler
Qualitätsmakler
2015, 2016, 2017, 2019, 2020, 2021, 22/23 2024
Weiterempfehlung
WIRD GERNE

Freundlichkeit
BESONDERS
FREUNDLICH
Netiquette
FINDMYHOME
NETIQUETTE
Auch du kannst bewerten! 7 Tage nach deiner Anfrage erhältst du dafür von uns ein Bewertungsmail.
Alle Infos zu unseren Auszeichnungen und dem FINDMYHOME.AT Qualitätsprogramm findest du hier: Übersicht anzeigen

FINANZIERUNG
?>

Du willst wissen, wie viel dein Umzug kosten wird?

Mach gleich den kostenlosen Preisvergleich und schau, welche seriösen Anbieter in deiner Region günstig deinen Umzug organisieren


ZUM UMZUGS-VERGLEICH
-->

MYHOME BLOG
SuchAgentin auf FindMyHome.at
Unterschiedlichen Rechtsthemen, köstliche Rezepte, neueste Design-Highlights, sowie aktuelle Technik-Tools für Ihr Eigenheim.


FINDMYHOME.AT SUCHAGENTIN
SuchAgentin auf FindMyHome.at
Hallo, soll ich dir ähnliche Immobilien kostenfrei per E-Mail schicken?


ÄHNLICHE IMMOBILIEN
Aehnliche Immobilie - Vorschaubild 1

Charmante 2-Zimmer Wohnung, Nähe Meiselmarkt - Objektnr. 5568102

52,00 m² - 2.0 Zimmer
239000 €
PLZ: 1150

Mehr anzeigen

Aehnliche Immobilie - Vorschaubild 2

Charmante 2-Zimmer-Wohnung im Herzen des 15. Bezirks... - Objektnr. 5589970

66,00 m² - 2.0 Zimmer
264000 €
PLZ: 1150

Mehr anzeigen

Aehnliche Immobilie - Vorschaubild 3

Charme trifft Komfort - 2 Zimmer Wohnung mit toller Anbindun... - Objektnr. 5589919

66,00 m² - 2.0 Zimmer
283000 €
PLZ: 1150

Mehr anzeigen

Durch die Nutzung unserer Seite erklären Sie sich mit der Verwendung von Cookies zur Verbesserung Ihres Online-Erlebnisses einverstanden. Detaillierte Informationen zu diesem und weiteren Themen erhalten Sie in unserer Datenschutzerklärung.