MEIN ERGEBNIS ANPASSEN

Herrliche Terrassenwohnung I 2 Zimmer I Balkon [A\] - Objektnr. 5620084

virtuell besichtigen
1140
Ort
62,84 m²
Fläche
2.0
Zimmer
WEITERE MEDIEN

Virtuelle Rundgänge


ECKDATEN
FindMyHome.at // Externe Immobilien-ID5620084 // 63533
ImmobilienartEigentum
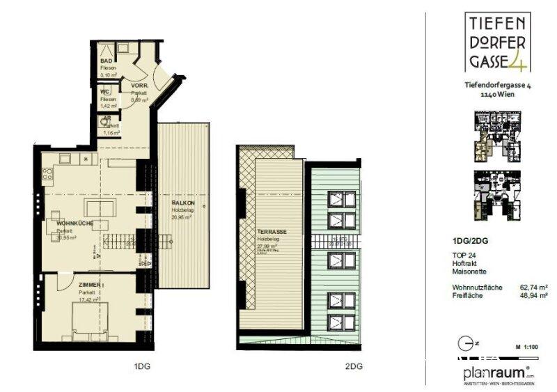
AnschriftTiefendorfergasse 4/24
1140 Wien
Baujahr1900
Befeuerung
Stock4
Geschosse6
Fläche62,84 m²
Terrassen1 (49,00 m²)
Zimmer2.0
Bad1
WC1
Kaufpreis:€ 499.000,00
Ratenzahlung:Finanzierungsmöglichkeiten für diese Immobilie anzeigen
Provision: 3% des Kaufpreises zzgl. 20% USt.







BESCHREIBUNG

Herrliche Terrassenwohnung I 2 Zimmer I Balkon [A\]

Für eine noch größere Auswahl an Immobilien besuchen Sie www.akkadia.at.

Das zur Jahrhundertwende errichtete Gründerzeithaus wurde einer umfassenden Generalsanierung unterzogen und zu einem hochwertigen Wohnprojekt mit insgesamt 28 modernen Wohneinheiten entwickelt.
Durch die vollständige Erneuerung der Gebäudesubstanz, zeitgemäße und durchdachte Grundrisslösungen sowie attraktive Freiflächen in Form von Gärten, Balkonen und Terrassen wurde das Wohnhaus nachhaltig und komfortabel aufgewertet.

Zusätzlich wurde das Gebäude im Rahmen eines Dachgeschoßausbaus um zwei weitere Geschoße erweitert, wodurch weitere exklusive Wohneinheiten mit großzügigen Balkonen und Dachterrassen entstanden sind.
Die Fertigstellung des gesamten Projektes ist bis Ende 2025 geplant.

Die gegenständliche Wohnung befindet sich im Dachgeschoß und verfügt über eine Wohnfläche von ca. 63 m². Es stehen Ihnen ein Vorzimmer, ein großer Wohnbereich mit vorgelagertem Balkon, ein Schlafzimmer, ein Badezimmer mit Dusche und ein separates WC zur Verfügung. Über eine Außentreppe am Balkon gelangen Sie auf die herrliche Dachterrasse.
Ein Kellerabteil ist selbstverständlich vorhanden.
Es besteht auch die Möglichkeit, die Wohnungen zu Anlegerpreisen zu erwerben.

Auf Grund der EU-Richtlinien zum Fernabsatz- und Auswärtsgeschäfte-Gesetz bitten wir um Ihr Verständnis, dass wir Ihnen seit 13. Juni 2014 die Objekt-Unterlagen erst nach Ihrer Bestätigung, dass Sie unser Tätigwerden wünschen und über Ihre Rücktrittsrechte aufgeklärt wurden, zusenden können. Bevor Sie die Unterlagen zugesendet bekommen, erhalten Sie eine Mail in der Sie diese beiden Punkte bestätigen müssen. Vielen Dank für Ihr Vertrauen!

 


Infrastruktur / Entfernungen

Gesundheit
Arzt <75m
Apotheke <100m
Klinik <1.025m
Krankenhaus <750m

Kinder & Schulen
Schule <200m
Kindergarten <350m
Universität <1.325m
Höhere Schule <1.625m

Nahversorgung
Supermarkt <125m
Bäckerei <75m
Einkaufszentrum <1.350m

Sonstige
Geldautomat <125m
Bank <125m
Post <700m
Polizei <100m

Verkehr
Bus <75m
U-Bahn <675m
Straßenbahn <75m
Bahnhof <400m
Autobahnanschluss <4.725m

Angaben Entfernung Luftlinie / Quelle: OpenStreetMap

Klimaanlage: JA
Provision: 3% des Kaufpreises zzgl. 20% USt.


Alle Details anzeigen

KONTAKT






 

Lasse dich kostenlos vom Anbieter dieser Immobilie zurückrufen.







 


 
AKKADIA Immobilienvermittlung GmbH
Michael Schlaffer
Telefonnummer anzeigen Telefon Allgemein: +431512908554
Handy Bearbeiter: +436645225073
 
Bitte dem Makler die FindMyHome.at - ID bekanntgeben: 5620084

Bewertungen dieses Anbieters
Netiquette
Freundlichkeit

BEWERTUNGEN DIESES ANBIETERS

 
Freundlichkeit
BESONDERS
FREUNDLICH
Netiquette
FINDMYHOME
NETIQUETTE
Auch du kannst bewerten! 7 Tage nach deiner Anfrage erhältst du dafür von uns ein Bewertungsmail.
Alle Infos zu unseren Auszeichnungen und dem FINDMYHOME.AT Qualitätsprogramm findest du hier: Übersicht anzeigen

FINANZIERUNG
?>

Du willst wissen, wie viel dein Umzug kosten wird?

Mach gleich den kostenlosen Preisvergleich und schau, welche seriösen Anbieter in deiner Region günstig deinen Umzug organisieren


ZUM UMZUGS-VERGLEICH
-->

MYHOME BLOG
SuchAgentin auf FindMyHome.at
Unterschiedlichen Rechtsthemen, köstliche Rezepte, neueste Design-Highlights, sowie aktuelle Technik-Tools für Ihr Eigenheim.


FINDMYHOME.AT SUCHAGENTIN
SuchAgentin auf FindMyHome.at
Hallo, soll ich dir ähnliche Immobilien kostenfrei per E-Mail schicken?


ÄHNLICHE IMMOBILIEN
Aehnliche Immobilie - Vorschaubild 1

Herrliche vermietete 3-Zimmer-Wohnung mit 2 Balkonen in ruhi... - Objektnr. 5500728

69,93 m² - 3.0 Zimmer
499000 €
PLZ: 1140

Mehr anzeigen

Aehnliche Immobilie - Vorschaubild 2

Sanierter Altbau mit Balkon I Erstbezug - A\ - Objektnr. 5620089

60,75 m² - 3.0 Zimmer
458000 €
PLZ: 1140

Mehr anzeigen

Aehnliche Immobilie - Vorschaubild 3

++Bujatti++ Tolle 3-Zimmer Erstbezug-Wohnung mit großem Gart... - Objektnr. 5499130

73,03 m² - 3.0 Zimmer
499000 €
PLZ: 1140

Mehr anzeigen

Durch die Nutzung unserer Seite erklären Sie sich mit der Verwendung von Cookies zur Verbesserung Ihres Online-Erlebnisses einverstanden. Detaillierte Informationen zu diesem und weiteren Themen erhalten Sie in unserer Datenschutzerklärung.