MEIN ERGEBNIS ANPASSEN

Urbanes Wohnen in naturnaher Umgebung - Objektnr. 5619998

2340
Ort
65,45 m²
Fläche
3.0
Zimmer
WEITERE MEDIEN

ECKDATEN
FindMyHome.at // Externe Immobilien-ID5619998 // 92226
ImmobilienartWohnung - Eigentum
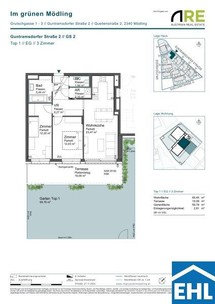
AnschriftGuntramsdorfer Straße 2/1
2340 Mödling
Baujahr2026
Fläche65,45 m²
Terrassen1 (19,00 m²)
Zimmer3.0
Bad1
WC1
 Abstellraum
Kaufpreis:€ 460.000,00
Ratenzahlung:Finanzierungsmöglichkeiten für diese Immobilie anzeigen
Provision: Provision bezahlt der Abgeber.







BESCHREIBUNG

Urbanes Wohnen in naturnaher Umgebung

Im Grünen Mödling Wohnhausanlage am Fliegenspitz

Nachhaltig wohnen. Entspannt leben.

In einer der lebenswertesten Regionen südlich von Wien entsteht ein modernes Wohnensemble, das Architektur, Nachhaltigkeit und Lebensqualität harmonisch vereint. Zwischen Quellenstraße, Grutschgasse und Guntramsdorfer Straße gelegen, präsentiert sich die Wohnhausanlage am Fliegenspitz in Mödling als ruhiger Rückzugsort mit bester Anbindung und viel Grün ideal für individuelle Lebensentwürfe.

Zehn moderne Baukörper mit drei bis vier Geschossen sind über ein barrierefreies, halböffentliches Wegesystem miteinander verbunden und schaffen ein offenes, nachbarschaftliches Wohnumfeld. Insgesamt entstehen 116 schlüsselfertige Wohnungen mit 1 bis 5 Zimmern, ergänzt durch private Eigengärten, Balkone oder Terrassen.

Haus A bietet zudem zwei moderne Praxisräumlichkeiten mit ca. 94 m² und ca. 217 m² mit Parkplätzen direkt vor dem Eingang.

Im Untergeschoß befinden sich Einlagerungsräume sowie 177 Stellplätze.

Großzügige Freibereiche und Kinderspielplätze sind integraler Bestandteil des Konzepts und sorgen für eine hohe Aufenthaltsqualität für entspanntes Wohnen in jeder Lebensphase.

Geplante Fertigstellung: Ende 2026

In der hauseigenen Tiefgarage stehen Stellplätze ab EUR 25.000,--  zum Ankauf zur Verfügung.

Der Verkauf erfolgt provisionsfrei für den Käufer!

 

Das Projekt

  • 116 Eigentums- und Vorsorgewohnungen mit 1 bis 5 Zimmern
  • Wohnungsgrößen von ca. 31 bis 130 m²
  • Private Freiflächen wie Gärten, Balkone oder Terrassen
  • Einlagerungsräume im Unter- und Dachgeschoß
  • 2 Praxisräumlichkeiten (belagsfertige Ausführung/Edelrohbau)
  • 177 Kfz-Stellplätze in der Tiefgarage
  • Ziegelmauerwerk mit integriertem Dämmstoff kombiniert mit Stahlbeton
  • Gemeinschaftliche Freibereiche wie Gärten und Kinderspielplätze
  • Kinderwagen- und Fahrradabstellräume

 

Die Ausstattung

  • Heizung und Warmwasser mittels Kombination aus Geothermie und Fernwärme
  • Wärmeabgabe bzw. Temperierung im Sommer über Bauteilaktivierung
  • PV-Anlagen
  • Vorrüstung Klimaanlagen für Dachgeschoßwohnungen 
  • Kunststoff-/Alufenster mit 3-fach-Verglasung
  • Beschattung mittels elektrisch betriebener Außenraffstores
  • Weitzer Parkett, Eiche Kaschmir in den Wohnräumen
  • Feinsteinzeug Cerabella Bari in den Nassräumen
  • Hochwertige Sanitärausstattung

 

Die Lage

Im grünen Mödling vereinen sich Natur, Stadtleben und Lebensqualität auf besondere Weise. Eine ausgezeichnete Infrastruktur vor Ort bietet alles, was den Alltag angenehm und unkompliziert macht. Gleichzeitig lädt der angrenzende Wienerwald mit vielfältigen Freizeit-, Kultur- und Naturangeboten zur Erholung ein. Dank der sehr guten Anbindung sowie der Nähe zu Bahnhof und Autobahn ist Wien in rund 45 Minuten bequem erreichbar.

Die Mödlinger Innenstadt liegt nur 510 Minuten mit dem Rad, Auto oder Bus entfernt und ist auch fußläufig in etwa 1015 Minuten erreichbar, der Bahnhof in ca. 20 Minuten.

Als ehemaliger Sitz der Babenberger überzeugt Mödling mit einem lebendigen Mix aus Geschichte, Kultur und urbanem Leben. Entlang der charmanten Hauptstraße finden sich zahlreiche Nahversorger, Fachärzte, Bäcker, Restaurants, Cafés, Geschäfte, Fitnessstudios, Banken und Museen alles, was das tägliche Leben bereichert.

Buslinien

  • Linie 1 (Bahnhof Prießnitztal)
  • Linie 3 (Bahnhof WIFI/Mödlinger Zentrum)
  • Linie 263 (Bahnhof Guntramsdorf)

 

Ganz in der Nähe der Anlage befindet sich ein weiteres Projekt Grüne Stadtvillen in dem wir ebenso Eigentums- sowie Vorsorgewohnungen anbieten. Für nähere Informationen hierfür stehen wir selbstverständlich auch gerne zur Verfügung.

Einen detaillierteren Einblick finden Sie auf unserer EHL-Projekthomepage!

Wir weisen darauf hin, dass zwischen dem Vermittler und dem zu vermittelnden Dritten ein familiäres oder wirtschaftliches Naheverhältnis besteht.

Der Vermittler ist als Doppelmakler tätig.


Infrastruktur / Entfernungen

Gesundheit
Arzt <650m
Apotheke <175m
Klinik <650m
Krankenhaus <1.575m

Kinder & Schulen
Schule <325m
Kindergarten <325m
Höhere Schule <375m

Nahversorgung
Supermarkt <275m
Bäckerei <1.075m
Einkaufszentrum <1.200m

Sonstige
Bank <750m
Geldautomat <750m
Post <750m
Polizei <1.050m

Verkehr
Bus <75m
U-Bahn <6.125m
Bahnhof <1.150m
Autobahnanschluss <3.325m
Straßenbahn <3.775m

Angaben Entfernung Luftlinie / Quelle: OpenStreetMap

Klimaanlage: JA
Barrierefrei: JA
Provision: Provision bezahlt der Abgeber.


Alle Details anzeigen

KONTAKT






 

Lasse dich kostenlos vom Anbieter dieser Immobilie zurückrufen.







 


 
EHL Wohnen GmbH
Daniel Bolataschwili
Telefonnummer anzeigen Telefon Allgemein: +4315127690414
Handy Bearbeiter: +4366488160127
 
Bitte dem Makler die FindMyHome.at - ID bekanntgeben: 5619998

Bewertungen dieses Anbieters
Qualitätsmakler
Qualitätsmakler:
Netiquette
Freundlichkeit
82 %

BEWERTUNGEN DIESES ANBIETERS

 
Qualitätsmakler
UNSERE HALL OF FAME DER BESTEN ANBIETER
Qualit�tsmakler
Qualitätsmakler
2012, 2013, 2014, 2015, 2016, 2017, 2018, 2019, 2020, 2021, 22/23, 2024, 2025
Weiterempfehlung
WIRD GERNE

Freundlichkeit
BESONDERS
FREUNDLICH
Netiquette
FINDMYHOME
NETIQUETTE
Auch du kannst bewerten! 7 Tage nach deiner Anfrage erhältst du dafür von uns ein Bewertungsmail.
Alle Infos zu unseren Auszeichnungen und dem FINDMYHOME.AT Qualitätsprogramm findest du hier: Übersicht anzeigen

FINANZIERUNG
?>

Du willst wissen, wie viel dein Umzug kosten wird?

Mach gleich den kostenlosen Preisvergleich und schau, welche seriösen Anbieter in deiner Region günstig deinen Umzug organisieren


ZUM UMZUGS-VERGLEICH
-->

MYHOME BLOG
SuchAgentin auf FindMyHome.at
Unterschiedlichen Rechtsthemen, köstliche Rezepte, neueste Design-Highlights, sowie aktuelle Technik-Tools für Ihr Eigenheim.


FINDMYHOME.AT SUCHAGENTIN
SuchAgentin auf FindMyHome.at
Hallo, soll ich dir ähnliche Immobilien kostenfrei per E-Mail schicken?


ÄHNLICHE IMMOBILIEN
Aehnliche Immobilie - Vorschaubild 1

Urbanes Wohnen in naturnaher Umgebung - Objektnr. 5619940


73,04 m² - 3.0 Zimmer
489000 €
PLZ: 2340

Mehr anzeigen

Aehnliche Immobilie - Vorschaubild 2

Modern wohnen - nachhaltig gebaut - Objektnr. 5619925


73,35 m² - 3.0 Zimmer
488500 €
PLZ: 2340

Mehr anzeigen

Aehnliche Immobilie - Vorschaubild 3

Offenes Wohnkonzept mit Nachbarschaftscharakter - Objektnr. 5619944

72,50 m² - 3.0 Zimmer
492500 €
PLZ: 2340

Mehr anzeigen

Durch die Nutzung unserer Seite erklären Sie sich mit der Verwendung von Cookies zur Verbesserung Ihres Online-Erlebnisses einverstanden. Detaillierte Informationen zu diesem und weiteren Themen erhalten Sie in unserer Datenschutzerklärung.