MEIN ERGEBNIS ANPASSEN

Erstbezug nach Sanierung - 5-Zimmer-Wohnung mit Terrasse und privatem Zugang - Objektnr. 5619795

  • Außenansicht
  • Terrasse
  • Wohnzimmer mit offener Küche
  • Schlafzimmer
  • Eingangsbereich
  • Zimmer mit Einbauschrank
  • Badezimmer mit Dusche
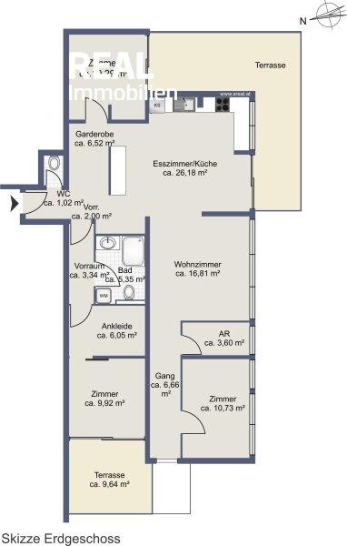
  • Planskizze
5020
Ort
€ 2.500,00
Gesamtkosten
108,47 m²
Fläche
5.0
Zimmer

ECKDATEN
FindMyHome.at // Externe Immobilien-ID5619795 // 960/74606
ImmobilienartWohnung - Miete
Anschrift5020 Salzburg
Baujahr1972
Fläche108,47 m²
Terrassen2
Zimmer5.0
WC2
Brutto-Miete:€ 2.500,00
Betriebskosten (inkl. MwSt):€ 328,21
Mehrwertsteuer:€ 101,78
Monatliche Gesamtkosten:€ 2.500,00
Provision: 5.271,29 ? inkl. 20% USt.




BESCHREIBUNG

Erstbezug nach Sanierung - 5-Zimmer-Wohnung mit Terrasse und privatem Zugang

Diese großzügige 5-Zimmer-Wohnung in Salzburg-Nonntal ist ein Erstbezug nach Sanierung und überzeugt durch eine moderne Ausstattung sowie eine durchdachte Raumaufteilung.

Der helle Wohn- und Essbereich bildet das Herzstück der Wohnung. Die offene Küche ist mit einer modernen Einbauküche inklusive aller Geräte ausgestattet und fügt sich harmonisch in den Raum ein.

Von fast allen Zimmern aus gelangt man direkt auf die Terrasse. Dadurch wirken die Räume besonders freundlich und lichtdurchflutet. Die Terrasse bietet zusätzlichen Platz im Freien und erweitert den Wohnbereich.

Ein Schlafzimmer verfügt über einen begehbaren Schrank und bietet praktischen Stauraum. Im Eingangsbereich befindet sich eine Einbaugarderobe. Zusätzlich steht ein Abstellraum zur Verfügung.

Das Badezimmer ist mit einer Dusche ausgestattet. Ein separates Gäste-WC ist ebenfalls vorhanden.

Die Wohnung kann entweder über den regulären Hauseingang betreten werden oder direkt über die Terrasse. So besteht die Möglichkeit eines eigenen, privaten Zugangs.

(Der Eingangsbereich/die Terrasse befindet sich derzeit noch in Fertigstellung.)

Zwei Stellplätze sowie ein Kellerabteil runden dieses attraktive Angebot ab.


Infrastruktur / Entfernungen

Gesundheit
Arzt <500m
Apotheke <500m
Klinik <1.000m
Krankenhaus <1.000m

Kinder & Schulen
Schule <500m
Kindergarten <1.000m
Universität <500m
Höhere Schule <2.000m

Nahversorgung
Supermarkt <500m
Bäckerei <500m
Einkaufszentrum <1.500m

Sonstige
Bank <500m
Geldautomat <500m
Post <1.000m
Polizei <1.000m

Verkehr
Bus <500m
Bahnhof <1.000m
Autobahnanschluss <4.500m
Flughafen <4.000m

Angaben Entfernung Luftlinie / Quelle: OpenStreetMap

Provision: 5.271,29 ? inkl. 20% USt.


Alle Details anzeigen

KONTAKT






 

Lasse dich kostenlos vom Anbieter dieser Immobilie zurückrufen.







 


 
s REAL Immobilienvermittlung GmbH
Raveena Janagal
Telefonnummer anzeigen Telefon Allgemein: +435010026223
Handy Bearbeiter: +436648579198
 
Bitte dem Makler die FindMyHome.at - ID bekanntgeben: 5619795

Bewertungen dieses Anbieters
Qualitätsmakler
Qualitätsmakler:
2015, 2016, 2017, 2018, 2019, 2020, 2021 , 2025,
Netiquette
Freundlichkeit
80 %

BEWERTUNGEN DIESES ANBIETERS

 
Qualit�tsmakler
Qualitätsmakler
2015, 2016, 2017, 2018, 2019, 2020, 2021 2025
Weiterempfehlung
WIRD GERNE

Freundlichkeit
BESONDERS
FREUNDLICH
Netiquette
FINDMYHOME
NETIQUETTE
Auch du kannst bewerten! 7 Tage nach deiner Anfrage erhältst du dafür von uns ein Bewertungsmail.
Alle Infos zu unseren Auszeichnungen und dem FINDMYHOME.AT Qualitätsprogramm findest du hier: Übersicht anzeigen


Du willst wissen, wie viel dein Umzug kosten wird?

Mach gleich den kostenlosen Preisvergleich und schau, welche seriösen Anbieter in deiner Region günstig deinen Umzug organisieren


ZUM UMZUGS-VERGLEICH
-->

MYHOME BLOG
SuchAgentin auf FindMyHome.at
Unterschiedlichen Rechtsthemen, köstliche Rezepte, neueste Design-Highlights, sowie aktuelle Technik-Tools für Ihr Eigenheim.


FINDMYHOME.AT SUCHAGENTIN
SuchAgentin auf FindMyHome.at
Hallo, soll ich dir ähnliche Immobilien kostenfrei per E-Mail schicken?


Durch die Nutzung unserer Seite erklären Sie sich mit der Verwendung von Cookies zur Verbesserung Ihres Online-Erlebnisses einverstanden. Detaillierte Informationen zu diesem und weiteren Themen erhalten Sie in unserer Datenschutzerklärung.