MEIN ERGEBNIS ANPASSEN

Ein PENTHOUSE zum VERLIEBEN - in einem der schönsten Wohnbezirke und in einer Sackstraße gelegen! von Graz - FERTIGSTELLUNG SOMMER 2027 - Objektnr. 5619768


ökologisch beheizt
8041
Ort
103,67 m²
Fläche
5.0
Zimmer
WEITERE MEDIEN

ECKDATEN
FindMyHome.at // Externe Immobilien-ID5619768 // 294928
ImmobilienartWohnung - Eigentum
AnschriftJohann-Koller-Weg
8041 Graz,07.Bez.:Liebenau
Baujahr2024
Befeuerung
Fernwärme
Stock2
Fläche103,67 m²
Terrassen1 (41,00 m²)
Zimmer5.0
Bad1
WC1
Kaufpreis:€ 570.185,00
Ratenzahlung:Finanzierungsmöglichkeiten für diese Immobilie anzeigen
Provision:







BESCHREIBUNG

Ein PENTHOUSE zum VERLIEBEN - in einem der schönsten Wohnbezirke und in einer Sackstraße gelegen! von Graz - FERTIGSTELLUNG SOMMER 2027

Ein PENTHOUSE zum VERLIEBEN - in einem der schönsten Wohnbezirke und in einer Sackstraße gelegen!  von Graz - FERTIGSTELLUNG SOMMER 2027

 

Dieses beeindruckende Penthouse in einer der besten Wohngegenden von Graz bietet auf 103,67 m² Wohnfläche und einer großzügigen Terrasse mit 45 m², Süd/Ostausrichtung, alles, was man sich für gehobenes Wohnen wünscht. Hier genießen Sie nicht nur absolute Ruhe, sondern auch exzellente Verkehrsanbindungen sowie eine hervorragend ausgebaute Infrastruktur. Das Neubauprojekt besticht durch erstklassige Baumeisterqualität und ermöglicht es den Käufern, noch bei der Gestaltung der Wohnung mitzuentscheiden. Diese flexible Wohnraumgestaltung, zusammen mit der Möglichkeit, die Aufteilung zu verändern, bietet zahlreiche Optionen für unterschiedliche Lebensstile.

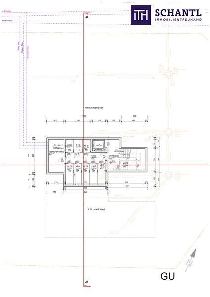
Details zur PH Top 7 im 2. Obergeschoss:

  • Wohnfläche mit 103,67 m²
  • Dachterrasse mit 41m², ideal für sonnige Stunden
  • 5 Zimmer, hier können Sie nach Belieben Ihre eigene Ideen bei der Innengestaltung einbringen
  • Wohn-/Essbereich mit 29,54m²
  • Schlafzimmer mit 12,8m²
  • Schrankraum mit 6,11m²
  • zweites Schlafzimmer 11,45m²
  • Kinderzimmer mit 11,45m²
  • Badezimmer mit Fenster 6,46m², Dusche und Waschmaschinenanschluss & FENSTER
  • WC mit 1,52m² und Handwaschbecken
  • Vorraum mit 3,33m²
  • Diele mit 9,41m²
  • Keller 3,18m²
  • Carport mit 14m², inklusive Leerverrohrung für Elektrofahrzeuge
  • es wurden Referenzbilder vom Bauträger zur Verfügung gestellt!!!
  • wir könnten WC und Abstellraum zusammenlegen, noch vergrößern und dort ein Fenster machen und das als Bad verwenden, WC und AR dann dort, wo jetzt Bad ist.
  • zweite Möglichkeit im obersten Geschoß, ein Dachfenster mit elektrischem Öffner

Kaufpreis:

  • Wohnung (Top 7): € 570.185,00 brutto
  • Parkplatz: € 17.500,00 brutto (Parkmöglichkeit auch in der Sackstraße vorhanden) 

 

HIGHLIGHTS:

  • PROJEKT FERTIGSTELLUNG SOMMER 2027!
  • SENSATIONS PREIS € 5.500,00 / m² (nur für die ersten 4 verkauften Einheiten)!
  • provisionsfrei für den Käufer!
  • top Lage in einem der beliebtesten Wohnbezirke von Graz und in einer Sackstraße gelegen!
  • exzellente Verkehrsanbindung und Infrastruktur
  • Flexibilität bei der Raumgestaltung
  • hohe Baumeisterqualität
  • weitere Wohnungen siehe Preisliste stehen noch zur Verfügung.

 

Worauf noch warten

Vereinbaren Sie noch heute eine Besichtigung der Lage und eine persönliche Beratung mit uns!
Sie wollen Ihre Immobilie verkaufen Dann sind Sie bei uns goldrichtig!
Wir sind gerne für Sie da und unterstützen Sie unverbindlich bei der Bewertung Ihrer Immobilie. Mit viel Sorgfalt stellen wir Ihnen alle wichtigen Informationen und Unterlagen zusammen, damit Sie die besten Entscheidungen treffen können.
In Kooperation mit unserer SFI Vermögenstreuhand begleiten wir Sie bei der Verwirklichung Ihres Traumobjekts und unterstützen Sie beim nachhaltigen Vermögensaufbau. Mit unseren erfahrenen Experten sorgen wir dafür, dass Sie die
besten Konditionen erhalten damit Ihre Träume Wirklichkeit werden!


www.schantl-ith.at in Kooperation mit sfi-invest.com


Die Angaben über das angebotene Objekt erfolgen mit der Sorgfalt eines ordentlichen Immobilienmaklers; für die Richtigkeit solcher Angaben, die auf Informationen der über das Objekt Verfügungsberechtigten beruhen, wird keine Gewähr geleistet!

 

 

Wir weisen darauf hin, dass zwischen dem Vermittler und dem zu vermittelnden Dritten ein familiäres oder wirtschaftliches Naheverhältnis besteht.

Der Vermittler ist als Doppelmakler tätig.


Infrastruktur / Entfernungen

Gesundheit
Arzt <250m
Apotheke <500m
Klinik <3.750m
Krankenhaus <3.250m

Kinder & Schulen
Schule <500m
Kindergarten <250m
Universität <2.500m
Höhere Schule <3.500m

Nahversorgung
Supermarkt <250m
Bäckerei <250m
Einkaufszentrum <750m

Sonstige
Geldautomat <500m
Bank <500m
Post <750m
Polizei <750m

Verkehr
Bus <250m
Straßenbahn <750m
Autobahnanschluss <1.500m
Bahnhof <500m
Flughafen <5.750m

Angaben Entfernung Luftlinie / Quelle: OpenStreetMap

Kabel/SAT/TV: JA
Barrierefrei: JA
Provision:


Alle Details anzeigen

KONTAKT






 

Lasse dich kostenlos vom Anbieter dieser Immobilie zurückrufen.







 


 
Schantl ITH Immobilientreuhand GmbH
Ursula Seiwald
Telefonnummer anzeigen Handy Bearbeiter: +436645725475
 
Bitte dem Makler die FindMyHome.at - ID bekanntgeben: 5619768

Bewertungen dieses Anbieters
Qualitätsmakler
Qualitätsmakler:
2015, 2016, 2018, 2019, 2020, 2021, 2023 , 2024, 2025,
Netiquette
Freundlichkeit
80 %

BEWERTUNGEN DIESES ANBIETERS

 
Qualit�tsmakler
Qualitätsmakler
2015, 2016, 2018, 2019, 2020, 2021, 22/23, 2024, 2025
Antwortzeit
ø 48h ANTWORT
Weiterempfehlung
WIRD GERNE

Freundlichkeit
BESONDERS
FREUNDLICH
Netiquette
FINDMYHOME
NETIQUETTE
Auch du kannst bewerten! 7 Tage nach deiner Anfrage erhältst du dafür von uns ein Bewertungsmail.
Alle Infos zu unseren Auszeichnungen und dem FINDMYHOME.AT Qualitätsprogramm findest du hier: Übersicht anzeigen

FINANZIERUNG
?>

Du willst wissen, wie viel dein Umzug kosten wird?

Mach gleich den kostenlosen Preisvergleich und schau, welche seriösen Anbieter in deiner Region günstig deinen Umzug organisieren


ZUM UMZUGS-VERGLEICH
-->

MYHOME BLOG
SuchAgentin auf FindMyHome.at
Unterschiedlichen Rechtsthemen, köstliche Rezepte, neueste Design-Highlights, sowie aktuelle Technik-Tools für Ihr Eigenheim.


FINDMYHOME.AT SUCHAGENTIN
SuchAgentin auf FindMyHome.at
Hallo, soll ich dir ähnliche Immobilien kostenfrei per E-Mail schicken?


ÄHNLICHE IMMOBILIEN
Aehnliche Immobilie - Vorschaubild 1

Licht, Luft und Lebensfreude - Ihre neue 4-Zimmer-Wohnung mi... - Objektnr. 5617781

88,88 m² - 4.0 Zimmer
474900 €
PLZ: 8041

Mehr anzeigen

Aehnliche Immobilie - Vorschaubild 2

Peterstal Living - Ruhe, Komfort, Stadtnähe - Objektnr. 5619393

96,36 m² - 4.0 Zimmer
559550 €
PLZ: 8042

Mehr anzeigen

Aehnliche Immobilie - Vorschaubild 3

JUWEL! Wohnoase mit großem Privatgarten in Graz-Liebenau - g... - Objektnr. 5617787

112,34 m² - 5.0 Zimmer
584800 €
PLZ: 8041

Mehr anzeigen

Durch die Nutzung unserer Seite erklären Sie sich mit der Verwendung von Cookies zur Verbesserung Ihres Online-Erlebnisses einverstanden. Detaillierte Informationen zu diesem und weiteren Themen erhalten Sie in unserer Datenschutzerklärung.