MEIN ERGEBNIS ANPASSEN

Hundertwasser lässt grüßen | DG-ERSTBEZUG mit TERRASSE und LOGGIA | Ost/West-Ausrichtung | Hofseitige Schlafzimmer | Für Eigennutzer oder Anleger - Objektnr. 5619693


ökologisch beheizt
virtuell besichtigen
1030
Ort
92,49 m²
Fläche
3.0
Zimmer
WEITERE MEDIEN

ECKDATEN
FindMyHome.at // Externe Immobilien-ID5619693 // 56551
ImmobilienartEigentum
AnschriftBlattgasse 11/21-22
1030 Wien
Baujahr2027
Befeuerung
Luftwärmepumpe
Stock4
Geschosse6
Fläche92,49 m²
Terrassen1 (11,00 m²)
Zimmer3.0
Bad1
WC2
 Abstellraum
Kaufpreis:€ 1.140.000,00
Ratenzahlung:Finanzierungsmöglichkeiten für diese Immobilie anzeigen
Provision:







BESCHREIBUNG

Hundertwasser lässt grüßen | DG-ERSTBEZUG mit TERRASSE und LOGGIA | Ost/West-Ausrichtung | Hofseitige Schlafzimmer | Für Eigennutzer oder Anleger

Wohnen zwischen Stadtpark und Prater - Jetzt 360°-VR-Tour buchen
 

In der ruhigen Blattgasse im 3. Bezirk, nur wenige Schritte vom Hundertwasserhaus entfernt, entstehen im neu ausgebauten Dachgeschoss lichtdurchflutete DG-Eigentumswohnungen und elegante Apartments zur gewerblichen Nutzung im Gartengeschoss. Modernste Architektur mit großzügigen Glasflächen verleiht jeder DG-Einheit Offenheit und Charakter. Krönung des Projekts ist das Penthouse, das mit Dachterrasse einen privaten Rückzugsort über den Dächern Wiens neu definiert. Weiters steht auch noch eine Altbauwohnung im Bestand im 3. Obergeschoss zum Verkauf. Die Lage überzeugt zudem durch ihre ausgezeichnete Anbindung, die eine schnelle Erreichbarkeit des Flughafens Wien mit dem Auto sowie mit dem City Airport Train (CAT) ermöglicht, und die hervorragende Infrastruktur.

PROJEKT

  • 4 exklusive 2-Zimmer-Dachgeschosswohnungen im 1. DG (Zusammenlegungen bis 4-Zimmer noch möglich)
  • 1 luxuriöses Penthouse (4 Zimmer, gesamtes 2. DG) mit Dachgarten und optionalem Pool (optional 2 Mietstellplätze direkt gegenüber in der Sofiensäle-Garage)
  • 2 Apartments zur gewerblichen Nutzung im Gartengeschoss
  • 1 Altbauwohnung (Bestand) im 3. OG
  • Attraktive Gärten, Loggien und Terrassen
  • Ost und West Ausrichtung 
  • Repräsentatives Jahrhundertwendehaus mit elegant gegliederter Fassade
  • Zentrale City-Lage nahe Stadtpark, Hundertwasserhaus, 1. Bezirk, Donaukanal, Prater

In den exklusiven DG-Eigentumswohnungen und gewerblichen Apartments sorgen hochwertige Materialien, edle Details und moderne Technik für zeitgemäßen Komfort mit Stil. Das Penthouse hebt sich mit erlesenen Highlights wie einem Wintergarten, einer großen Dachterrasse und einem optionalen Pool deutlich ab  ein Refugium, das Wohnen zur Erfahrung macht und höchste Ansprüche kompromisslos erfüllt.

HIGHLIGHTS

  • Hochwertige Dielenböden aus Eiche von SCHEUCHER
  • Edle großformatige 120 x 120 cm Fliesen von ATLAS CONCORDE mit Marmor-Effekt 
  • Keramiken und stylische Bronze-Armaturen u. a. von HANSGROHE und DURAVIT 
  • Wandbündige Innentüren von JOSKO 
  • Wohnungseingangstüren (RC3) von DANA 
  • Fenster, Terrassen- und Loggientüren aus Alu mit 3fach-Verglasung
  • DF-Fenster von VELUX (Holz-Alu) mit 3fach-Verglasung
  • Außenliegender, elektrischer Sonnenschutz (Raffstore bei Fenster und Türen - Markisetten bei Schrägverlasungen)
  • Komfortable Fußbodenheizung
  • Energieeffiziente Luftwärmepumpe
  • Moderne Multisplit-Klimageräte
  • Außenbereiche mit großformatigem Fliesenbelag von ATLAS CONCORDE und Wasseranschluss
  • Optionales Pool und Außendusche (Penthouse-Dachterrasse)
  • Loungearea mit getuftetem Kunstrasen von RESIGRAS (Penthouse-Dachterrasse)
  • Wintergarten mit spektakulären 90° aufklappbaren Fensterflächen (Penthouse)
  • Kellerabteil zu jeder Einheit 
  • Fahrradabstellraum
  • Renommierte ausführende Baufirma (WIDERHOFER GROUP)

LAGE

  • 3 Min. zu Fuß zur Linie 1
  • 3 Min. zu Fuß zum Hundertwasserhaus
  • 4 Min. mit dem Rad zum Grünen Prater
  • 5 Min. mit dem Rad zum Stadtpark & 1. Bezirk
  • 7 Min. zu Fuß zum Donaukanal
  • 10 Min. zu Fuß zur U3/U4 (Landstraße)
  • 10 Min. zu Fuß nach Wien Mitte / The Mall
  • 20 Min. mit dem Auto zum Flughafen Wien
  • 27 Min. öffentlich (CAT) zum Flughafen Wien

INFOS ZUR DG-WOHNUNG

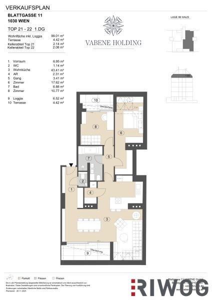
  • WOHNFLÄCHE: ca. 92,5 m²
  • ZIMMER: 3
  • TERRASSE: ca. 4,4 m²
  • LOGGIA: ca. 6,5 m²
  • GESAMTFLÄCHE (INKL. LOGGIA): ca. 99 m²
  • KELLERABTEILE: 2 Abteile je ca. 2,1 m² 
  • AUSRICHTUNG: Ost und West
  • GESCHOSS: 1. DG

Baustart bereits erfolgt!

Geplante Fertigstellung: ca. Sommer 2027

Betriebskosten folgen!

Kaufpreis Eigennutzer: € 1.140.000,00 
Kaufpreis Anleger netto: € 1.026.000 zzgl. 20 % USt.

Vertragserrichtung (gebunden): 1,5 % vom Kaufpreis zzgl. 20 % USt., zzgl. Barauslagen und Beglaubigungskosten - Kanzlei Engin-Deniz Reimitz Hafner Rechtsanwälte KG - Abwicklung nach BTVG (Bauträgervertragsgesetz)

Provision: 3% des Kaufpreises zzgl. 20 % USt.
 

BUCHEN SIE JETZT IHRE 360°-TOUR MIT VR-BRILLE

PROJEKTSEITE BLATTGASSE 11 (KLICK ME)


Wir freuen uns auf Ihre schriftliche Anfrage, um Ihnen dieses exklusive Projekt näher bringen zu dürfen. 

Wir weisen darauf hin, dass zwischen dem Vermittler und dem zu vermittelnden Dritten ein familiäres oder wirtschaftliches Naheverhältnis besteht.

Der Vermittler ist als Doppelmakler tätig.


Infrastruktur / Entfernungen

Gesundheit
Arzt <250m
Apotheke <200m
Klinik <800m
Krankenhaus <500m

Kinder & Schulen
Schule <300m
Kindergarten <125m
Universität <550m
Höhere Schule <825m

Nahversorgung
Supermarkt <175m
Bäckerei <150m
Einkaufszentrum <450m

Sonstige
Geldautomat <175m
Bank <150m
Post <175m
Polizei <450m

Verkehr
Bus <175m
U-Bahn <425m
Straßenbahn <175m
Bahnhof <425m
Autobahnanschluss <2.000m

Angaben Entfernung Luftlinie / Quelle: OpenStreetMap

Klimaanlage: JA
Provision: 41.040,00 ? inkl. 20% USt.


Alle Details anzeigen

KONTAKT






 

Lasse dich kostenlos vom Anbieter dieser Immobilie zurückrufen.







 


 
RIWOG Real Estate Management GmbH
Learco Andrea Tews, MSc (WU)
Telefonnummer anzeigen Handy Bearbeiter: +436602479331
 
Bitte dem Makler die FindMyHome.at - ID bekanntgeben: 5619693

Bewertungen dieses Anbieters
Qualitätsmakler
Qualitätsmakler:
2015, 2016, 2017, 2018, 2019, 2021, 2023 ,
Netiquette
Freundlichkeit

BEWERTUNGEN DIESES ANBIETERS

 
Qualit�tsmakler
Qualitätsmakler
2015, 2016, 2017, 2018, 2019, 2021, 22/23
Freundlichkeit
BESONDERS
FREUNDLICH
Netiquette
FINDMYHOME
NETIQUETTE
Auch du kannst bewerten! 7 Tage nach deiner Anfrage erhältst du dafür von uns ein Bewertungsmail.
Alle Infos zu unseren Auszeichnungen und dem FINDMYHOME.AT Qualitätsprogramm findest du hier: Übersicht anzeigen

FINANZIERUNG
?>

Du willst wissen, wie viel dein Umzug kosten wird?

Mach gleich den kostenlosen Preisvergleich und schau, welche seriösen Anbieter in deiner Region günstig deinen Umzug organisieren


ZUM UMZUGS-VERGLEICH
-->

MYHOME BLOG
SuchAgentin auf FindMyHome.at
Unterschiedlichen Rechtsthemen, köstliche Rezepte, neueste Design-Highlights, sowie aktuelle Technik-Tools für Ihr Eigenheim.


FINDMYHOME.AT SUCHAGENTIN
SuchAgentin auf FindMyHome.at
Hallo, soll ich dir ähnliche Immobilien kostenfrei per E-Mail schicken?


ÄHNLICHE IMMOBILIEN
Aehnliche Immobilie - Vorschaubild 1

Exklusive Luxus-Dachterrassenwohnung mit traumhaftem Fernbli... - Objektnr. 5617488

91,00 m² - 3.0 Zimmer
1169000 €
PLZ: 1030

Mehr anzeigen

Aehnliche Immobilie - Vorschaubild 2

Exklusiver Wohntraum auf 4 Zimmern mit Loggia - ANDEA Parksi... - Objektnr. 5438890

110,50 m² - 4.0 Zimmer
1339000 €
PLZ: 1030

Mehr anzeigen

Aehnliche Immobilie - Vorschaubild 3

Hochwertige 3-Zimmer-Wohnung mit über 3 Meter Raumhöhe - AND... - Objektnr. 5438903

100,11 m² - 3.0 Zimmer
1265000 €
PLZ: 1030

Mehr anzeigen

Durch die Nutzung unserer Seite erklären Sie sich mit der Verwendung von Cookies zur Verbesserung Ihres Online-Erlebnisses einverstanden. Detaillierte Informationen zu diesem und weiteren Themen erhalten Sie in unserer Datenschutzerklärung.