MEIN ERGEBNIS ANPASSEN

360° TOUR // CHARMING CLASSIC APARTMENT at SCHOTTENTOR // CHARMANTE ALTBAUWOHNUNG am SCHOTTENTOR - Objektnr. 5619520

virtuell besichtigen
  • Badezimmer mit Wanne
  • Duschbad mit WC
  • Badezimmer 1
  • Gäste - WC
  • Duschbad
  • Stiegenhaus
  • Haus - Entree
  • Stiegenhaus
  • Hausansicht
  • Plan 1010
1010
Ort
€ 5.158,92
Gesamtkosten
262,00 m²
Fläche
8.0
Zimmer
WEITERE MEDIEN

Dokumente

Virtuelle Rundgänge


ECKDATEN
FindMyHome.at // Externe Immobilien-ID5619520 // 15360
ImmobilienartWohnung - Miete
Anschrift1010 Wien
Baujahr1900
Befeuerung
Mietdauer5
Fläche262,00 m²
Zimmer8.0
Bad2
WC3
Kaution:€ 12.600,00
Brutto-Miete:€ 5.158,92
Betriebskosten (inkl. MwSt):€ 488,18
Mehrwertsteuer:€ 473,71
Monatliche Gesamtkosten:€ 5.158,92
Provision: Gemäß Erstauftraggeberprinzip bezahlt der Abgeber die Provision.




BESCHREIBUNG

360° TOUR // CHARMING CLASSIC APARTMENT at SCHOTTENTOR // CHARMANTE ALTBAUWOHNUNG am SCHOTTENTOR

SCHÖNE INNENSTADT-STILWOHUNG

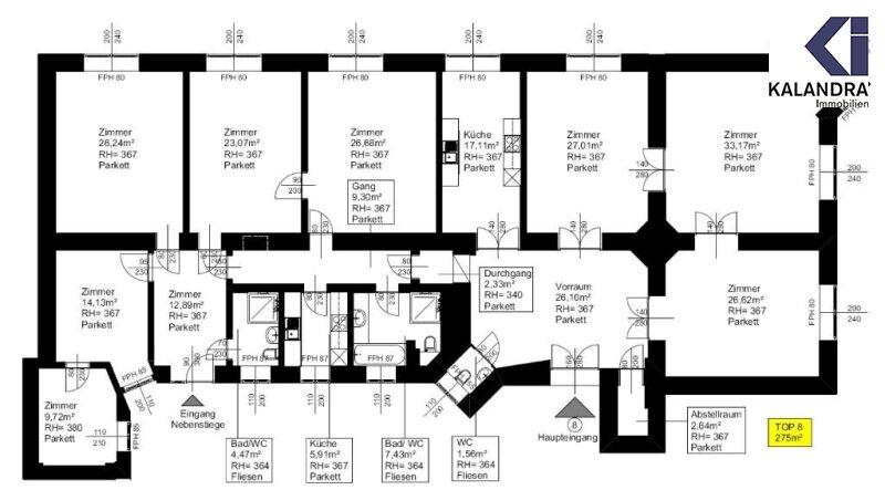
Diese klassische Altbauwohnung im 2.Liftstock eines repräsentativen Gebäudes nahe Schottentor ist eine Zusammenlegeung aus ehemals 2 Wohnungen, verfügt daher über 2 Eingänge und 2 Küchen und bietet folgende

Raumaufteilung:
- großes Vorzimmer (ca. 30m² inkl. zentralem Flur),
- straßenseitiges Eck-Wohnzimmer (ca. 34m²) mit Erker,
- zugänglich über das Eßzimmer (ca. 26m²)
- ein weiterer Wohnsalon (ca. 24m²) anschließend
- ein Schlafzimmer (ca. 16m²), sowie ein
- kleineres Schlafzimmer (ca. 13m² mit begehbarer Garerobe)
- ein Wannen-& Duschbad (ca. 8m²) sowie ein separates Gäste-WC
- die Küche (ca. 10m²)
- über die begehbare Garderobe gelangt man in
- 2 weitere Zimmer in einer Flucht (ca. 21m² & 26m²) über den 2.Vorraum in
- ein Wannenbad sowie separates WC sowie in
- ein weiteres Zimmer (ca. 13m²) und ein Kabinett (ca. 9m²)

Ausstattung:
- renovierter Stern-Parkettboden in den Wohnsalons & Schlafzimmern,
- beide Badezimmer mit weiß/ grauer Verfliesung
- die Küche ist mit einer Einbauküche mit weißen Hochglanz-Fronten und Einbaugeräten ausgestattet
- Kabel-/ Satelliten-TV
- Gas-Etagenheizung

Angeboten wird ein auf 5 Jahre befristetes Mietrverhältnis mit einjährigem, mieterseitigen Kündigungsverzicht.

360° Tour:
https://360.kalandra.at/view/portal/id/VV1H0
------------------------------------------------

 

Der Immobilienmakler erklärt, dass er entgegen dem in der Immobilienwirtschaft üblichen Geschäftsgebrauch des Doppelmaklers einseitig nur für den Vermieter tätig ist.


Infrastruktur / Entfernungen

Gesundheit
Arzt <500m
Apotheke <500m
Klinik <500m
Krankenhaus <1.500m

Kinder & Schulen
Schule <500m
Kindergarten <1.000m
Universität <500m
Höhere Schule <500m

Nahversorgung
Supermarkt <500m
Bäckerei <500m
Einkaufszentrum <1.500m

Sonstige
Geldautomat <500m
Bank <500m
Post <500m
Polizei <500m

Verkehr
Bus <500m
U-Bahn <500m
Straßenbahn <500m
Bahnhof <500m
Autobahnanschluss <3.000m

Angaben Entfernung Luftlinie / Quelle: OpenStreetMap

Provision: Gemäß Erstauftraggeberprinzip bezahlt der Abgeber die Provision.


Alle Details anzeigen

KONTAKT






 

Lasse dich kostenlos vom Anbieter dieser Immobilie zurückrufen.







 


 
KALANDRA Immobilien Robert Kalandra e.U.
Robin Kalandra
Telefonnummer anzeigen Telefon Allgemein: +431533326913
Handy Bearbeiter: +4369911804004
 
Bitte dem Makler die FindMyHome.at - ID bekanntgeben: 5619520

Bewertungen dieses Anbieters
Netiquette

BEWERTUNGEN DIESES ANBIETERS

 
Netiquette
FINDMYHOME.AT
NETIQUETTE
Auch du kannst bewerten! 7 Tage nach deiner Anfrage erhältst du dafür von uns ein Bewertungsmail.
Alle Infos zu unseren Auszeichnungen und dem FINDMYHOME.AT Qualitätsprogramm findest du hier: Übersicht anzeigen


Du willst wissen, wie viel dein Umzug kosten wird?

Mach gleich den kostenlosen Preisvergleich und schau, welche seriösen Anbieter in deiner Region günstig deinen Umzug organisieren


ZUM UMZUGS-VERGLEICH
-->

MYHOME BLOG
SuchAgentin auf FindMyHome.at
Unterschiedlichen Rechtsthemen, köstliche Rezepte, neueste Design-Highlights, sowie aktuelle Technik-Tools für Ihr Eigenheim.


FINDMYHOME.AT SUCHAGENTIN
SuchAgentin auf FindMyHome.at
Hallo, soll ich dir ähnliche Immobilien kostenfrei per E-Mail schicken?


ÄHNLICHE IMMOBILIEN
Aehnliche Immobilie - Vorschaubild 1

DACHTERRASSENWOHNUNG - Objektnr. 5586976


222,51 m² - 6.0 Zimmer
4695 €
PLZ: 1010

Mehr anzeigen

Durch die Nutzung unserer Seite erklären Sie sich mit der Verwendung von Cookies zur Verbesserung Ihres Online-Erlebnisses einverstanden. Detaillierte Informationen zu diesem und weiteren Themen erhalten Sie in unserer Datenschutzerklärung.