MEIN ERGEBNIS ANPASSEN

Sommer im eigenen Garten: Neubau-Highlight mit Pool nahe Wien - Objektnr. 5619197

  • Sommer im eigenen Garten: Neubau-Highlight mit Pool nahe Wien /  / 3400 Klosterneuburg / Bild 0
  • Sommer im eigenen Garten: Neubau-Highlight mit Pool nahe Wien /  / 3400 Klosterneuburg / Bild 1
  • Sommer im eigenen Garten: Neubau-Highlight mit Pool nahe Wien /  / 3400 Klosterneuburg / Bild 2
  • Sommer im eigenen Garten: Neubau-Highlight mit Pool nahe Wien /  / 3400 Klosterneuburg / Bild 3
  • Sommer im eigenen Garten: Neubau-Highlight mit Pool nahe Wien /  / 3400 Klosterneuburg / Bild 4
  • Sommer im eigenen Garten: Neubau-Highlight mit Pool nahe Wien /  / 3400 Klosterneuburg / Bild 5
  • Sommer im eigenen Garten: Neubau-Highlight mit Pool nahe Wien /  / 3400 Klosterneuburg / Bild 6
  • Sommer im eigenen Garten: Neubau-Highlight mit Pool nahe Wien /  / 3400 Klosterneuburg / Bild 7
  • Sommer im eigenen Garten: Neubau-Highlight mit Pool nahe Wien /  / 3400 Klosterneuburg / Bild 8
  • Sommer im eigenen Garten: Neubau-Highlight mit Pool nahe Wien /  / 3400 Klosterneuburg / Bild 9
3400
Ort
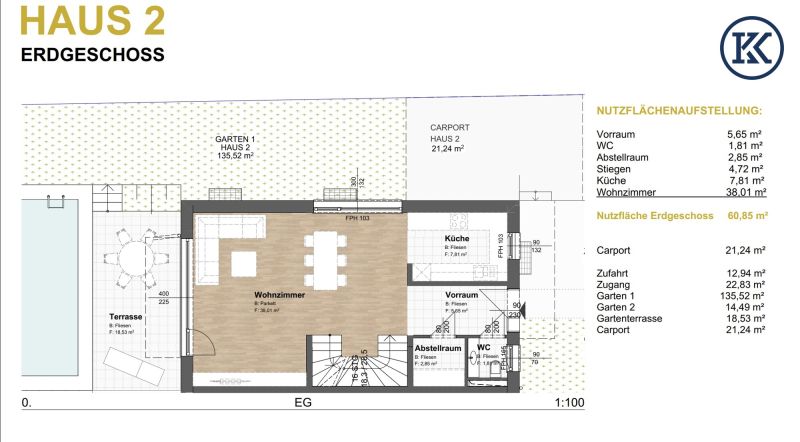
158,27 m²
Fläche
6
Zimmer

ECKDATEN
FindMyHome.at // Externe Immobilien-ID5619197 // 26/12686
ImmobilienartHaus - Eigentum
Anschrift3400 Klosterneuburg
Baujahr2026
HeizungFußbodenheizung
BodenbelagParkett
KellerJa
Fläche158,27 m²
Grundfläche301,00 m²
Gartenfläche135,52 m²
Zimmer6
Bad2
WC3
Kaufpreis:€ 1.289.900,00
Ratenzahlung:Finanzierungsmöglichkeiten für diese Immobilie anzeigen







BESCHREIBUNG

Sommer im eigenen Garten: Neubau-Highlight mit Pool nahe Wien

Schlüsselfertig - Mai 2026.

Willkommen in einem Zuhause, das modernes Design, nachhaltige Bauweise und echtes Wohlgefühl unter einem Dach vereint. Schon beim Betreten unter dem eleganten Glasvordach spüren Sie die Wertigkeit dieses Objekts. Auf beeindruckenden 217 m² Wohn- und Nutzfläche entfaltet sich ein durchdachtes Raumkonzept, das keine Wünsche offen lässt. Erbaut in solider Ziegelmassivbauweise, bietet dieses Haus die perfekte Basis für Generationen, während das extensiv begrünte Flachdach nicht nur optisch ein Highlight setzt, sondern auch aktiv zu einem erstklassigen Mikroklima beiträgt.

Das Herzstück Ihres neuen Zuhauses liegt im Erdgeschoss: Ein lichtdurchfluteter Wohn- und Essbereich, der durch großzügige Glasfronten nahtlos in den eigenen Garten übergeht. Hier erwartet Sie Ihr ganz privates Highlight € eine eigene Poolanlage, die heiße Sommertage in pure Urlaubsstimmung verwandelt. Das Haus wird absolut schlüsselfertig übergeben, sodass Sie sich vom ersten Tag an über edlen Echtholzdielenparkett, feinstes Steinzeug und hochwertige Sanitäranlagen freuen können.

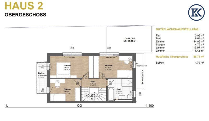
Über die oberen Etagen verteilt sich Ihr privater Rückzugsort ganz nach Ihren Vorstellungen. Während das Obergeschoss mit drei ideal proportionierten Zimmern und einem großzügigen Familienbad punktet, krönt das Dachgeschoss das Wohnerlebnis. Mit einer Galerie, einem weiteren Bad und der beeindruckenden, 26 m² großen Dachterrasse entsteht hier ein Refugium mit Weitblick, das sich perfekt als Master-Suite, exklusives Home-Office oder Atelier nutzen lässt. Ein durchdachter Vollkeller bietet zudem reichlich Platz für Technik und Hobby, während Ihr Fahrzeug bequem unter dem modernen Carport parkt. Hier erwartet Sie nicht einfach nur eine Immobilie € es ist die schlüsselfertige Einladung zu einem Leben voller Komfort, Stil und Freiheit.Die Schubertgasse bietet eine erstklassige Wohnqualität in einer ruhigen Seitengasse Klosterneuburgs, ohne auf eine lückenlose Infrastruktur verzichten zu müssen. Ein wesentlicher Vorteil für den Alltag ist die fußläufige Erreichbarkeit aller wichtigen Einrichtungen. Ein gut sortierter Billa befindet sich nur ca. 5 Minuten zu Fuß entfernt, sodass tägliche Einkäufe ohne Auto erledigt werden können.

Für Pendler und Stadtbesucher ist die Anbindung ideal: Der Bahnhof Unterkritzendorf liegt ebenfalls nur ca. 5 Gehminuten entfernt. Von hier aus bringt Sie die S-Bahn (S40) in einer kurzen, etwa 30-minütigen Fahrt direkt zum Wiener Franz-Josefs-Bahnhof oder zur U4-Station Spittelau. Damit genießen Sie die Vorteile einer grünen Randlage bei gleichzeitig direkter Verbindung in das Wiener Stadtzentrum.

Auch die Freizeitqualität in unmittelbarer Nähe ist herausragend. Die weitreichenden Wander- und Mountainbikewege des Wienerwaldes sowie die malerischen Weingärten Klosterneuburgs liegen praktisch vor der Haustür. Für Erholung am Wasser sorgt das nahegelegene Strombad Kritzendorf oder das Strandbad Klosterneuburg, während das Stadtzentrum mit dem historischen Stift, zahlreichen Heurigen und dem Freizeitzentrum Happyland ein vielseitiges kulturelles und sportliches Angebot bietet. Hier verbinden sich entspanntes Wohnen im Grünen und die urbane Dynamik Wiens zu einer perfekten Einheit.

Turnkey € May 2026.

Welcome to a home that seamlessly blends modern design, sustainable construction, and a true sense of well-being. From the moment you step under the elegant glass canopy, the premium quality of this property is undeniable. Spanning an impressive 217 m² of living and usable space, the thoughtfully designed layout leaves nothing to be desired. Built with solid brick masonry, this residence provides a lasting foundation for generations, while the extensively greened flat roof adds a touch of modern aesthetics and ensures a superior indoor climate.

The heart of your new home is the ground floor: a light-flooded living and dining area that flows through expansive glass fronts into your private garden. Here, your personal oasis awaits?a private pool that turns hot summer days into a permanent vacation. The home is handed over completely turnkey, allowing you to enjoy elegant real wood parquet flooring, fine stoneware, and high-end sanitary fittings from the very first day.

The upper floors offer a private sanctuary tailored to your lifestyle. While the first floor features three perfectly proportioned rooms and a spacious family bathroom, the top floor crowns the living experience. With a gallery, an additional bathroom, and a breathtaking 26 m² roof terrace, this level creates a retreat with a view?perfect for a master suite, an exclusive home office, or a creative studio. A well-planned full basement provides ample space for hobbies and utilities, while your vehicle is conveniently sheltered under a modern carport. This is more than just a property; it is a turnkey invitation to a life of comfort, style, and freedom.


Klimaanlage: JA
Gartennutzung: JA


Alle Details anzeigen

KONTAKT






 

Lasse dich kostenlos vom Anbieter dieser Immobilie zurückrufen.







 


 
KLASAN & Partner Immobilien GmbH & Co KG
Katharina Klasan
Telefonnummer anzeigen Telefon Allgemein: +4318909833
Telefon Bearbeiter: +4318908933
Handy Bearbeiter: +436643918279
 
Bitte dem Makler die FindMyHome.at - ID bekanntgeben: 5619197

Bewertungen dieses Anbieters
Qualitätsmakler
Qualitätsmakler:
2026,
Netiquette
Freundlichkeit
Antwortszeit
100 %

BEWERTUNGEN DIESES ANBIETERS

 
Qualitätsmakler
UNSERE HALL OF FAME DER BESTEN ANBIETER
Qualit�tsmakler
Qualitätsmakler
2026
Antwortzeit
ø 24h ANTWORT
Weiterempfehlung
WIRD SEHR GERNE

Freundlichkeit
BESONDERS
FREUNDLICH
Netiquette
FINDMYHOME
NETIQUETTE
Auch du kannst bewerten! 7 Tage nach deiner Anfrage erhältst du dafür von uns ein Bewertungsmail.
Alle Infos zu unseren Auszeichnungen und dem FINDMYHOME.AT Qualitätsprogramm findest du hier: Übersicht anzeigen

FINANZIERUNG
?>

Du willst wissen, wie viel dein Umzug kosten wird?

Mach gleich den kostenlosen Preisvergleich und schau, welche seriösen Anbieter in deiner Region günstig deinen Umzug organisieren


ZUM UMZUGS-VERGLEICH
-->

MYHOME BLOG
SuchAgentin auf FindMyHome.at
Unterschiedlichen Rechtsthemen, köstliche Rezepte, neueste Design-Highlights, sowie aktuelle Technik-Tools für Ihr Eigenheim.


FINDMYHOME.AT SUCHAGENTIN
SuchAgentin auf FindMyHome.at
Hallo, soll ich dir ähnliche Immobilien kostenfrei per E-Mail schicken?


ÄHNLICHE IMMOBILIEN
Aehnliche Immobilie - Vorschaubild 1

3400, Wisentgasse, Am Buchberg oberhalb des Chorherrenstifts... - Objektnr. 5494730

170,82 m² - 6 Zimmer
1319900 €
PLZ: 3400

Mehr anzeigen

Aehnliche Immobilie - Vorschaubild 2

3400, Wisentgasse, Am Buchberg oberhalb des Chorherrenstifts... - Objektnr. 5494728

178,10 m² - 6 Zimmer
1399900 €
PLZ: 3400

Mehr anzeigen

Aehnliche Immobilie - Vorschaubild 3

3400, Wisentgasse, Am Buchberg oberhalb des Chorherrenstifts... - Objektnr. 5494729

170,81 m² - 6 Zimmer
1249900 €
PLZ: 3400

Mehr anzeigen