MEIN ERGEBNIS ANPASSEN

Altbauwohnung mit Charme und Charakter - Objektnr. 5619154

  • WhatsApp Image 2026-
  • Image00002
  • Image0000
  • Image00003
  • Image00009
  • Keinersse WZ
  • Keinergasse SZ 1
  • IMG_0
  • Image00015
  • Teto neoclássico orn
  • Escadaria espiral el
  • Keinergasse Outside
  • Wien_03_Rochusmarkt_
  • Top 15
1030
Ort
65,29 m²
Fläche
2
Zimmer

ECKDATEN
FindMyHome.at // Externe Immobilien-ID5619154 // 101/08199
ImmobilienartWohnung - Eigentum
AnschriftKeinergasse
1030 Wien
Baujahr1893
Alt- oder NeubauAltbau
NäheLandstraße Hauptstraße
Stock2
Liftja
Beziehbar abJuli
Fläche65,29 m²
Zimmer2
Bad1
WC1
Kaufpreis:€ 499.000,00
Ratenzahlung:Finanzierungsmöglichkeiten für diese Immobilie anzeigen
sonstige Kosten (inkl. MwSt):€ 212,35
Provision: 3 %







BESCHREIBUNG

Altbauwohnung mit Charme und Charakter

Zum Verkauf gelangt eine repräsentative Wohnung in absoluter Ruhelage mit optimaler Raumaufteilung in einem wunderschön generalsanierten Altbau aus dem Jahr 1893.

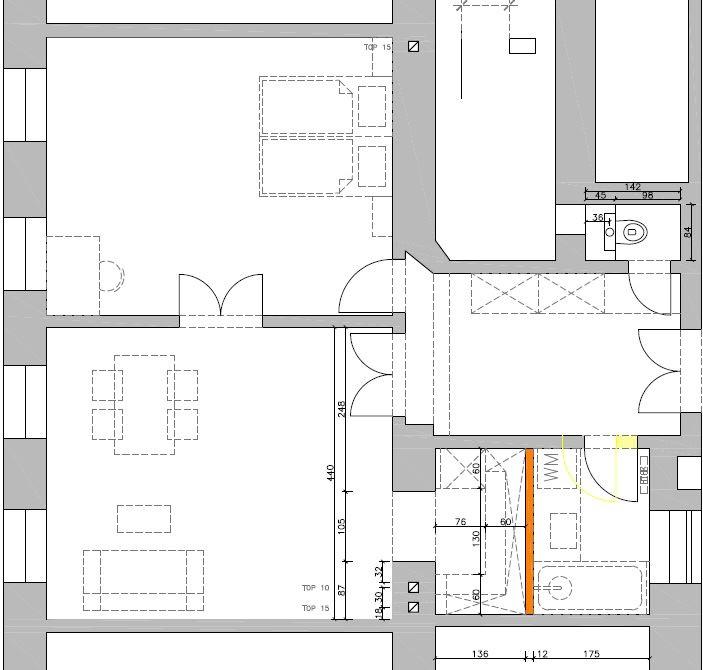
Die Wohnung befindet sich im 2. Liftstock und umfasst einen großzügigen Wohnsalon, ein Schlafzimmer, eine Küche, ein Badezimmer mit Badewanne und Handtuchtrockner, ein separates WC sowie einen Vorraum. Die beeindruckende Raumhöhe von ca. 3,35 m unterstreicht das elegante Altbauambiente.
Mit viel Liebe zum Detail wurde die Wohnung hochwertig renoviert und klassische Stilelemente mit exklusiver Ausstattung kombiniert. In den Nassräumen wurden edle Marazzi-Fliesen verlegt, ergänzt durch Designarmaturen und hochwertige Sanitärkeramik. Die moderne Küche in Hochglanz-Lackausführung ist mit Siemens-Geräten ausgestattet.
Der neue Eichenparkett im Fischgrätmuster in den Wohnräumen erfüllt höchste Qualitätsansprüche. Original erhaltene und perfekt revitalisierte Flügeltüren sorgen für ein besonders angenehmes Wohngefühl und vermitteln den typischen Wiener Altbaucharme.
Ein eigenes Kellerabteil sowie ein Fahrradabstellraum stehen zur Verfügung.

Lage
Die Lage überzeugt durch die unmittelbare Nähe zum Rochusmarkt, zur Landstraße Hauptstraße sowie zum EKZ Galleria – ideal für alle, die gerne einkaufen und urbanes Leben genießen. Zahlreiche gemütliche Lokale, Pubs und trendige Bars befinden sich in der Umgebung.
Die hervorragende öffentliche Anbindung ist ein weiterer Pluspunkt: Die U3 hält direkt vor dem Haus. Zusätzlich sind die Flughafenautobahn sowie die A1 rasch erreichbar.
Auch Erholung kommt nicht zu kurz – Donaukanal und Grüner Prater liegen nur wenige Gehminuten entfernt.

Ansprechpartner
Frau Doris Kurzweil || +43 699 17 55 66 16 || dk@jpi.at

Wir weisen darauf hin, dass wir mit dem Abgeber in ständiger Geschäftsbeziehung stehen und schon aus diesem Grund ein wirtschaftliches Naheverhältnis vorliegt.Provision: 3 %


Alle Details anzeigen

KONTAKT






 

Lasse dich kostenlos vom Anbieter dieser Immobilie zurückrufen.







 


 
JP Immobilien
Doris Kurzweil
Telefonnummer anzeigen Telefon Allgemein: +4315966020616
Handy Bearbeiter: +4369917556616
 
Bitte dem Makler die FindMyHome.at - ID bekanntgeben: 5619154

Bewertungen dieses Anbieters
Qualitätsmakler
Qualitätsmakler:
2021,

BEWERTUNGEN DIESES ANBIETERS

 
Qualit�tsmakler
Qualitätsmakler
2021
Auch du kannst bewerten! 7 Tage nach deiner Anfrage erhältst du dafür von uns ein Bewertungsmail.
Alle Infos zu unseren Auszeichnungen und dem FINDMYHOME.AT Qualitätsprogramm findest du hier: Übersicht anzeigen

FINANZIERUNG
?>

Du willst wissen, wie viel dein Umzug kosten wird?

Mach gleich den kostenlosen Preisvergleich und schau, welche seriösen Anbieter in deiner Region günstig deinen Umzug organisieren


ZUM UMZUGS-VERGLEICH
-->

MYHOME BLOG
SuchAgentin auf FindMyHome.at
Unterschiedlichen Rechtsthemen, köstliche Rezepte, neueste Design-Highlights, sowie aktuelle Technik-Tools für Ihr Eigenheim.


FINDMYHOME.AT SUCHAGENTIN
SuchAgentin auf FindMyHome.at
Hallo, soll ich dir ähnliche Immobilien kostenfrei per E-Mail schicken?


ÄHNLICHE IMMOBILIEN
Aehnliche Immobilie - Vorschaubild 1

DREI ZIMMER + BAUFELD 13 + ERSTBEZUG + EIGENTUMSWOHNUNGEN + ... - Objektnr. 5598769

73,24 m² - 3.0 Zimmer
575000 €
PLZ: 1030

Mehr anzeigen

Aehnliche Immobilie - Vorschaubild 2

The Legacy - Zukunft berührt Geschichte - Objektnr. 5558173


52,11 m² - 2.0 Zimmer
449000 €
PLZ: 1030

Mehr anzeigen

Aehnliche Immobilie - Vorschaubild 3

NATÜRLICH DRAUSSEN - VILLAGE IM DRITTEN - Objektnr. 5611260


66,29 m² - 3.0 Zimmer
585000 €
PLZ: 1030

Mehr anzeigen

Durch die Nutzung unserer Seite erklären Sie sich mit der Verwendung von Cookies zur Verbesserung Ihres Online-Erlebnisses einverstanden. Detaillierte Informationen zu diesem und weiteren Themen erhalten Sie in unserer Datenschutzerklärung.