MEIN ERGEBNIS ANPASSEN

---BESTANDSFREIES UND NACH §70A BAUBEWILLIGTES ZINSHAUS - RARITÄT AM WIENER ZINSHAUSMARKT - BESTLAGE DES 17. WIENER GEMEINDEBEZIRKS - NÄCHST APFELBAUMPROJEKT--- - Objektnr. 5619072

1170
Ort
1.135,37 m²
Fläche

ECKDATEN
FindMyHome.at // Externe Immobilien-ID5619072 // 4912
ImmobilienartZinshaus - Eigentum
Anschrift1170 Wien
Baujahr1900
Befeuerung
Geschosse6
Kaufpreis:€ 2.250.000,00
Ratenzahlung:Finanzierungsmöglichkeiten für diese Immobilie anzeigen
Provision:







BESCHREIBUNG

---BESTANDSFREIES UND NACH §70A BAUBEWILLIGTES ZINSHAUS - RARITÄT AM WIENER ZINSHAUSMARKT - BESTLAGE DES 17. WIENER GEMEINDEBEZIRKS - NÄCHST APFELBAUMPROJEKT---

Im charmanten 17. Wiener Gemeindebezirk wird dieses historische Zinshaus in bestandsfreiem und baubewilligten Zustand verkauft und übergeben.

 

Eckdaten:

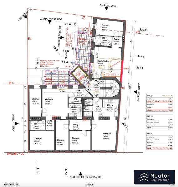
WNFL Bestand: ca. 789,41 m² inkl. Gewichtungen der Außenflächen sowie der Lichthofüberbauung im Hoftrakt, welche bewilligt sind
WNFL DG-Ausbau: ca. 345,96 m² inkl. Gewichtung Außenflächen
Anteil: 1/1
Stockwerke: 4 (inkl. EG Fläche) zzgl. 2 Dachgeschoss-Ebenen
Wohneinheiten: 12, Bestand
Wohneinheiten: 16 Wohnungen nach Entwicklung
Lift: ja - geplant, Schacht wurde errichtet
Keller: ja 
Fahrrad- und Kinderwagenabstellraum: ja - geplant
Heizung: Gas-Etagen Heizung / Alternativ ist eine Luftwärmepumpe möglich

 

Beschreibung: 

Das historische Zinshaus mit Bauklasse III befindet sich in hervorragender Lage und wurde ingeschlossener Bauweise errichtet. Für den DG-Ausbau sowie den Umbau der Regelgeschoße und eine Neugestaltung der Außenanlagen, liegt eine Baubewilligung nach §70a der Wiener Bauordnung vor. Im Zuge des Dachgeschoßausbaus ist straßenseitig eine Fundamentplatte zur Ertüchtigung herzustellen. Weitere statische Maßnahmen finden sich in der bereits bewilligten Vorstatik. In den 4 Regelgeschoßen befinden sich jeweils 3 kompakt geschnittene Wohneinheiten, wobei die beiden hofseitigen Wohnungen im EG mit Gartenfläche und in den darüberliegende Stockwerken mit Balkon geplant und bewilligt sind. Im Dachgeschoss sollen vier Wohneinheiten entstehen, von denen eine (Top16) eingeschoßig mit Balkon, und 3 (Top 13,14 &15) als Maisonett mit großzügigen Terrassen ausgestaltet sind.

Die angefangenen Arbeiten wurden vom vormaligen Eigentümer durchgeführt und stehen mit dem aktuellen Verkäufer in keinem Zusammenhang. Derzeit finden am Haus keine Arbeiten statt.

Das Referenzobjekt Apfelbaum vom renommierten Bauprojektenwickler LIV befindet sich direkt gegenüber, wodurch die ohnehin erstklassige Lage nochmals deutlich gewinnt.

 

 

 

 

 

 

 

 

 

 

Geschoss Top WNFL Freifläche Garten Gewichtete Fläche
EG 1 45,00 m² 15,61 m² Terrasse 26,36 m² 56,76 m²
EG 2 64,31m² -   64,31 m²
EG 3 45,95 m² 16,65 m² Terrasse 28,2 m² 58,51 m²
1.OG 4 46,05 m² 15,54 m² Balkon   53,82 m²
1.OG 5 72,89 m² -   72,89 m²
1.OG 6 68,36 m² 12,99 m² Balkon   74,86 m²
2.OG 7 47,02 m² 15,54 m² Balkon   54,79 m²
2.OG 8 72,29 m² -   72,29 m²
2.OG 9 69,61m² 12,99 m² Balkon   76,11 m²
3.OG 10 47,58 m² 15,54 m² Balkon   55,35 m²
3.OG 11 73,38 m² -   73,38 m²
3.OG 12 69,86 m² 12,99 m² Balkon   76,36 m²
DG 13 68,72 m² 45,22 m² Balkon/Terrasse    83,94 m²
DG 14 92,38 m² 40,20 m² Terrasse   102,43 m²
DG 15 90,76 m² 42,99 m² Balkon/Terrasse   104,48 m²
DG 16 55,11m² 11,90 m² Balkon   61,06 m²
Summe   1029,27m² 258,16 m² 54,56m² 1141,32 m²

 

Bestand:

12 Wohnungen auf 4 Etagen

WNFL: ca. 789,41 m² inkl. Gewichtungen der Außenflächen sowie der Lichthofüberbauung im Hoftrakt, welche bewilligt sind

DG-Ausbau:

4 Maisonette-Wohnungen auf 2 DG-Ebenen

WNFL ca. 351,91 m² inkl. Gewichtungen der Außenflächen, welche bewilligt sind

 

Kosten:

Kaufpreis: € 2.250.000,- 
Provision: 3% des Kaufpreises zzgl. gesetzliche USt. 
Vertragserrichtungkosten: 1,0% zzgl. Barauslagen und USt.

 

Lage + Infrastruktur:

Wohnen in Hernals - einem Stadtteil mit hoher Lebensqualität, großzügigen Grünflächen, Parkanlagen, vielen Freizeit, Sport und Erholungsmöglichkeiten. Die gleichzeitige Nähe zum Stadtzentrum und zu Freizeitorten wie dem Pezzlpark. 

In dieser sehr lebenswerten Lage, sind Sie bestens an das öffentliche Verkehrsnetz angebunden. Die U6 Alser Straße ist in wenigen Minuten fußläufig erreichbar. Die Tramlinien 2/9/43 und 44 befinden sich ebenfalls in unmittelbarer Nähe. Für die Dinge des täglichen Lebens müssen Sie lediglich Ihre neue Haustüre verlassen. Im Bereich Bildung bietet diese Adresse viele Möglichkeiten wie die Volksschule Rötzergasse sowie das Hernalser Gymnasium Geblergasse. Für einen entspannten Nachmittag eignet sich der Lorenz-Bayer-Park, Huberpark oder der Pezzlpark hervorragend. In nur ca. 4 Gehminuten erreichen Sie den beliebten Yppenmarkt, welcher eine große Auswahl an frischen Lebensmitteln bietet. Eine tolle Wohnung in bestens angebundener Lage. 

 

Wir dürfen gem. § 5 Maklergesetz darauf hinweisen, dass wir als Doppelmakler tätig sind und ein wirtschaftliches/familiäres Naheverhältnis zu unseren Auftraggebern besteht. Das wirtschaftliche Naheverhältnis ergibt sich aus regelmäßiger geschäftlicher Verbindung. Irrtum vorbehalten.

Hinweis gemäß Energieausweisvorlagegesetz: Ein Energieausweis wurde vom Eigentümer bzw. Verkäufer, nach unserer Aufklärung über die generell geltende Vorlagepflicht, sowie Aufforderung zu seiner Erstellung noch nicht vorgelegt. Daher gilt zumindest eine dem Alter und der Art des Gebäudes entsprechende Gesamtenergieeffizienz als vereinbart. Wir übernehmen keinerlei Gewähr oder Haftung für die tatsächliche Energieeffizienz der angebotenen Immobilie.

Wir weisen darauf hin, dass zwischen dem Vermittler und dem zu vermittelnden Dritten ein familiäres oder wirtschaftliches Naheverhältnis besteht.


Infrastruktur / Entfernungen

Gesundheit
Arzt <500m
Apotheke <500m
Klinik <500m
Krankenhaus <1.000m

Kinder & Schulen
Schule <500m
Kindergarten <500m
Universität <1.500m
Höhere Schule <1.000m

Nahversorgung
Supermarkt <500m
Bäckerei <500m
Einkaufszentrum <500m

Sonstige
Geldautomat <500m
Bank <500m
Post <500m
Polizei <500m

Verkehr
Bus <500m
U-Bahn <500m
Straßenbahn <500m
Bahnhof <500m
Autobahnanschluss <3.500m

Angaben Entfernung Luftlinie / Quelle: OpenStreetMap

Provision:


Alle Details anzeigen

KONTAKT






 

Lasse dich kostenlos vom Anbieter dieser Immobilie zurückrufen.







 


 
Neutor Real GmbH
Daniel Hausberger
Telefonnummer anzeigen Telefon Allgemein: +4315323730
Handy Bearbeiter: +436504440651
 
Bitte dem Makler die FindMyHome.at - ID bekanntgeben: 5619072

Bewertungen dieses Anbieters
Qualitätsmakler
Qualitätsmakler:
2025,
Netiquette
Freundlichkeit
82 %

BEWERTUNGEN DIESES ANBIETERS

 
Qualit�tsmakler
Qualitätsmakler
2025
Weiterempfehlung
WIRD GERNE

Freundlichkeit
BESONDERS
FREUNDLICH
Netiquette
FINDMYHOME
NETIQUETTE
Auch du kannst bewerten! 7 Tage nach deiner Anfrage erhältst du dafür von uns ein Bewertungsmail.
Alle Infos zu unseren Auszeichnungen und dem FINDMYHOME.AT Qualitätsprogramm findest du hier: Übersicht anzeigen

FINANZIERUNG
?>

Du willst wissen, wie viel dein Umzug kosten wird?

Mach gleich den kostenlosen Preisvergleich und schau, welche seriösen Anbieter in deiner Region günstig deinen Umzug organisieren


ZUM UMZUGS-VERGLEICH
-->

MYHOME BLOG
SuchAgentin auf FindMyHome.at
Unterschiedlichen Rechtsthemen, köstliche Rezepte, neueste Design-Highlights, sowie aktuelle Technik-Tools für Ihr Eigenheim.


FINDMYHOME.AT SUCHAGENTIN
SuchAgentin auf FindMyHome.at
Hallo, soll ich dir ähnliche Immobilien kostenfrei per E-Mail schicken?


ÄHNLICHE IMMOBILIEN
Aehnliche Immobilie - Vorschaubild 1

++ Ihr nächstes Wertsteigerungsprojekt ++ Bestandshaus mit E... - Objektnr. 5616736

741,68 m²
2000000 €
PLZ: 1170

Mehr anzeigen

Aehnliche Immobilie - Vorschaubild 2

Bauträgerprojekt bestandsfrei zum Starten! - Objektnr. 5591753


445,00 m²
2450000 €
PLZ: 1170

Mehr anzeigen

Durch die Nutzung unserer Seite erklären Sie sich mit der Verwendung von Cookies zur Verbesserung Ihres Online-Erlebnisses einverstanden. Detaillierte Informationen zu diesem und weiteren Themen erhalten Sie in unserer Datenschutzerklärung.