MEIN ERGEBNIS ANPASSEN

TOLL aufgeteilte, sehr helle und moderne WOHNUNG in LIEBENAU! Mit geräumigen BALKON zum ENTSPANNEN! Ab April zu mieten!! - Objektnr. 5618579

8041
Ort
€ 965,27
Gesamtkosten
66,24 m²
Fläche
3.0
Zimmer
WEITERE MEDIEN

Dokumente


ECKDATEN
FindMyHome.at // Externe Immobilien-ID5618579 // 294821
ImmobilienartWohnung - Miete
AnschriftEsserweg/Top 6
8041 Graz
Stock1
Fläche66,24 m²
Zimmer3.0
Bad1
WC1
 Abstellraum
Kaution:€ 3.100,00
Brutto-Miete:€ 965,27
Betriebskosten (inkl. MwSt):€ 195,27
Mehrwertsteuer:€ 87,75
Monatliche Gesamtkosten:€ 965,27
Provision: Gemäß Erstauftraggeberprinzip bezahlt der Abgeber die Provision.




BESCHREIBUNG

TOLL aufgeteilte, sehr helle und moderne WOHNUNG in LIEBENAU! Mit geräumigen BALKON zum ENTSPANNEN! Ab April zu mieten!!

TOLL aufgeteilte, sehr helle und moderne WOHNUNG in LIEBENAU! Mit geräumigen BALKON zum ENTSPANNEN! Ab April zu mieten!!

Provisionsfrei! Perfekt aufgeteilte 3-Zimmer-Wohnung in toller LAGE!

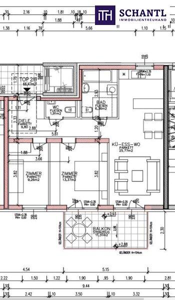
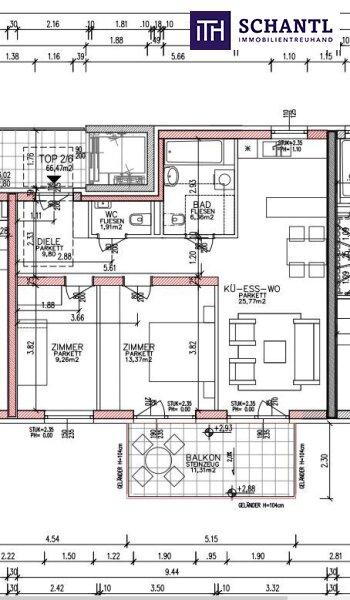
Top 6 am Esserweg 8a, 1.OG, 8041 Graz:

Zur Vermietung steht eine wunderschöne, helle 3-Zimmer-Wohnung in einem gepflegten Neubau in Graz Liebenau.
Wohnung wird leer, ohne Möbel übergeben! Frühester Übergabetermin April 2026!

Raumaufteilung: Vorraum, Bad mit Badewanne und WC, zentraler Wohn-Essbereich mit offener Küche, zwei Schlafzimmer, überdachter Balkon

 

HIGHLIGHTS:

  • überdachter Balkon11,31m² mit S-Ausrichtung
  • die Wohnung ist hell und lichtdurchflutet
  • vollausgestattete Küche inklusive Geschirrspüler und großem Kühlschrank
  • Wohn/Ess/Bereich mit 25,77m²
  • ein Schlafzimmer mit 13,37m²
  • ein weiteres Schlafzimmer mit 9,26m²
  • ein Badezimmer mit 6,36m², Badewanne und WM-Anschluss
  • WC separat 1,91m²
  • Diele 9,80m²
  • Lift
  • Top Lage & Infrastruktur
  • Nahversorger in 2 Minuten erreichbar 
  • außenliegender Sonnenschutz - Raffstores
  • Haustiere erlaubt!

FACTS / KOSTEN

  • Nutzfläche: 66,24m²
  • Kaution € 3.100,00
  • TG Parkplatz anmietbar um brutto € 81,00/ Monat und einer Kaution von € 243,00
  • Parkplatz im Freien anmietbar um brutto € 45,00/Monat und einer Kaution von € 140,00
  • Heizung aktuell ca. €140/Monat
     

Gesamtmiete brutto: ca. € 965,28/Monat
(exklusive Heizung, Strom und Parken)


Bonitätskriterien:

  • laufendes Dienstverhältnis seit über 3 Monaten
  • Miete darf max. 40% des Haushaltseinkommens betragen

 

 

Worauf noch warten

Vereinbaren Sie noch heute eine Besichtigung oder eine persönliche Beratung mit uns!

 

Sie wollen Ihre Immobilie verkaufen oder vermieten Dann sind Sie bei uns goldrichtig! Wir sind gerne für Sie da und unterstützen Sie unverbindlich bei der Bewertung Ihrer Immobilie. Mit viel Sorgfalt stellen wir Ihnen alle wichtigen Informationen und Unterlagen zusammen, damit Sie die besten Entscheidungen treffen können.

In Kooperation mit unserer SFI Vermögenstreuhand begleiten wir Sie bei der Verwirklichung Ihres Traumobjekts und unterstützen Sie beim nachhaltigen Vermögensaufbau. Mit unseren erfahrenen Experten sorgen wir dafür, dass Sie die besten Konditionen erhalten damit Ihre Träume Wirklichkeit werden!

www.schantl-ith.at in Kooperation mit www.sfi-invest.com

 

Die Angaben über das angebotene Objekt erfolgen mit der Sorgfalt eines ordentlichen Immobilienmaklers; für die Richtigkeit solcher Angaben, die auf Informationen der über das Objekt Verfügungsberechtigten beruhen, wird keine Gewähr geleistet!

 

Wir weisen darauf hin, dass zwischen dem Vermittler und dem zu vermittelnden Dritten ein familiäres oder wirtschaftliches Naheverhältnis besteht.

Der Immobilienmakler erklärt, dass er entgegen dem in der Immobilienwirtschaft üblichen Geschäftsgebrauch des Doppelmaklers einseitig nur für den Vermieter tätig ist.


Infrastruktur / Entfernungen

Gesundheit
Arzt <500m
Apotheke <250m
Klinik <4.500m
Krankenhaus <3.750m

Kinder & Schulen
Schule <250m
Kindergarten <500m
Universität <3.000m
Höhere Schule <4.000m

Nahversorgung
Supermarkt <500m
Bäckerei <750m
Einkaufszentrum <1.000m

Sonstige
Geldautomat <1.000m
Bank <250m
Post <1.000m
Polizei <1.250m

Verkehr
Bus <250m
Straßenbahn <1.000m
Autobahnanschluss <1.000m
Bahnhof <1.000m
Flughafen <5.500m

Angaben Entfernung Luftlinie / Quelle: OpenStreetMap

Kabel/SAT/TV: JA
Rollstuhlgerecht: JA
Barrierefrei: JA
Provision: Gemäß Erstauftraggeberprinzip bezahlt der Abgeber die Provision.


Alle Details anzeigen

KONTAKT






 

Lasse dich kostenlos vom Anbieter dieser Immobilie zurückrufen.







 


 
Schantl ITH Immobilientreuhand GmbH
Ursula Seiwald
Telefonnummer anzeigen Handy Bearbeiter: +436645725475
 
Bitte dem Makler die FindMyHome.at - ID bekanntgeben: 5618579

Bewertungen dieses Anbieters
Qualitätsmakler
Qualitätsmakler:
2015, 2016, 2018, 2019, 2020, 2021, 2023 , 2024, 2025,
Netiquette
Freundlichkeit
80 %

BEWERTUNGEN DIESES ANBIETERS

 
Qualit�tsmakler
Qualitätsmakler
2015, 2016, 2018, 2019, 2020, 2021, 22/23, 2024, 2025
Antwortzeit
ø 48h ANTWORT
Weiterempfehlung
WIRD GERNE

Freundlichkeit
BESONDERS
FREUNDLICH
Netiquette
FINDMYHOME
NETIQUETTE
Auch du kannst bewerten! 7 Tage nach deiner Anfrage erhältst du dafür von uns ein Bewertungsmail.
Alle Infos zu unseren Auszeichnungen und dem FINDMYHOME.AT Qualitätsprogramm findest du hier: Übersicht anzeigen


Du willst wissen, wie viel dein Umzug kosten wird?

Mach gleich den kostenlosen Preisvergleich und schau, welche seriösen Anbieter in deiner Region günstig deinen Umzug organisieren


ZUM UMZUGS-VERGLEICH
-->

MYHOME BLOG
SuchAgentin auf FindMyHome.at
Unterschiedlichen Rechtsthemen, köstliche Rezepte, neueste Design-Highlights, sowie aktuelle Technik-Tools für Ihr Eigenheim.


FINDMYHOME.AT SUCHAGENTIN
SuchAgentin auf FindMyHome.at
Hallo, soll ich dir ähnliche Immobilien kostenfrei per E-Mail schicken?


Durch die Nutzung unserer Seite erklären Sie sich mit der Verwendung von Cookies zur Verbesserung Ihres Online-Erlebnisses einverstanden. Detaillierte Informationen zu diesem und weiteren Themen erhalten Sie in unserer Datenschutzerklärung.