MEIN ERGEBNIS ANPASSEN

#SQ Zentrale, begehbare Premium-DG-Wohnung in der ruhigen Hasnerstraße, 1160 Wien - alimentiert durch viel Tageslicht und Raumgefühl. - Objektnr. 5618502


ökologisch beheizt
1160
Ort
96,44 m²
Fläche
4.0
Zimmer

ECKDATEN
FindMyHome.at // Externe Immobilien-ID5618502 // 21219
ImmobilienartWohnung - Eigentum
Anschrift1160 Wien,Ottakring
Baujahr2022
Befeuerung
Luftwärmepumpe
Stock2
Geschosse4
Fläche96,44 m²
Zimmer4.0
Bad2
WC1
Kaufpreis:€ 649.000,00
Ratenzahlung:Finanzierungsmöglichkeiten für diese Immobilie anzeigen
Provision:







BESCHREIBUNG

#SQ Zentrale, begehbare Premium-DG-Wohnung in der ruhigen Hasnerstraße, 1160 Wien - alimentiert durch viel Tageslicht und Raumgefühl.

Die Wohnung liegt in einem beliebten, familienorientierten Wohnviertel: zwischen urbanem Treiben (Marktplätze, Kultur, Gastronomie) und grüner Erholung (Wilhelminenberg & Steinhof-Gründe). Die vielfältige Infrastruktur deckt täglichen Bedarf ideal ab und das urbane Flair mit Radwegen macht das Viertel besonders attraktiv.

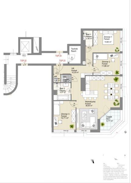
Diese DG-Wohnung bietet alles, was moderne Familien suchen: hochwertigen Rückzugsraum mit exklusivem Ausbau, Barrierefreiheit und viel Licht. Kombiniert mit hervorragender Verkehrsanbindung (Tram, Bus, S/U-Bahn, Rad) und einem lebendigen Umfeld mit Geschichte die Hasnerstraßeverbindet urbanes Flair mit Wohnen im Grünen. Ein echtes Juwel für anspruchsvolle Käufer.

 

Eckdaten im Überblick: 

  • Lage: Zentrale, begehbare Premium-DG-Wohnung in der ruhigen Hasnerstraße, 1160 Wien 

  • Zimmeranzahl: 4 großzügige Zimmer.

  • Personenaufzug 

  • Loggia

  • 2 Bäder + 1 Gäste WC 

 

  • Barrierereduzierter Zugang: Liftanschluss von der Straße bis zum Dach.

  • Loggia: Helles Außenwohnen mit Aussicht, perfekte Ergänzung zu Wohnraum.

  • Raumaufteilung: Familiengerecht zwei Kinderzimmer + Schlafbereich + großzügige Wohnküche + Loggia

 

Ausstattung:

 

  • Ausbau:

    • Offene Wohnküche ideal für Familie und Entertainment.

    • Hochwertige, moderne Fenster (Hitzeschutz, Schallschutz).

    • Ausbau für Klimaanlage bereits vorgesehen.

    • Zentrale Begehbarkeit: Exklusive DG-Wohnung mit direktem Liftzugang bis zur Wohnungstür barrierefrei.

    • Raumkonzept: 4 großzügige, hell durchflutete Zimmer ideal für Eltern und Kinder.

    • Offene Wohnküche: Treffpunkt für Familienleben und gesellige Abende.

    • Ausstattung: Premium-Vollholzdielen in elegantem Weiß geölt, hochwertige moderne Fenster (Wärme- und Schallschutz), und Loggia mit Wohlfühlfaktor.

    • Technik: Vorinstallation für moderne Klimaanlage energieeffizient und komfortorientiert.

    • Licht & Raum: Großzügige Fensterfronten schaffen ein besonders luftiges Wohngefühl.

Kosten: 

KP: EUR 649.000,- 
Provision 3% vom KP zzgl. gesetzl. Mwst. 

 

Highlights: 

 

  • Familiär & lebensfroh: Sicheres Wohnumfeld, Kindereinrichtungen und Grün in direkter Umgebung.

  • Zwischen Stadt & Natur: Wenige Minuten zu U-Bahn/Westbahn + grüne Rückzugsorte wie Steinhofgründe, Schmelz, Wienerwald perfekt für Erholung am Wochenende

  • Urban und kultiviert: Multikulti-Grätzl mit Märkten, Szene-Lokalen und sozialer Vielfalt aber ohne Großstadthektik .

  • Historisch & modern: Leben in einem klassischen Gründerzeithaus mit hochwertiger, zeitgemäßer Modernisierung und Technikvorbereitung.

 

Wir sind von dieser Wohnung begeistert. 

Kontaktdaten: 

Für Fragen und Besichtigungen kontaktieren Sie bitte Frau Guelmami unter 0676 40 60 310  oder unter ines.guelmami@stadtquartier.at 

 

Weitere Objekte auf: 

www.stadtquartier.at 

 

 

Wir weisen darauf hin, dass zwischen dem Vermittler und dem zu vermittelnden Dritten ein familiäres oder wirtschaftliches Naheverhältnis besteht.

Der Vermittler ist als Doppelmakler tätig.


Infrastruktur / Entfernungen

Gesundheit
Arzt <500m
Apotheke <500m
Klinik <500m
Krankenhaus <1.500m

Kinder & Schulen
Schule <500m
Kindergarten <500m
Universität <1.000m
Höhere Schule <1.000m

Nahversorgung
Supermarkt <500m
Bäckerei <500m
Einkaufszentrum <1.500m

Sonstige
Geldautomat <500m
Bank <500m
Post <500m
Polizei <1.000m

Verkehr
Bus <500m
U-Bahn <1.000m
Straßenbahn <500m
Bahnhof <1.000m
Autobahnanschluss <4.500m

Angaben Entfernung Luftlinie / Quelle: OpenStreetMap

Kabel/SAT/TV: JA
Provision:


Alle Details anzeigen

KONTAKT






 

Lasse dich kostenlos vom Anbieter dieser Immobilie zurückrufen.







 


 
STADTQUARTIER Home GmbH
Ines Guelmami
Telefonnummer anzeigen Telefon Allgemein: +436764060310
Handy Bearbeiter: +436764060310
 
Bitte dem Makler die FindMyHome.at - ID bekanntgeben: 5618502

Bewertungen dieses Anbieters
Qualitätsmakler
Qualitätsmakler:
2013, 2018, 2019, 2021,
Netiquette
Freundlichkeit

BEWERTUNGEN DIESES ANBIETERS

 
Qualit�tsmakler
Qualitätsmakler
2013, 2018, 2019, 2021
Freundlichkeit
BESONDERS
FREUNDLICH
Netiquette
FINDMYHOME
NETIQUETTE
Auch du kannst bewerten! 7 Tage nach deiner Anfrage erhältst du dafür von uns ein Bewertungsmail.
Alle Infos zu unseren Auszeichnungen und dem FINDMYHOME.AT Qualitätsprogramm findest du hier: Übersicht anzeigen

FINANZIERUNG
?>

Du willst wissen, wie viel dein Umzug kosten wird?

Mach gleich den kostenlosen Preisvergleich und schau, welche seriösen Anbieter in deiner Region günstig deinen Umzug organisieren


ZUM UMZUGS-VERGLEICH
-->

MYHOME BLOG
SuchAgentin auf FindMyHome.at
Unterschiedlichen Rechtsthemen, köstliche Rezepte, neueste Design-Highlights, sowie aktuelle Technik-Tools für Ihr Eigenheim.


FINDMYHOME.AT SUCHAGENTIN
SuchAgentin auf FindMyHome.at
Hallo, soll ich dir ähnliche Immobilien kostenfrei per E-Mail schicken?


ÄHNLICHE IMMOBILIEN
Aehnliche Immobilie - Vorschaubild 1

Außenflächen ohne direkten Gegenüber I Erstbezug I Nahe U3 O... - Objektnr. 5582837

84,65 m² - 3 Zimmer
649000 €
PLZ: 1160

Mehr anzeigen

Aehnliche Immobilie - Vorschaubild 2

THE ARIK - Wohnen mit Weitblick - 3 Zimmer mit Freiflächen z... - Objektnr. 5516249

79,12 m² - 3.0 Zimmer
585500 €
PLZ: 1160

Mehr anzeigen

Aehnliche Immobilie - Vorschaubild 3

Vier Räume und ein Meer aus Grün - Wohnen mit Weitblick im G... - Objektnr. 5525144

102,11 m² - 4.0 Zimmer
736700 €
PLZ: 1160

Mehr anzeigen

Durch die Nutzung unserer Seite erklären Sie sich mit der Verwendung von Cookies zur Verbesserung Ihres Online-Erlebnisses einverstanden. Detaillierte Informationen zu diesem und weiteren Themen erhalten Sie in unserer Datenschutzerklärung.