MEIN ERGEBNIS ANPASSEN

Gebührenersparnis nur noch bis 30.06.2026 - 2 Zimmer, Balkon & Stellplatz! - Objektnr. 5618038

6020
Ort
47,51 m²
Fläche
2.0
Zimmer

ECKDATEN
FindMyHome.at // Externe Immobilien-ID5618038 // 6361/329
ImmobilienartEigentum
Anschrift6020 Innsbruck
Baujahr1968
Befeuerung
Stock2
Fläche47,51 m²
Zimmer2.0
WC1
Kaufpreis:€ 329.000,00
Ratenzahlung:Finanzierungsmöglichkeiten für diese Immobilie anzeigen
Provision: 3% des Kaufpreises zzgl. 20% USt.







BESCHREIBUNG

Gebührenersparnis nur noch bis 30.06.2026 - 2 Zimmer, Balkon & Stellplatz!

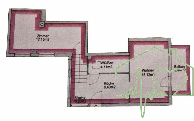
Diese charmante Maisonette-Wohnung im Herzen der Stadt bietet Ihnen alles, was das Leben lebenswert macht. Auf der 2. Etage gelegen, überzeugt diese lichtdurchflutete Wohnung mit einer durchdachten Raumaufteilung und bietet auf 47,51 m² ausreichend Platz für individuelles Wohnen und Wohlfühlen.

Die Wohnung verfügt über zwei großzügige Zimmer, die sich ideal für Paare, kleine Familien oder als gemütliches Refugium für Singles eignen. Jeder Raum ist so gestaltet, dass er eine harmonische Atmosphäre schafft und Ihnen ermöglicht, Ihre persönlichen Wohnträume zu verwirklichen. Genießen Sie entspannte Abende auf dem überdachten Südwest-Balkon, der Ihnen einen herrlichen Blick auf die umliegende Berglandschaft bietet.

Ein weiterer Pluspunkt dieser Immobilie ist der praktische Stellplatz (im Kaufpreis inkludiert), der Ihnen das lästige Parkplatzsuchen in der Stadt erspart. Egal, ob Sie mit dem Auto unterwegs sind oder die öffentlichen Verkehrsmittel bevorzugen Sie finden hier die beste Anbindung. Die Haltestellen von Bus und Straßenbahn sind nur einen kurzen Spaziergang entfernt, und der Bahnhof ist ebenfalls in unmittelbarer Nähe. So gelangen Sie schnell und unkompliziert zu Ihrem Ziel.

Die Lage dieser Maisonette-Wohnung könnte nicht besser sein. Sie befinden sich in einem lebendigen Stadtteil, der Ihnen eine Vielfalt an Dienstleistungen und Freizeitmöglichkeiten bietet. In der Umgebung finden Sie alles, was Sie für den Alltag benötigen: Ärzte, Apotheken, Schulen, Kindergärten und eine Universität sind nur wenige Gehminuten entfernt. Für Ihren Einkauf stehen Ihnen ein Supermarkt, eine Bäckerei und ein Einkaufszentrum zur Verfügung, die alles bieten, was das Herz begehrt. Der nahegelegene Ursulinenpark lädt zum Spazieren, Spielen & Verweilen ein.

Ob Sie sich für die entspannte Lebensweise in den Tiroler Bergen entscheiden oder das pulsierende Stadtleben genießen möchten, diese Wohnung bietet Ihnen die perfekte Balance. Lassen Sie sich von der Kombination aus modernem Wohnkomfort und der einzigartigen Umgebung Innsbrucks begeistern.

Weitere Highlights:

  • besonders pflegeleichter Vinylboden
  • separater Abstellraum außerhalb der Wohnung
  • Kellerabteil
  • Küche mit neuwertigen Geräten
  • Fenster und Warmwasserboiler wurden erneuert

Nur noch bis 30.06.2026 - ggf. Befreiung von der Grundbuch-Eintragungsgebühr (1,1% vom Kaufpreis) bei Erwerb von Wohnraum siehe www.bmj.gv.at

Für nähere Informationen zur Immobilie fordern Sie bitte ein Exposé an.

Kontaktieren Sie uns noch heute für einen Besichtigungstermin und überzeugen Sie sich selbst von diesem einzigartigen Angebot!

Ihr Traum von einer perfekten Wohnung in einer der schönsten Städte Österreichs könnte schon bald Wirklichkeit werden.

Der Vermittler ist als Doppelmakler tätig.


Infrastruktur / Entfernungen

Gesundheit
Arzt <500m
Apotheke <1.000m
Klinik <2.500m
Krankenhaus <2.000m

Kinder & Schulen
Schule <500m
Kindergarten <500m
Universität <1.000m
Höhere Schule <1.500m

Nahversorgung
Supermarkt <500m
Bäckerei <500m
Einkaufszentrum <1.000m

Sonstige
Bank <1.000m
Geldautomat <1.000m
Post <1.000m
Polizei <1.500m

Verkehr
Bus <500m
Straßenbahn <500m
Bahnhof <1.000m
Autobahnanschluss <1.500m
Flughafen <1.500m

Angaben Entfernung Luftlinie / Quelle: OpenStreetMap

Kabel/SAT/TV: JA
Provision: 3% des Kaufpreises zzgl. 20% USt.


Alle Details anzeigen

KONTAKT






 

Lasse dich kostenlos vom Anbieter dieser Immobilie zurückrufen.







 


 
SAW Consulting e.U.
Anke Schuch
Telefonnummer anzeigen Telefon Allgemein: +436641838979
 
Bitte dem Makler die FindMyHome.at - ID bekanntgeben: 5618038

Bewertungen dieses Anbieters
Netiquette

BEWERTUNGEN DIESES ANBIETERS

 
Netiquette
FINDMYHOME.AT
NETIQUETTE
Auch du kannst bewerten! 7 Tage nach deiner Anfrage erhältst du dafür von uns ein Bewertungsmail.
Alle Infos zu unseren Auszeichnungen und dem FINDMYHOME.AT Qualitätsprogramm findest du hier: Übersicht anzeigen

FINANZIERUNG
?>

Du willst wissen, wie viel dein Umzug kosten wird?

Mach gleich den kostenlosen Preisvergleich und schau, welche seriösen Anbieter in deiner Region günstig deinen Umzug organisieren


ZUM UMZUGS-VERGLEICH
-->

MYHOME BLOG
SuchAgentin auf FindMyHome.at
Unterschiedlichen Rechtsthemen, köstliche Rezepte, neueste Design-Highlights, sowie aktuelle Technik-Tools für Ihr Eigenheim.


FINDMYHOME.AT SUCHAGENTIN
SuchAgentin auf FindMyHome.at
Hallo, soll ich dir ähnliche Immobilien kostenfrei per E-Mail schicken?


Durch die Nutzung unserer Seite erklären Sie sich mit der Verwendung von Cookies zur Verbesserung Ihres Online-Erlebnisses einverstanden. Detaillierte Informationen zu diesem und weiteren Themen erhalten Sie in unserer Datenschutzerklärung.