MEIN ERGEBNIS ANPASSEN

RARITÄT: Zweizimmer-Gartenwohnung in Hofruhelage (provisionsfrei) - Objektnr. 5616597

  • Innenvisualisierung
  • Liesingbach
  • Projekt (Übersicht)
  • Projekt
  • Riverside
  • Schönbrunn
  • Innenvisualisierung
1230
Ort
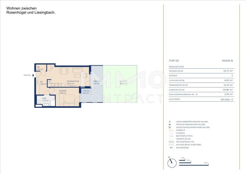
53,77 m²
Fläche
2.0
Zimmer

ECKDATEN
FindMyHome.at // Externe Immobilien-ID5616597 // 1939/215169
ImmobilienartWohnung - Eigentum
Anschrift1230 Wien
Baujahr2025
Geschosse7
Fläche53,77 m²
Terrassen1 (16,00 m²)
Zimmer2.0
Bad1
WC1
 Abstellraum
Kaufpreis:€ 365.000,00
Ratenzahlung:Finanzierungsmöglichkeiten für diese Immobilie anzeigen
Provision: Provision bezahlt der Abgeber.







BESCHREIBUNG

RARITÄT: Zweizimmer-Gartenwohnung in Hofruhelage (provisionsfrei)

Zwei Zimmer und Garten und viel Sonne - NEU

 

City Garden: Ihr neuer Wohntraum zwischen Rosenhügel und Liesingbach

Am Rosenhügel entsteht ein Wohnprojekt, das modernen Komfort, historische Details und eine nachhaltige Lebensweise harmonisch miteinander verbindet. Das Ensemble umfasst vier stilvolle Neubauten und ein liebevoll revitalisiertes Bestandsgebäude, das mit seinem besonderen Charme begeistert. Mit insgesamt 130 Wohnungen, die von einem bis fünf Zimmern reichen, bietet das Projekt eine Vielzahl an Wohnlösungen vom kompakten Rückzugsort bis hin zur großzügigen Familienwohnung. Jede Einheit verfügt über eine private Freifläche wie Balkon, Terrasse oder Garten und sorgt so für Lebensqualität in jeder Lebensphase.

Für Komfort sorgen eine Tiefgarage mit direkten Liftfahrten zu den Gebäuden, Stellplätze für PKWs und Motorräder (teilweise mit E-Ladestationen) sowie moderne Gemeinschaftsräume wie ein Paketraum, Fahrrad- und Kinderwagenabstellräume. Die großzügig gestalteten Außenflächen mit Spielplätzen für verschiedene Altersgruppen laden zum Entspannen, Spielen und Verweilen ein.

Das gesamte Projekt setzt ein starkes Zeichen für Nachhaltigkeit und Innovation. Die Energieversorgung erfolgt CO-frei über Erdwärme, die durch Tiefenbohrungen und moderne Wärmepumpen bereitgestellt wird. Eine Photovoltaikanlage auf den Dächern erzeugt saubere Energie, während Regenwassernutzungssysteme die Grünflächen effizient bewässern. Diese durchdachten Maßnahmen tragen dazu bei, die Umwelt zu schonen, die laufenden Kosten zu senken und die Lebensqualität zu erhöhen.

Die Fertigstellung ist für ca. Spätsommer 2027 geplant.

Der Verkauf erfolgt provisionsfrei für den Käufer.

 

Wir weisen darauf hin, dass zwischen dem Vermittler und dem zu vermittelnden Dritten ein familiäres oder wirtschaftliches Naheverhältnis besteht.

Der Vermittler ist als Doppelmakler tätig.


Infrastruktur / Entfernungen

Gesundheit
Arzt <1.000m
Apotheke <500m
Klinik <1.500m
Krankenhaus <1.000m

Kinder & Schulen
Schule <1.000m
Kindergarten <500m
Universität <4.000m
Höhere Schule <4.500m

Nahversorgung
Supermarkt <500m
Bäckerei <500m
Einkaufszentrum <2.000m

Sonstige
Geldautomat <1.000m
Bank <1.000m
Post <2.000m
Polizei <2.000m

Verkehr
Bus <500m
U-Bahn <2.000m
Straßenbahn <1.500m
Bahnhof <1.000m
Autobahnanschluss <2.500m

Angaben Entfernung Luftlinie / Quelle: OpenStreetMap

Klimaanlage: JA
Gartennutzung: JA
Kabel/SAT/TV: JA
Barrierefrei: JA
Provision: Provision bezahlt der Abgeber.


Alle Details anzeigen

KONTAKT






 

Lasse dich kostenlos vom Anbieter dieser Immobilie zurückrufen.







 


 
IMMOcontract Immobilien Vermittlung GmbH
Ines Lirsch-Toifl
Telefonnummer anzeigen Telefon Allgemein: +4366460008202
Handy Bearbeiter: +4366460008202
 
Bitte dem Makler die FindMyHome.at - ID bekanntgeben: 5616597

Bewertungen dieses Anbieters
Netiquette

BEWERTUNGEN DIESES ANBIETERS

 
Netiquette
FINDMYHOME.AT
NETIQUETTE
Auch du kannst bewerten! 7 Tage nach deiner Anfrage erhältst du dafür von uns ein Bewertungsmail.
Alle Infos zu unseren Auszeichnungen und dem FINDMYHOME.AT Qualitätsprogramm findest du hier: Übersicht anzeigen

FINANZIERUNG
?>

Du willst wissen, wie viel dein Umzug kosten wird?

Mach gleich den kostenlosen Preisvergleich und schau, welche seriösen Anbieter in deiner Region günstig deinen Umzug organisieren


ZUM UMZUGS-VERGLEICH
-->

MYHOME BLOG
SuchAgentin auf FindMyHome.at
Unterschiedlichen Rechtsthemen, köstliche Rezepte, neueste Design-Highlights, sowie aktuelle Technik-Tools für Ihr Eigenheim.


FINDMYHOME.AT SUCHAGENTIN
SuchAgentin auf FindMyHome.at
Hallo, soll ich dir ähnliche Immobilien kostenfrei per E-Mail schicken?


ÄHNLICHE IMMOBILIEN
Aehnliche Immobilie - Vorschaubild 1

Städtischer Luxus, Naturnahe Ruhe: LIESING GARDENS vereint b... - Objektnr. 5616358

61,99 m² - 3.0 Zimmer
420000 €
PLZ: 1230

Mehr anzeigen

Aehnliche Immobilie - Vorschaubild 2

Provisionsfrei! 2 Zimmer Gartenwohnung mit großzügiger Terra... - Objektnr. 5616594

54,88 m² - 2.0 Zimmer
329000 €
PLZ: 1230

Mehr anzeigen

Aehnliche Immobilie - Vorschaubild 3

MEIN:G - Wohnen, wo die Wege kurz sind - U-Bahn ganz nah - T... - Objektnr. 5577643

48,10 m² - 2 Zimmer
329000 €
PLZ: 1230

Mehr anzeigen

Durch die Nutzung unserer Seite erklären Sie sich mit der Verwendung von Cookies zur Verbesserung Ihres Online-Erlebnisses einverstanden. Detaillierte Informationen zu diesem und weiteren Themen erhalten Sie in unserer Datenschutzerklärung.