MEIN ERGEBNIS ANPASSEN

Wohnen mit Freifläche: Lebensqualität nahe der Alten Donau - Objektnr. 5616349

1220
Ort
74,34 m²
Fläche
3.0
Zimmer
WEITERE MEDIEN

ECKDATEN
FindMyHome.at // Externe Immobilien-ID5616349 // 51259
ImmobilienartWohnung - Eigentum
AnschriftWagramer Straße
1220 Wien
Baujahr2022
Stock6
Geschosse7
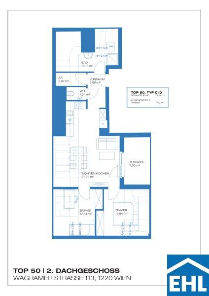
Fläche74,34 m²
Terrassen1 (8,00 m²)
Zimmer3.0
Bad1
WC1
 Abstellraum
Kaufpreis:€ 458.012,00
Ratenzahlung:Finanzierungsmöglichkeiten für diese Immobilie anzeigen
Provision: 3% des Kaufpreises zzgl. 20% USt.







BESCHREIBUNG

Wohnen mit Freifläche: Lebensqualität nahe der Alten Donau

Wohnen nahe der Alten Donau!

In unmittelbarer Nähe zum Donauzentrum, dem größten Einkaufszentrum Wiens, und der idyllischen Alten Donau, einem der beliebtesten Erholungsgebiete der Stadt, steht ein moderner Neubau mit insgesamt 53 Wohnungen. In den Verkauf gelangen 11 Wohnungen mit Wohnungsgrößen zwischen 47 und 93m². Jede Wohnung verfügt über eine Freifläche, welche dazu einlädt laue Sommerabende darauf zu verbringen.

Top 50 mit ca. 74m² und 3 Zimmer befindet sich im 2. Dachgeschoss und ist sowohl straßenseitig als auch hofseitig orientiert. Es handelt sich um eine schlüsselfertige Wohnung inkl. Küchenanschlüsse.

Das Objekt

  • 11 Wohnungen verfügbar (2-4-Zimmer)
  • Wohnungsgrößen zwischen 47 und 93 m²
  • PKW-Stellplätze in der Tiefgarage
  • Geräumiger Fahrradabstellraum im Keller
  • Energieausweis:
    • HWB: 19,80 kWh/m²a; Klasse A
    • fGEE: 0,74, Klasse A

 

Die Ausstattung

  • Fernwärme, Steuerung mittels witterungsgeführter Vorlauftemperaturregelung
  • Fußbodenheizung
  • Vorbereitung zur nachträglichen Installation von Klimaanlagen im 1. und 2. DG
  • 2-Schicht-Fertigparkett, 1-Stab-Dielen in Eichenholz Natur lackiert
  • Hochwertige, einfarbige Wand- und Bodenfliesen in den Nassräumen (Format 60x30)
  • Marken Sanitär-Keramik und Marken Armaturen
  • Hochwertige Marken-Kunststofffenster
  • Einbruchshemmende Vollbautüre mit Stahl- oder Holzumfassungszarge (RC2)
  • Teilweise inklusive Einbauküche

Die Lage:

Der Gemeindebezirk Donaustadt ist weit über die Grenzen der österreichischen Bundeshauptstadt hinaus für sein modernes Zentrum bekannt. Berühmte Gebäude wie die UNO-City oder das höchste Gebäude Österreichs, der DC-Tower, befinden sich in der Donaustadt und verleihen dem Standort einen internationalen und modernen Charakter.

  • U-Bahn: U1 Kagraner Platz
  • Straßenbahn: 26
  • Autobus: 22A, 27A, 93A, 94A

Fertigstellung: Bereits fertiggestellt!
3% Kundenprovision

Wir weisen darauf hin, dass zwischen dem Vermittler und dem zu vermittelnden Dritten ein familiäres oder wirtschaftliches Naheverhältnis besteht.

Der Vermittler ist als Doppelmakler tätig.


Infrastruktur / Entfernungen

Gesundheit
Arzt <250m
Apotheke <500m
Klinik <2.250m
Krankenhaus <3.500m

Kinder & Schulen
Schule <250m
Kindergarten <250m
Universität <1.250m
Höhere Schule <500m

Nahversorgung
Supermarkt <250m
Bäckerei <250m
Einkaufszentrum <500m

Sonstige
Geldautomat <250m
Bank <250m
Post <750m
Polizei <500m

Verkehr
Bus <250m
U-Bahn <250m
Straßenbahn <500m
Bahnhof <500m
Autobahnanschluss <1.750m

Angaben Entfernung Luftlinie / Quelle: OpenStreetMap

Kabel/SAT/TV: JA
Provision: 3% des Kaufpreises zzgl. 20% USt.


Alle Details anzeigen

KONTAKT






 

Lasse dich kostenlos vom Anbieter dieser Immobilie zurückrufen.







 


 
EHL Wohnen GmbH
Birgita EHRENBERGER
Telefonnummer anzeigen Telefon Allgemein: +4315127690422
Handy Bearbeiter: +4366488160139
 
Bitte dem Makler die FindMyHome.at - ID bekanntgeben: 5616349

Bewertungen dieses Anbieters
Qualitätsmakler
Qualitätsmakler:
Netiquette
Freundlichkeit
82 %

BEWERTUNGEN DIESES ANBIETERS

 
Qualitätsmakler
UNSERE HALL OF FAME DER BESTEN ANBIETER
Qualit�tsmakler
Qualitätsmakler
2012, 2013, 2014, 2015, 2016, 2017, 2018, 2019, 2020, 2021, 22/23, 2024, 2025
Weiterempfehlung
WIRD GERNE

Freundlichkeit
BESONDERS
FREUNDLICH
Netiquette
FINDMYHOME
NETIQUETTE
Auch du kannst bewerten! 7 Tage nach deiner Anfrage erhältst du dafür von uns ein Bewertungsmail.
Alle Infos zu unseren Auszeichnungen und dem FINDMYHOME.AT Qualitätsprogramm findest du hier: Übersicht anzeigen

FINANZIERUNG
?>

Du willst wissen, wie viel dein Umzug kosten wird?

Mach gleich den kostenlosen Preisvergleich und schau, welche seriösen Anbieter in deiner Region günstig deinen Umzug organisieren


ZUM UMZUGS-VERGLEICH
-->

MYHOME BLOG
SuchAgentin auf FindMyHome.at
Unterschiedlichen Rechtsthemen, köstliche Rezepte, neueste Design-Highlights, sowie aktuelle Technik-Tools für Ihr Eigenheim.


FINDMYHOME.AT SUCHAGENTIN
SuchAgentin auf FindMyHome.at
Hallo, soll ich dir ähnliche Immobilien kostenfrei per E-Mail schicken?


ÄHNLICHE IMMOBILIEN
Aehnliche Immobilie - Vorschaubild 1

Vorhang auf! Wohnen am oberen Hausfeld - 3 Zimmer Traum (T2.... - Objektnr. 5597783

75,96 m² - 3.0 Zimmer
530500 €
PLZ: 1220

Mehr anzeigen

Aehnliche Immobilie - Vorschaubild 2

Ihr Wohlfühlort - herrliche 3-Zimmerwohnung in Innenhofalge ... - Objektnr. 5591854

79,91 m² - 3 Zimmer
533300 €
PLZ: 1220

Mehr anzeigen

Aehnliche Immobilie - Vorschaubild 3

PROVISIONSFREI | ACHT SKRABAL - Ihr Zuhause. Für heute. Für ... - Objektnr. 5582811

60,21 m² - 3.0 Zimmer
401500 €
PLZ: 1220

Mehr anzeigen

Durch die Nutzung unserer Seite erklären Sie sich mit der Verwendung von Cookies zur Verbesserung Ihres Online-Erlebnisses einverstanden. Detaillierte Informationen zu diesem und weiteren Themen erhalten Sie in unserer Datenschutzerklärung.