MEIN ERGEBNIS ANPASSEN

Exklusivität in Grün mit Perspektive: Die besondere Atmosphäre von LIESING GARDENS als Anlagechance - Objektnr. 5616300

  • Umgebung
  • Umgebung
  • Umgebung
  • Wanderwege
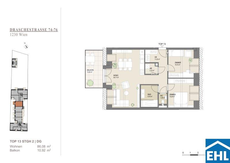
1230
Ort
86,00 m²
Fläche
3.0
Zimmer
WEITERE MEDIEN

ECKDATEN
FindMyHome.at // Externe Immobilien-ID5616300 // 83963
ImmobilienartAnlage-Vorsorgewohnung - Eigentum
AnschriftDraschestraße/13
1230 Wien
Baujahr2025
Stock2
Geschosse4
Fläche86,00 m²
Zimmer3.0
Bad1
WC1
 Abstellraum
Kaufpreis:€ 539.100,00
Ratenzahlung:Finanzierungsmöglichkeiten für diese Immobilie anzeigen
Provision: Provision bezahlt der Abgeber.







BESCHREIBUNG

Exklusivität in Grün mit Perspektive: Die besondere Atmosphäre von LIESING GARDENS als Anlagechance

Investieren Sie jetzt in Ihre Zukunft mit Liesing Gardens Vorsorgewohnungen in Wiens Süden!

Liesing Gardens präsentiert ein exklusives Wohnbauprojekt im idyllischen Süden Wiens, das die perfekte Symbiose aus urbaner Raffinesse und naturnahem Lebensstil bietet. Hier verschmelzen die Vorzüge einer grünen Umgebung entlang des Liesingbachs mit moderner Infrastruktur zu einem einzigartigen Wohnkonzept.

Das Projekt

Entdecken Sie durchdachte 2- bis 5-Zimmer-Wohneinheiten, die von Loggien und Balkonen bis hin zu townhouse ähnlichen Anordnungen mit privaten Gartenflächen reichen. Ein Highlight bilden die zwei Doppelhäuser, eingebettet in großzügige Gärten, die ein Höchstmaß an Privatsphäre und Lebensqualität bieten. Unser architektonisches Konzept schafft die perfekte Balance zwischen urbanem Flair und entspannten Rückzugsorten.

  • 33 Wohnungen
  • 2 Doppelhäuser
  • Wohnflächen von 36 bis 117 m²
  • 2 bis 5 Zimmer
  • Fahrrad-/Kinderwagenraum
  • Gemeinschaftsgärten
  • Kinderspielplatz

 

Die Ausstattung

Genießen Sie Eleganz und Funktionalität in jedem Detail unserer Innenausstattung. Hochwertige Parkettböden, großformatige Fliesen und Feinsteinzeug schaffen eine ansprechende Atmosphäre. Die Auswahl namhafter Hersteller für Armaturen und Sanitärkeramik sowie Qualitätsfenster mit 3-fach-Verglasung unterstreichen den Fokus auf Qualität und Langlebigkeit.

  • Qualitätsfenster mit 3-fach-Verglasung
  • Raffstore-Elemente bzw. außenliegende Rollos
  • Hochwertige Parkettböden
  • Großformatige Fliesen und Feinsteinzeug
  • Fußbodenheizung und Kühlung
  • Audio-Gegensprechanlage

Nachhaltigkeit

Liesing Gardens setzt Maßstäbe in Sachen Nachhaltigkeit und Effizienz. Das innovative Energiesystem mit photovoltaikgestützter Geothermie garantiert nicht nur niedrige Heizkosten, sondern auch einen kosteneffizienten Betrieb der Wärmepumpe. Mit viel Grünfläche, dem Erhalt des Baumbestands und ökologischen Bautechniken wird aktiv eine lebenswerte Zukunft gestaltet.

  • Beheizung über Geothermie/Erdwärmepumpe
  • Zusätzliche Kühlung im Dachgeschoss über thermische Bauteilaktivierung
  • Photovoltaikanlage am Dach
  • Ökologische Haustechniksteuerung
  • E-Tankstellen in der Tiefgarage

Entdecken Sie Ihr neues Zuhause, wo Urbanität, Natur und Nachhaltigkeit in perfekter Harmonie zusammenkommen inve

 

Kaufpreise der Vorsorgewohnungen

von EUR 206.100,- bis EUR 719.100,- netto zzgl. 20% USt.

Zu erwartender Mietertrag

von EUR 13,50 bis EUR 14,50 netto/m²

Provisionsfrei für den Käufer
Fertigstellung: 2. Quartal 2026

Mehr Informationen und Grundrisse finden Sie auf unserer Projekthomepage

 

Bei diesem Angebot handelt es sich um eine Vorsorgewohnung, die zu Vermietungszwecken erworben wird. Der angegebene Kaufpreis versteht sich daher zzgl. 20% USt. Diese Daten sind vorbehaltlich möglicher Änderungen.

Wir weisen darauf hin, dass zwischen dem Vermittler und dem zu vermittelnden Dritten ein familiäres oder wirtschaftliches Naheverhältnis besteht.

Der Vermittler ist als Doppelmakler tätig.


Infrastruktur / Entfernungen

Gesundheit
Arzt <500m
Apotheke <500m
Klinik <500m
Krankenhaus <2.500m

Kinder & Schulen
Schule <250m
Kindergarten <500m
Universität <2.500m
Höhere Schule <3.500m

Nahversorgung
Supermarkt <250m
Bäckerei <750m
Einkaufszentrum <750m

Sonstige
Geldautomat <750m
Bank <750m
Post <750m
Polizei <1.500m

Verkehr
Bus <250m
U-Bahn <2.500m
Straßenbahn <750m
Bahnhof <1.500m
Autobahnanschluss <750m

Angaben Entfernung Luftlinie / Quelle: OpenStreetMap

Provision: Provision bezahlt der Abgeber.


Alle Details anzeigen

KONTAKT






 

Lasse dich kostenlos vom Anbieter dieser Immobilie zurückrufen.







 


 
EHL Wohnen GmbH
Andrea PÖCHHACKER; MSc
Telefonnummer anzeigen Telefon Allgemein: +4315127690411
Handy Bearbeiter: +436648373481
 
Bitte dem Makler die FindMyHome.at - ID bekanntgeben: 5616300

Bewertungen dieses Anbieters
Qualitätsmakler
Qualitätsmakler:
Netiquette
Freundlichkeit
82 %

BEWERTUNGEN DIESES ANBIETERS

 
Qualitätsmakler
UNSERE HALL OF FAME DER BESTEN ANBIETER
Qualit�tsmakler
Qualitätsmakler
2012, 2013, 2014, 2015, 2016, 2017, 2018, 2019, 2020, 2021, 22/23, 2024, 2025
Weiterempfehlung
WIRD GERNE

Freundlichkeit
BESONDERS
FREUNDLICH
Netiquette
FINDMYHOME
NETIQUETTE
Auch du kannst bewerten! 7 Tage nach deiner Anfrage erhältst du dafür von uns ein Bewertungsmail.
Alle Infos zu unseren Auszeichnungen und dem FINDMYHOME.AT Qualitätsprogramm findest du hier: Übersicht anzeigen

FINANZIERUNG
?>

Du willst wissen, wie viel dein Umzug kosten wird?

Mach gleich den kostenlosen Preisvergleich und schau, welche seriösen Anbieter in deiner Region günstig deinen Umzug organisieren


ZUM UMZUGS-VERGLEICH
-->

MYHOME BLOG
SuchAgentin auf FindMyHome.at
Unterschiedlichen Rechtsthemen, köstliche Rezepte, neueste Design-Highlights, sowie aktuelle Technik-Tools für Ihr Eigenheim.


FINDMYHOME.AT SUCHAGENTIN
SuchAgentin auf FindMyHome.at
Hallo, soll ich dir ähnliche Immobilien kostenfrei per E-Mail schicken?


ÄHNLICHE IMMOBILIEN
Aehnliche Immobilie - Vorschaubild 1

Städtischer Luxus trifft naturnahe Ruhe - LIESING GARDENS al... - Objektnr. 5616305

77,57 m² - 3.0 Zimmer
476100 €
PLZ: 1230

Mehr anzeigen

Aehnliche Immobilie - Vorschaubild 2

Städtischer Luxus trifft naturnahe Ruhe - LIESING GARDENS al... - Objektnr. 5616311

83,79 m² - 3.0 Zimmer
494100 €
PLZ: 1230

Mehr anzeigen

Aehnliche Immobilie - Vorschaubild 3

Living in 23 - Die smarte Wahl für Ihr Kapital - Objektnr. 5616268

74,74 m² - 3.0 Zimmer
438444 €
PLZ: 1230

Mehr anzeigen

Durch die Nutzung unserer Seite erklären Sie sich mit der Verwendung von Cookies zur Verbesserung Ihres Online-Erlebnisses einverstanden. Detaillierte Informationen zu diesem und weiteren Themen erhalten Sie in unserer Datenschutzerklärung.