MEIN ERGEBNIS ANPASSEN

Ein Zuhause mit Stil, Nachhaltigkeit und Weitblick - Objektnr. 5616286

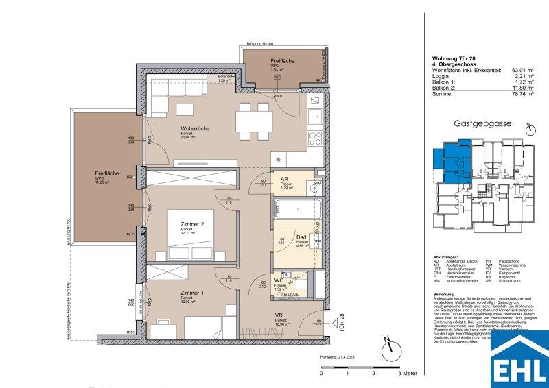
  • Top 28
1230
Ort
63,01 m²
Fläche
3.0
Zimmer
WEITERE MEDIEN

ECKDATEN
FindMyHome.at // Externe Immobilien-ID5616286 // 90449
ImmobilienartAnlage-Vorsorgewohnung - Eigentum
Anschrift1230 Wien
Baujahr2024
Stock4
Fläche63,01 m²
Zimmer3.0
Bad1
WC1
 Abstellraum
Kaufpreis:€ 366.071,43
Ratenzahlung:Finanzierungsmöglichkeiten für diese Immobilie anzeigen
Provision: Provision bezahlt der Abgeber.







BESCHREIBUNG

Ein Zuhause mit Stil, Nachhaltigkeit und Weitblick

Ein Investment mit Stil und Verantwortung

Zeitlos. Nachhaltig. Wertbeständig.
Das Wohnprojekt beim Stadtpark Atzgersdorf und der Liesing vereint architektonische Eleganz mit zukunftsorientierter Bauweise und bietet Anleger:innen die Möglichkeit, in eine Immobilie mit hervorragendem Entwicklungspotenzial zu investieren.

Auf fünf Etagen und zwei Dachgeschossen entstehen 38 hochwertige Eigentumswohnungen, die durch nachhaltige Bauweise, klare Architektur und intelligente Grundrisse überzeugen. Das Projekt kombiniert urbanen Lifestyle mit ökologischer Verantwortung eine Kombination, die in der Nachfrage von Eigennutzer:innen wie auch Mieter:innen zunehmend im Vordergrund steht.

 

Fakten im Überblick

  • 38 Eigentumswohnungen mit 2 bis 4 Zimmern

  • Wohnflächen von ca. 39 bis 109 m²

  • CO-neutrales Energiesystem

  • Top-Vermietungslage im Süden Wiens

  • Hohe Wertbeständigkeit durch nachhaltige Bauweise und steigende Nachfrage

 

Nachhaltige Wertanlage in bester Lage

Die Immobilie befindet sich im Herzen von Atzgersdorf, einem der dynamischsten Stadtentwicklungsgebiete Wiens.
Dank der Nähe zum Stadtpark Atzgersdorf, dem Kulturzentrum F23 sowie zu Schulen, Nahversorgern und öffentlichen Verkehrsmitteln bietet die Lage sowohl hohe Lebensqualität als auch stabile Vermietbarkeit.
Die geplante S-Bahn-Station Rosenhügel und bestehende Linien wie der Bus 62A sichern eine exzellente Anbindung an die Innenstadt ein entscheidender Faktor für langfristige Wertentwicklung.

 

 

Effizient. Modern. Zukunftssicher.

Das architektonische Konzept überzeugt durch klare Linien, natürliche Materialien und CO-neutrale Energietechnik.
Ein innovatives Heiz- und Kühlsystem mit Erdwärme und Sonnenenergie sorgt für niedrige Betriebskosten und entspricht modernsten ökologischen Standards ein echter Pluspunkt für nachhaltiges Investment.

Ausstattungs-Highlights:

  • Eichenparkett, Holz-Alu-Fenster mit elektrischen Außenjalousien

  • Fußbodenheizung & Kühlung über Bauteilaktivierung

  • Smart-Home-Vorbereitung für moderne Wohntechnologie

  • 23 Tiefgaragenplätze, teils E-Mobility ready

  • Großzügige Freiflächen bei jeder Wohnung: Balkon, Terrasse oder Garten

  • Gemeinschaftsgarten mit Spielplatz & Atelierbereich

 

Zu erwartender Mietertrag

von EUR 14,25 bis EUR 15,50 netto/m²

Kaufpreise der Vorsorgewohnungen

von EUR 189.732,14,- bis EUR 696.428,57- netto zzgl. 20% USt.

Provisionsfrei für den Käufer
Fertigstellung: 2024

Bei diesem Angebot handelt es sich um eine Vorsorgewohnung, die zu Vermietungszwecken erworben wird. Der angegebene Kaufpreis versteht sich daher zzgl. 20% USt. Diese Daten sind vorbehaltlich möglicher Änderungen.

 

Wir weisen darauf hin, dass zwischen dem Vermittler und dem zu vermittelnden Dritten ein familiäres oder wirtschaftliches Naheverhältnis besteht.

Der Vermittler ist als Doppelmakler tätig.


Infrastruktur / Entfernungen

Gesundheit
Arzt <1.500m
Apotheke <1.000m
Klinik <1.000m
Krankenhaus <1.500m

Kinder & Schulen
Schule <500m
Kindergarten <500m
Universität <4.500m
Höhere Schule <4.000m

Nahversorgung
Supermarkt <500m
Bäckerei <500m
Einkaufszentrum <1.500m

Sonstige
Geldautomat <1.000m
Bank <1.000m
Post <1.500m
Polizei <1.500m

Verkehr
Bus <500m
U-Bahn <1.500m
Straßenbahn <2.000m
Bahnhof <1.000m
Autobahnanschluss <2.000m

Angaben Entfernung Luftlinie / Quelle: OpenStreetMap

Provision: Provision bezahlt der Abgeber.


Alle Details anzeigen

KONTAKT






 

Lasse dich kostenlos vom Anbieter dieser Immobilie zurückrufen.







 


 
EHL Wohnen GmbH
Andrea PÖCHHACKER; MSc
Telefonnummer anzeigen Telefon Allgemein: +4315127690411
Handy Bearbeiter: +436648373481
 
Bitte dem Makler die FindMyHome.at - ID bekanntgeben: 5616286

Bewertungen dieses Anbieters
Qualitätsmakler
Qualitätsmakler:
Netiquette
Freundlichkeit
82 %

BEWERTUNGEN DIESES ANBIETERS

 
Qualitätsmakler
UNSERE HALL OF FAME DER BESTEN ANBIETER
Qualit�tsmakler
Qualitätsmakler
2012, 2013, 2014, 2015, 2016, 2017, 2018, 2019, 2020, 2021, 22/23, 2024, 2025
Weiterempfehlung
WIRD GERNE

Freundlichkeit
BESONDERS
FREUNDLICH
Netiquette
FINDMYHOME
NETIQUETTE
Auch du kannst bewerten! 7 Tage nach deiner Anfrage erhältst du dafür von uns ein Bewertungsmail.
Alle Infos zu unseren Auszeichnungen und dem FINDMYHOME.AT Qualitätsprogramm findest du hier: Übersicht anzeigen

FINANZIERUNG
?>

Du willst wissen, wie viel dein Umzug kosten wird?

Mach gleich den kostenlosen Preisvergleich und schau, welche seriösen Anbieter in deiner Region günstig deinen Umzug organisieren


ZUM UMZUGS-VERGLEICH
-->

MYHOME BLOG
SuchAgentin auf FindMyHome.at
Unterschiedlichen Rechtsthemen, köstliche Rezepte, neueste Design-Highlights, sowie aktuelle Technik-Tools für Ihr Eigenheim.


FINDMYHOME.AT SUCHAGENTIN
SuchAgentin auf FindMyHome.at
Hallo, soll ich dir ähnliche Immobilien kostenfrei per E-Mail schicken?


ÄHNLICHE IMMOBILIEN
Aehnliche Immobilie - Vorschaubild 1

Living in 23 - Ihre Chance im Süden Wiens - Objektnr. 5616267


67,51 m² - 3.0 Zimmer
409104 €
PLZ: 1230

Mehr anzeigen

Aehnliche Immobilie - Vorschaubild 2

Living in 23 - Wo Qualität auf Rendite trifft - Objektnr. 5616270

70,69 m² - 3.0 Zimmer
420131 €
PLZ: 1230

Mehr anzeigen

Aehnliche Immobilie - Vorschaubild 3

Wien 23 Neubauprojekt: Smart investieren in die Zukunft... - Objektnr. 5616341

70,43 m² - 3.0 Zimmer
383800 €
PLZ: 1230

Mehr anzeigen

Durch die Nutzung unserer Seite erklären Sie sich mit der Verwendung von Cookies zur Verbesserung Ihres Online-Erlebnisses einverstanden. Detaillierte Informationen zu diesem und weiteren Themen erhalten Sie in unserer Datenschutzerklärung.