MEIN ERGEBNIS ANPASSEN

Stilvolle Wohnung mit hochwertiger Ausstattung in Wien 1030 - Objektnr. 5615496

1030
Ort
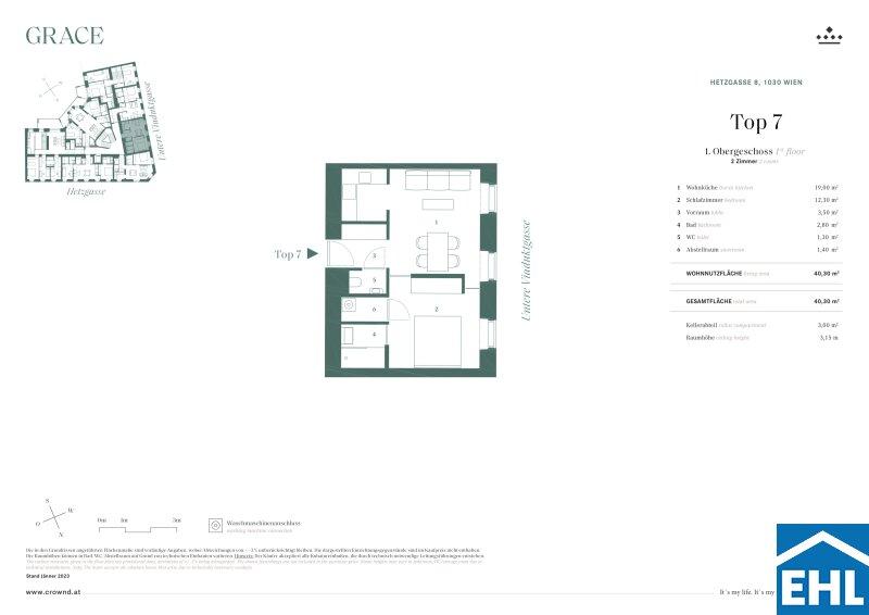
40,90 m²
Fläche
1.0
Zimmer
WEITERE MEDIEN

ECKDATEN
FindMyHome.at // Externe Immobilien-ID5615496 // 75154
ImmobilienartWohnung - Eigentum
AnschriftHetzgasse/7
1030 Wien
Baujahr1900
Stock1
Geschosse7
Fläche40,90 m²
Zimmer1.0
Bad1
WC1
 Abstellraum
Kaufpreis:€ 399.000,00
Ratenzahlung:Finanzierungsmöglichkeiten für diese Immobilie anzeigen
Provision: 3% des Kaufpreises zzgl. 20% USt.







BESCHREIBUNG

Stilvolle Wohnung mit hochwertiger Ausstattung in Wien 1030

Exklusives Wohnen im Herzen Wiens!

Willkommen im Grace, einem neuen Wohnprojekt im pulsierenden dritten Wiener Gemeindebezirk. Tauchen Sie ein in die zeitlose Eleganz von 33 sorgfältig restaurierten Altbau-Apartments im englischen Stil. Vom vielseitigen Mikroapartment über elegante Dachgeschoss-Maisonetten mit historischem Flair bis hin zu klassischen englischen Townhäusern mit bunten Eingangstüren und direktem Zugang - im Grace findet jeder sein Zuhause, geprägt von Eleganz, Charme, Stil und Lebensfreude.

Das geschichtsträchtige Altbauhaus aus dem 19. Jahrhundert mit seiner wunderschönen Fassadengliederung wird behutsam revitalisiert, um modernen Wohnkomfort mit dem Flair vergangener Epochen zu vereinen. Im Grace entsteht so ein Zuhause von einzigartigem Charakter und zeitloser Eleganz.

Die geschmackvoll revitalisierten Wohneinheiten bieten modernen Wohnkomfort in Verbindung mit historischem Charme und umfassen Apartments für unterschiedlichste Bedürfnisse von gemütlichen 36m² bis großzügigen 154m².

Für höchsten Komfort und Sicherheit bietet das Grace eine hauseigene Tiefgarage mit insgesamt 10 Stellplätzen sowie eine gut beleuchtete, leicht zugängliche Garage gleich um die Ecke mit weiteren 50 Stellplätzen, einschließlich Ladestationen für Elektroautos.

Projektdetails:

  • 33 Eigentumswohnungen
  • 2 - 4 Zimmer Apartments von 36 - 150 m²
  • Einzigartiges Townhouse mit Londoner Wohnflair
  • Sorgsam revitalisiertes Gründerzeithaus
  • Hochwertige Ausstattungspakete inklusive drei Designlinien
  • Charmanter, ruhiger Innenhof
  • Perfekte Lage nahe Wien Mitte

Ausstattungshighlights:

  • Fernwärme und Luftwärmepumpe
  • Klimageräte in den oberen Etagen, Vorbereitung in den unteren
  • Mobiler Concierge
  • Hauseigene Tiefgarage
  • Paket- und Briefkästen & Digitales Schwarzes Brett
  • Fischgrät-Parkett aus Eiche
  • Holz-Alu-Fenster
  • Kaminanschluss in ausgewählten Tops (29, 30, 32, 33)

Lage:

Grace liegt neben Wien Mitte und somit genau zwischen der Inneren Stadt und dem weitläufigen grünen Prater. Eine optimale Infrastruktur und exzellente Anbindung an den öffentlichen Verkehr bieten höchsten Wohnkomfort. Dank der U-Bahn Linien U3 und U4, der S-Bahn und den Straßenbahnlinien 1 und O erreichen Sie ganz Wien innerhalb kürzester Zeit. Zahlreiche Lokale, Restaurants, Museen sowie die Innenstadt und Grünflächen vervollständigen die traumhafte Lage.

Öffentliche Verkehrsmittel: 

  • U4 Landstraße Wien Mitte
  • Straßenbahnlinien 1 und O
  • Buslinien 74A und N29

Fertigstellung voraussichtlich im 2. Quartal 2026.
3% Kundenprovision

Lassen Sie sich von Grace verzaubern und finden Sie Ihr neues Zuhause im Herzen Wiens.

Wir weisen darauf hin, dass zwischen dem Vermittler und dem zu vermittelnden Dritten ein familiäres oder wirtschaftliches Naheverhältnis besteht.

Der Vermittler ist als Doppelmakler tätig.


Infrastruktur / Entfernungen

Gesundheit
Arzt <250m
Apotheke <500m
Klinik <750m
Krankenhaus <500m

Kinder & Schulen
Schule <250m
Kindergarten <250m
Universität <500m
Höhere Schule <1.250m

Nahversorgung
Supermarkt <250m
Bäckerei <250m
Einkaufszentrum <500m

Sonstige
Geldautomat <500m
Bank <500m
Post <250m
Polizei <500m

Verkehr
Bus <250m
U-Bahn <500m
Straßenbahn <250m
Bahnhof <500m
Autobahnanschluss <2.500m

Angaben Entfernung Luftlinie / Quelle: OpenStreetMap

Provision: 3% des Kaufpreises zzgl. 20% USt.


Alle Details anzeigen

KONTAKT






 

Lasse dich kostenlos vom Anbieter dieser Immobilie zurückrufen.







 


 
EHL Wohnen GmbH
Daniel Bolataschwili
Telefonnummer anzeigen Telefon Allgemein: +4315127690414
Handy Bearbeiter: +4366488160127
 
Bitte dem Makler die FindMyHome.at - ID bekanntgeben: 5615496

Bewertungen dieses Anbieters
Qualitätsmakler
Qualitätsmakler:
Netiquette
Freundlichkeit
82 %

BEWERTUNGEN DIESES ANBIETERS

 
Qualitätsmakler
UNSERE HALL OF FAME DER BESTEN ANBIETER
Qualit�tsmakler
Qualitätsmakler
2012, 2013, 2014, 2015, 2016, 2017, 2018, 2019, 2020, 2021, 22/23, 2024, 2025
Weiterempfehlung
WIRD GERNE

Freundlichkeit
BESONDERS
FREUNDLICH
Netiquette
FINDMYHOME
NETIQUETTE
Auch du kannst bewerten! 7 Tage nach deiner Anfrage erhältst du dafür von uns ein Bewertungsmail.
Alle Infos zu unseren Auszeichnungen und dem FINDMYHOME.AT Qualitätsprogramm findest du hier: Übersicht anzeigen

FINANZIERUNG
?>

Du willst wissen, wie viel dein Umzug kosten wird?

Mach gleich den kostenlosen Preisvergleich und schau, welche seriösen Anbieter in deiner Region günstig deinen Umzug organisieren


ZUM UMZUGS-VERGLEICH
-->

MYHOME BLOG
SuchAgentin auf FindMyHome.at
Unterschiedlichen Rechtsthemen, köstliche Rezepte, neueste Design-Highlights, sowie aktuelle Technik-Tools für Ihr Eigenheim.


FINDMYHOME.AT SUCHAGENTIN
SuchAgentin auf FindMyHome.at
Hallo, soll ich dir ähnliche Immobilien kostenfrei per E-Mail schicken?


ÄHNLICHE IMMOBILIEN
Aehnliche Immobilie - Vorschaubild 1

| NATÜRLICH DRAUSSEN | BF 14A | ANLEGER | VILLAGE IM DRITTEN... - Objektnr. 5598801

48,51 m² - 2.0 Zimmer
355500 €
PLZ: 1030

Mehr anzeigen

Aehnliche Immobilie - Vorschaubild 2

| EIGENNUTZER | URBAN DAHEIM | VILLAGE IM DRITTEN | BAUFELD ... - Objektnr. 5598756

45,43 m² - 2.0 Zimmer
378000 €
PLZ: 1030

Mehr anzeigen

Aehnliche Immobilie - Vorschaubild 3

VILLAGE IM DRITTEN + BAUFELD 13 + ERSTBEZUG + EIGENTUMSWOHNU... - Objektnr. 5598778

45,34 m² - 2.0 Zimmer
332000 €
PLZ: 1030

Mehr anzeigen

Durch die Nutzung unserer Seite erklären Sie sich mit der Verwendung von Cookies zur Verbesserung Ihres Online-Erlebnisses einverstanden. Detaillierte Informationen zu diesem und weiteren Themen erhalten Sie in unserer Datenschutzerklärung.