MEIN ERGEBNIS ANPASSEN

Stilvoller Altbau-Chic mit Eigengarten: Wohnung mit Liebe zum Detail - jetzt ZUCKERL und GOODIE sichern! - Objektnr. 5615443

8020
Ort
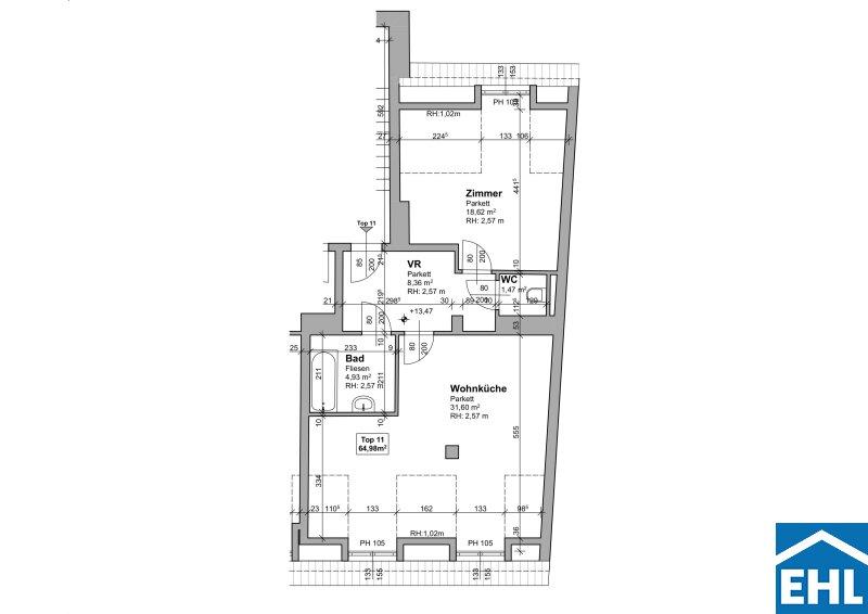
64,97 m²
Fläche
2.0
Zimmer
WEITERE MEDIEN

ECKDATEN
FindMyHome.at // Externe Immobilien-ID5615443 // 77363
ImmobilienartWohnung - Eigentum
AnschriftStrauchergasse
8020 Graz
Baujahr1969
Stock4
Geschosse5
Fläche64,97 m²
Zimmer2.0
Bad1
WC1
Kaufpreis:€ 249.000,00
Ratenzahlung:Finanzierungsmöglichkeiten für diese Immobilie anzeigen
Provision: Provision bezahlt der Abgeber.







BESCHREIBUNG

Stilvoller Altbau-Chic mit Eigengarten: Wohnung mit Liebe zum Detail - jetzt ZUCKERL und GOODIE sichern!

 

 

 

Wohnen mit Geschichte: Modernisierte Altbauwohnung in einem sorgfältig renovierten Haus

In einem neu sanierten und in neuem Glanz erstrahlenden Haus in der Strauchergasse finden sich vier einzigartige Wohnungen, die perfekt auf unterschiedliche Lebensstile und Bedürfnisse zugeschnitten sind. Die charmanten Einheiten mit 2 bis 4 Zimmern und Größen zwischen 65m² und 88 m² bieten ideale Voraussetzungen für komfortables und modernes Wohnen.

Diese lichtdurchflutete Wohnung besticht nicht nur durch ihre optimale Südausrichtung, sondern auch durch einen durchdachten Grundriss, der höchsten Wohnansprüchen gerecht wird.Das großzügige Wohnzimmer erstrahlt dank der Südausrichtung in warmem Sonnenlicht und bietet ein helles Ambiente, das den Raum das ganze Jahr über durchflutet. Der perfekte Grundriss sorgt für einen reibungslosen Wohnfluss, während der Altbaucharm durch die sorgfältige Sanierung bewahrt und mit modernen Akzenten kombiniert wird. 

Ein besonderes Highlight ist der 70 m² große Eigengarten, der zusätzlichen Freiraum und eine grüne Oase mitten in der Stadt bietet perfekt zum Entspannen, Gärtnern oder geselligen Beisammensein im Freien.

Ein vorhandener Lift macht die Wohnung barrierefrei und komfortabel in allen Lebenslagen zugänglich. Die Wohnung wurde komplett saniert und verfügt über hochwertige Ausstattungsdetails, darunter ein Paket mit edlen Bodenbelägen sowie Fliesen im Nassbereich und WC.

Zusätzlicher Mehrwert: Der Kauf dieser Wohnung wird durch ein exklusives Goodie-Paket abgerundet. Zur Auswahl stehen 3 Optionen.

Option 1: SMEG Kühl-Gefrier-Kombination
Option 2: Smart TV von Samsung: 55 The Frame LS03B
Option 3: SONOS Lautsprecher Dolby Surround System

Diese einzigartige Gelegenheit verbindet den Charme vergangener Zeiten mit zeitgemäßem Luxus. Ihr neues Zuhause wartet darauf, von Ihnen entdeckt zu werden.

Lage: 

Die Strauchergasse liegt zentral im Grazer Stadtteil Lend und verbindet städtisches Leben mit ruhiger Wohnatmosphäre. Sie profitieren von einer exzellenten öffentlichen Anbindung: Straßenbahn- und Bushaltestellen sind in nur wenigen Gehminuten erreichbar und bieten direkten Zugang ins Stadtzentrum und weitere Stadtteile.

In unmittelbarer Umgebung finden Sie zahlreiche Einkaufsmöglichkeiten, Restaurants und Cafés. Der nahe Lendplatz ist ein kultureller Hotspot, bekannt für Märkte und Veranstaltungen, während der Volksgarten als grünes Refugium für Entspannung sorgt. Die Strauchergasse bietet somit eine ideale Lage zwischen urbanem Flair, kulturellen Angeboten und komfortabler Erreichbarkeit aller wichtigen Ziele in Graz.

Öffentliche Verkehrsmittel:

Die Lage bietet eine herausragende Anbindung an öffentliche Verkehrsmittel. Innerhalb eines kurzen Fußwegs von 2-5 Minuten erreichen Sie zahlreiche Bushaltestellen und Straßenbahnlinien. Diese ausgezeichnete Erreichbarkeit macht es einfach, die Stadt zu erkunden und bequem zu anderen Zielen in Graz zu gelangen.

Straßenbahnlinien: 1, 3, 6, 7, 13, 16, 26, 40, 48, 67
Bushaltelinien: 110, 711, 52, 53, 58, 63

Bezugsfertig
Provisionsfrei für den Käufer!

Wir weisen darauf hin, dass zwischen dem Vermittler und dem zu vermittelnden Dritten ein familiäres oder wirtschaftliches Naheverhältnis besteht.

Der Vermittler ist als Doppelmakler tätig.


Infrastruktur / Entfernungen

Gesundheit
Arzt <250m
Apotheke <250m
Klinik <1.000m
Krankenhaus <500m

Kinder & Schulen
Schule <250m
Kindergarten <500m
Universität <1.250m
Höhere Schule <1.250m

Nahversorgung
Supermarkt <250m
Bäckerei <250m
Einkaufszentrum <750m

Sonstige
Geldautomat <250m
Bank <250m
Post <1.000m
Polizei <250m

Verkehr
Bus <250m
Straßenbahn <250m
Autobahnanschluss <4.750m
Bahnhof <750m
Flughafen <9.500m

Angaben Entfernung Luftlinie / Quelle: OpenStreetMap

Provision: Provision bezahlt der Abgeber.


Alle Details anzeigen

KONTAKT






 

Lasse dich kostenlos vom Anbieter dieser Immobilie zurückrufen.







 


 
EHL Wohnen GmbH
Gerald Bruchmann

Bewertungen dieses Anbieters
Qualitätsmakler
Qualitätsmakler:
Netiquette
Freundlichkeit
82 %

BEWERTUNGEN DIESES ANBIETERS

 
Qualitätsmakler
UNSERE HALL OF FAME DER BESTEN ANBIETER
Qualit�tsmakler
Qualitätsmakler
2012, 2013, 2014, 2015, 2016, 2017, 2018, 2019, 2020, 2021, 22/23, 2024, 2025
Weiterempfehlung
WIRD GERNE

Freundlichkeit
BESONDERS
FREUNDLICH
Netiquette
FINDMYHOME
NETIQUETTE
Auch du kannst bewerten! 7 Tage nach deiner Anfrage erhältst du dafür von uns ein Bewertungsmail.
Alle Infos zu unseren Auszeichnungen und dem FINDMYHOME.AT Qualitätsprogramm findest du hier: Übersicht anzeigen

FINANZIERUNG
?>

Du willst wissen, wie viel dein Umzug kosten wird?

Mach gleich den kostenlosen Preisvergleich und schau, welche seriösen Anbieter in deiner Region günstig deinen Umzug organisieren


ZUM UMZUGS-VERGLEICH
-->

MYHOME BLOG
SuchAgentin auf FindMyHome.at
Unterschiedlichen Rechtsthemen, köstliche Rezepte, neueste Design-Highlights, sowie aktuelle Technik-Tools für Ihr Eigenheim.


FINDMYHOME.AT SUCHAGENTIN
SuchAgentin auf FindMyHome.at
Hallo, soll ich dir ähnliche Immobilien kostenfrei per E-Mail schicken?


ÄHNLICHE IMMOBILIEN
Aehnliche Immobilie - Vorschaubild 1

Ihre Traumwohnung in einem liebevoll restaurierten Altbau! P... - Objektnr. 5615444

75,28 m² - 3.0 Zimmer
279000 €
PLZ: 8020

Mehr anzeigen

Aehnliche Immobilie - Vorschaubild 2

Top Neubauwohnung inkl. Einbaumöbel und Küche in Graz-Eggenb... - Objektnr. 5566476

57,70 m²
268600 €
PLZ: 8020

Mehr anzeigen

Aehnliche Immobilie - Vorschaubild 3

Erstbezug nach Sanierung: Moderne Stadtwohnung in zentraler ... - Objektnr. 5613693

64,98 m² - 2.0 Zimmer
249000 €
PLZ: 8020

Mehr anzeigen

Durch die Nutzung unserer Seite erklären Sie sich mit der Verwendung von Cookies zur Verbesserung Ihres Online-Erlebnisses einverstanden. Detaillierte Informationen zu diesem und weiteren Themen erhalten Sie in unserer Datenschutzerklärung.