MEIN ERGEBNIS ANPASSEN

Vorsorge mit Weitblick - Freiflächen für höchste Lebensqualität - Objektnr. 5615381

1170
Ort
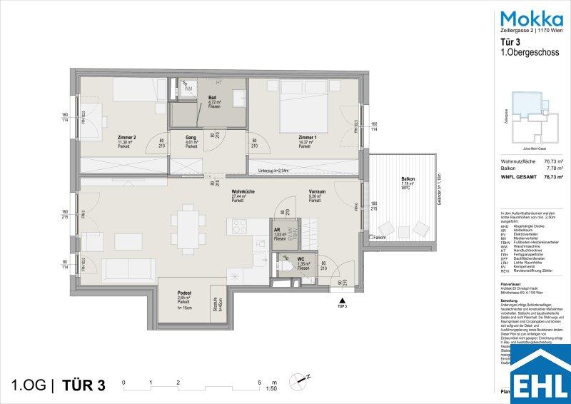
76,73 m²
Fläche
3.0
Zimmer
WEITERE MEDIEN

ECKDATEN
FindMyHome.at // Externe Immobilien-ID5615381 // 80218
ImmobilienartAnlage-Vorsorgewohnung - Eigentum
AnschriftZeillergasse/3
1170 Wien
Baujahr2024
Stock1
Geschosse6
Fläche76,73 m²
Zimmer3.0
Bad1
WC1
Kaufpreis:€ 468.750,00
Ratenzahlung:Finanzierungsmöglichkeiten für diese Immobilie anzeigen
Provision: Provisionsfrei für den Käufer







BESCHREIBUNG

Vorsorge mit Weitblick - Freiflächen für höchste Lebensqualität

Smart. Nachhaltig. Zeitlos Ein Investment, das begeistert

Ihre Chance auf eine wertstabile Investition mit hohem Renditepotenzial am Wiener Markt!

Stellen Sie sich vor: Sie betreten ein Wohnhaus, das urbanes Flair mit modernem Komfort vereint ein Zuhause, das durch innovative Bauweise und Nachhaltigkeit überzeugt. Das Projekt lässt sich auf einen kurzen Nenner bringen: Hier wird das Wohnen der Zukunft realisiert.

Das Projekt Exklusive Wohneinheiten

In der Zeillergasse 2 erwartet Sie ein fünfstöckiges Wohnhaus, das sich harmonisch in die Umgebung einfügt und gleichzeitig architektonische Akzente setzt. Die 15 Eigentumswohnungen bieten ideale Grundrisse für Singles, Paare und Jungfamilien, jeweils ausgestattet mit 2 bis 3 Zimmern und großzügigen Freiflächen. Balkone, Terrassen und Dachterrassen schaffen ein Ambiente zum Wohlfühlen und Genießen ein ideales Setting für urbanes Leben mit Mehrwert.

Nachhaltigkeit und Komfort Wohnqualität, die bleibt

Das Projekt setzt auf ein hochmodernes, CO-neutrales Wärme- und Kühlsystem und ist damit der Inbegriff für umweltbewusstes Wohnen:

  • Nutzung von Erdwärme und Sonnenenergie
  • Tiefensonden und eine leistungsstarke PV-Anlage für eine erhebliche CO-Reduktion und Energiekostensenkung
  • Nachhaltige Senkung der Betriebskosten durch Effizienz und technologische Innovation

Luxuriöse Ausstattung und durchdachte Details

Freuen Sie sich auf exklusiven Komfort, der in jeder Hinsicht überzeugt:

  • Edle Eichenparkettböden
  • Hochwertige Holz-Alu-Fenster mit Außenrollläden
  • Fußbodenheizung für eine wohlige Atmosphäre das ganze Jahr
  • Smarthome-Systemvorbereitung mit kontaktlosem Zugang und Bauteilaktivierung für optimale Kühlung im Sommer

Lage Urban und doch naturnah

Die Lage in der Zeillergasse 2 im charmanten Hernals-Viertel bietet perfekte Anbindung und Infrastruktur:

  • Straßenbahnlinie 43 bringt Sie in etwa 15 Minuten direkt ins Zentrum Wiens.
  • Die nahegelegene S-Bahn-Station Hernals und die U6-Station Alser Straße verbinden Sie optimal mit dem restlichen Stadtgebiet und darüber hinaus.

Auch Freizeit und Kulinarik kommen hier nicht zu kurz vom Kongresspark über den Wienerwald bis hin zu einer lebendigen Gastronomie- und Kulturszene. Erleben Sie Wiener Lebensqualität und investieren Sie in eine Wohnung, die sich ideal für die Eigennutzung, aber auch als Kapitalanlage eignet.

Ein Zuhause mit Zukunft sichern Sie sich Ihre Gelegenheit und vereinbaren Sie jetzt eine Besichtigung! Ein detaillierter Überblick wartet auf Sie auf unserer EHL-Projekthomepage.

Kaufpreise der Vorsorgewohnungen

von EUR 316.964,29 bis EUR 821.428,57 netto zzgl. 20% USt.

Zu erwartender Mietertrag

von ca. EUR 14,50 bis EUR 16,00 netto/m²

Provisionsfrei für den Käufer!

Bezugsfertig

Bei diesem Angebot handelt es sich um eine Vorsorgewohnung, die zu Vermietungszwecken erworben wird. Der angegebene Kaufpreis versteht sich daher zzgl. 20% USt. Diese Daten sind vorbehaltlich möglicher Änderungen.

Ein detaillierten Überblick finden Sie auf unsere EHL-Projekthomepage.
 

Wir weisen darauf hin, dass zwischen dem Vermittler und dem zu vermittelnden Dritten ein familiäres oder wirtschaftliches Naheverhältnis besteht.

Der Vermittler ist als Doppelmakler tätig.


Infrastruktur / Entfernungen

Gesundheit
Arzt <250m
Apotheke <500m
Klinik <1.250m
Krankenhaus <1.000m

Kinder & Schulen
Schule <500m
Kindergarten <500m
Universität <2.250m
Höhere Schule <1.750m

Nahversorgung
Supermarkt <250m
Bäckerei <250m
Einkaufszentrum <750m

Sonstige
Geldautomat <750m
Bank <750m
Post <750m
Polizei <500m

Verkehr
Bus <250m
U-Bahn <250m
Straßenbahn <250m
Bahnhof <250m
Autobahnanschluss <4.250m

Angaben Entfernung Luftlinie / Quelle: OpenStreetMap

Provision: Provisionsfrei für den Käufer


Alle Details anzeigen

KONTAKT






 

Lasse dich kostenlos vom Anbieter dieser Immobilie zurückrufen.







 


 
EHL Wohnen GmbH
Andrea PÖCHHACKER; MSc
Telefonnummer anzeigen Telefon Allgemein: +4315127690411
Handy Bearbeiter: +436648373481
 
Bitte dem Makler die FindMyHome.at - ID bekanntgeben: 5615381

Bewertungen dieses Anbieters
Qualitätsmakler
Qualitätsmakler:
Netiquette
Freundlichkeit
82 %

BEWERTUNGEN DIESES ANBIETERS

 
Qualitätsmakler
UNSERE HALL OF FAME DER BESTEN ANBIETER
Qualit�tsmakler
Qualitätsmakler
2012, 2013, 2014, 2015, 2016, 2017, 2018, 2019, 2020, 2021, 22/23, 2024, 2025
Weiterempfehlung
WIRD GERNE

Freundlichkeit
BESONDERS
FREUNDLICH
Netiquette
FINDMYHOME
NETIQUETTE
Auch du kannst bewerten! 7 Tage nach deiner Anfrage erhältst du dafür von uns ein Bewertungsmail.
Alle Infos zu unseren Auszeichnungen und dem FINDMYHOME.AT Qualitätsprogramm findest du hier: Übersicht anzeigen

FINANZIERUNG
?>

Du willst wissen, wie viel dein Umzug kosten wird?

Mach gleich den kostenlosen Preisvergleich und schau, welche seriösen Anbieter in deiner Region günstig deinen Umzug organisieren


ZUM UMZUGS-VERGLEICH
-->

MYHOME BLOG
SuchAgentin auf FindMyHome.at
Unterschiedlichen Rechtsthemen, köstliche Rezepte, neueste Design-Highlights, sowie aktuelle Technik-Tools für Ihr Eigenheim.


FINDMYHOME.AT SUCHAGENTIN
SuchAgentin auf FindMyHome.at
Hallo, soll ich dir ähnliche Immobilien kostenfrei per E-Mail schicken?


ÄHNLICHE IMMOBILIEN
Aehnliche Immobilie - Vorschaubild 1

3-Zimmer-Wohntraum - Nachhaltiges Wohnen beim Yppenplatz - H... - Objektnr. 5429295

65,32 m² - 3.0 Zimmer
392400 €
PLZ: 1170

Mehr anzeigen

Durch die Nutzung unserer Seite erklären Sie sich mit der Verwendung von Cookies zur Verbesserung Ihres Online-Erlebnisses einverstanden. Detaillierte Informationen zu diesem und weiteren Themen erhalten Sie in unserer Datenschutzerklärung.