MEIN ERGEBNIS ANPASSEN

Gartenwohnung in Oberlaa! Moderner Neubau inklusive Küche! - Objektnr. 5614812

  • Neulaa Top 4 Wohnzimmer
  • Neulaa Top 4 Traumküche
  • Neulaa Top 4 Dusche
  • Neulaa Top 4 Vorzimmer Abstellraum WC
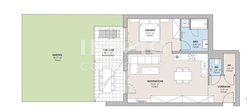
  • Neulaa Top 4 Grundriss
1100
Ort
56,73 m²
Fläche
2.0
Zimmer

ECKDATEN
FindMyHome.at // Externe Immobilien-ID5614812 // 1939/162872
ImmobilienartWohnung - Eigentum
Anschrift1100 Wien
Beziehbar ab2026-01-16
Fläche56,73 m²
Terrassen1 (16,00 m²)
Zimmer2.0
Bad1
 Abstellraum
Kaufpreis:€ 484.770,00
Ratenzahlung:Finanzierungsmöglichkeiten für diese Immobilie anzeigen
Provision: 3 % zuzüglich 20 % Ust







BESCHREIBUNG

Gartenwohnung in Oberlaa! Moderner Neubau inklusive Küche!

Wohnen in Oberlaa

Sie suchen Ihr erstes eigenes Zuhause in Wien,ruhig, modern und dennoch perfekt angebunden Dann ist Oberlaa genau das Richtige für Sie! Hier wohnen Sie im Grünen, eingebettet in stilvolle Einfamilienhäuser und Villen und erreichen in nur wenigen Gehminuten die U1. So sind Sie in kürzester Zeit mitten in der Wiener Innenstadt.

Alles, was Sie brauchen direkt vor der Tür
Einkaufsmöglichkeiten wie Hofer und Billa erreichen Sie bequem zu Fuß. Auch Trafiken, Apotheken und Drogeriemärkte befinden sich in der Nähe. Und wenn Sie gerne shoppen: Über die S1 sind Sie in wenigen Minuten mit dem Auto in der SCS.

Modern wohnen mit gutem Gewissen
Sehr niedriger Energieverbrauch
Klimafreundliches Heizsystem
Lift, Fahrradraum & eigenes Kellerabteil

Oberlaa: Ländliche Ruhe trifft urbanen Lifestyle
Oberlaa bietet mehr als nur Idylle: Der Zukunftshof bringt urbanes Flair und innovative Konzepte in den Bezirk mit spannenden Veranstaltungen, Kulinarik und Kunst. Am nahegelegenen Gugumuck-Hof erwarten Sie Sommerkino, saisonale Events und regionale Spezialitäten in einzigartiger Atmosphäre. Und für entspannte Abende gibt es die Gartenbar ein beliebter Treffpunkt für alle, die gutes Essen, Drinks und das Grüne lieben.

Lebensqualität, die begeistert
Freuen Sie sich auf eine ruhige Nachbarschaft, hohe Wohnqualität und zahlreiche Freizeitmöglichkeiten direkt vor der Haustür ideal für alle, die das Stadtleben schätzen, aber auf Natur und Entspannung nicht verzichten möchten. Die Therme Wien ist ebenfalls rasch erreicht und der große WIG Park dient der totalen Erholung mit der köstlichen Kurkonditorei und den unzähligen Heurigenlokalen.

Infrastruktur / Entfernungen

Gesundheit
Arzt <1.000m
Apotheke <500m
Klinik <2.500m
Krankenhaus <4.500m

Kinder & Schulen
Schule <1.000m
Kindergarten <500m
Universität <2.000m
Höhere Schule <5.500m

Nahversorgung
Supermarkt <500m
Bäckerei <500m
Einkaufszentrum <1.500m

Sonstige
Geldautomat <1.500m
Bank <1.000m
Post <1.500m
Polizei <1.000m

Verkehr
Bus <500m
U-Bahn <500m
Straßenbahn <3.000m
Bahnhof <500m
Autobahnanschluss <2.000m

Angaben Entfernung Luftlinie / Quelle: OpenStreetMap

Provision: 3 % zuzüglich 20 % Ust


Alle Details anzeigen

KONTAKT






 

Lasse dich kostenlos vom Anbieter dieser Immobilie zurückrufen.







 


 
IMMOcontract Immobilien Vermittlung GmbH
Alexandra Kraus
Telefonnummer anzeigen Telefon Allgemein: +4366460008134
Handy Bearbeiter: +4366460008134
 
Bitte dem Makler die FindMyHome.at - ID bekanntgeben: 5614812

Bewertungen dieses Anbieters
Netiquette

BEWERTUNGEN DIESES ANBIETERS

 
Netiquette
FINDMYHOME.AT
NETIQUETTE
Auch du kannst bewerten! 7 Tage nach deiner Anfrage erhältst du dafür von uns ein Bewertungsmail.
Alle Infos zu unseren Auszeichnungen und dem FINDMYHOME.AT Qualitätsprogramm findest du hier: Übersicht anzeigen

FINANZIERUNG
?>

Du willst wissen, wie viel dein Umzug kosten wird?

Mach gleich den kostenlosen Preisvergleich und schau, welche seriösen Anbieter in deiner Region günstig deinen Umzug organisieren


ZUM UMZUGS-VERGLEICH
-->

MYHOME BLOG
SuchAgentin auf FindMyHome.at
Unterschiedlichen Rechtsthemen, köstliche Rezepte, neueste Design-Highlights, sowie aktuelle Technik-Tools für Ihr Eigenheim.


FINDMYHOME.AT SUCHAGENTIN
SuchAgentin auf FindMyHome.at
Hallo, soll ich dir ähnliche Immobilien kostenfrei per E-Mail schicken?


ÄHNLICHE IMMOBILIEN
Aehnliche Immobilie - Vorschaubild 1

PROVISIONSFREI | AM FRANZOSENWEG - Objektnr. 5582360


64,34 m² - 3.0 Zimmer
457500 €
PLZ: 1100

Mehr anzeigen

Aehnliche Immobilie - Vorschaubild 2

Hauptbahnhof: Attraktive Zweizimmer-Wohnung - PROVISIONSFREI... - Objektnr. 5606186

53,36 m² - 2.0 Zimmer
390000 €
PLZ: 1100

Mehr anzeigen

Aehnliche Immobilie - Vorschaubild 3

Directly at the main train station: Commission-free... - Objektnr. 5605949

53,44 m² - 2.0 Zimmer
420000 €
PLZ: 1100

Mehr anzeigen

Durch die Nutzung unserer Seite erklären Sie sich mit der Verwendung von Cookies zur Verbesserung Ihres Online-Erlebnisses einverstanden. Detaillierte Informationen zu diesem und weiteren Themen erhalten Sie in unserer Datenschutzerklärung.