MEIN ERGEBNIS ANPASSEN

Historische Villa mit Studie für Ausbauprojekt in Grinzinger Bestlage - Objektnr. 5614548

1190
Ort
618,83 m²
Fläche
20.0
Zimmer

ECKDATEN
FindMyHome.at // Externe Immobilien-ID5614548 // 3870
ImmobilienartHaus - Eigentum
Anschrift1190 Wien
Baujahr1906
Geschosse4
Fläche618,83 m²
Grundfläche1.909,00 m²
Terrassen2 (184,00 m²)
Zimmer20.0
Bad5
WC6
Kaufpreis:€ 5.900.000,00
Ratenzahlung:Finanzierungsmöglichkeiten für diese Immobilie anzeigen
Provision: 3% des Kaufpreises zzgl. 20% USt.







BESCHREIBUNG

Historische Villa mit Studie für Ausbauprojekt in Grinzinger Bestlage

Im Falle der Notwendigkeit einer Fremdfinanzierung Ihrer Wunschimmobilie ermittelt unser Wohnbau-Finanzierungsexperte gerne die optimale Finanzierungslösung und findet das passende Zins- und Konditionsangebot für Sie. Er vergleicht die aktuellen Angebote aller relevanten Banken und Bausparkassen. Der Angebotsvergleich kann aus einem Portfolio von über 120 Banken erfolgen. Das Erstgespräch ist für Sie kostenfrei und unverbindlich, gerne auch bei Ihnen vor Ort. So sparen Sie Ihre wertvolle Zeit und erhalten eine professionelle und unabhängige Finanzierungslösung vom Spezialisten. Sprechen Sie uns wegen eines Termins gerne an!

 

Zum Verkauf gelangt eine einzigartige Villa im Grünen im schönen 19. Wiener Gemeindebezirk.

Die traumhafte Villa wurde im Jahre 1906 auf einem wunderschönen ca. 1.909 m² großen Grundstück errichtet. Ein Blick auf die stilvoll gestaltete Fassade reicht aus um von diesem schönen Objekt zu überzeugen. Die ca. 619 m² Wohnfläche erstreckt sich auf vier Stockwerke und teilt sich auf in 20 Wohnräume sowie 6 Badezimmer und 5 separate WC´s. Die Wohnfläche lässt sich ebenfalls in sieben Wohneinheiten aufteilen. Eleganter Fischgrätparkett sowie stillvolle Fliesen schmücken die Böden des bezaubernden Hauses. Auf einer Gesamtnutzfläche von ca. 965 m² bietet das Haus zusätzlich eine Waschküche, einen Heizraum, einen Öltankraum, vier Abstellräume sowie zwei Balkone und zwei großflächige Terrassen. Eine hauseigene Garage ist ebenfalls enthalten.

Die Immobilie wird im aktuellen Zustand, wie auf den Bildern und Plänen ersichtlich, verkauft. Für einen möglichen Aus- und Zubau gibt es bereits eine Bebauungsstudie, die eine Erweiterung der Wohnnutzfläche auf 757 m² sowie Freiflächen von insgesamt 247 m² vorsieht. Dabei soll sowohl das Dachgeschoss ausgebaut, als auch eine Erweiterung in Form eines Zubaus realisiert werden. Der Fokus liegt dabei auf der Gestaltung von offenen und modernen Räumlichkeiten sowie das Verschmelzen der Innen- und Außenräume, mit Hilfe von großen Fensterfronten. Die stilvolle straßenseitige Fassade soll erhalten bleiben. So soll eine einzigartiger Wohntraum, welcher modern mit historischen perfekt kombiniert, entstehen. Auf Anfrage erhalten Sie gerne das detaillierte Entwurfskonzept der Studie zur Durchsicht.
Auf Wunsch kann gegen Aufpreis der Umbau, oder aber auch ein Abriss und Neubau, vom aktuellen Eigentümer durchgeführt werden. Der Kaufpreis richtet sich dann nach den individuellen Wünschen und Veränderungen.

 

Gerne führen wir Sie durch die Räumlichkeiten des aktuellen Bestands:
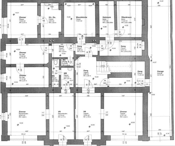
Der grüne Vorgarten führt Sie zum ebenerdig begehbaren Erdgeschoss. Die beiden Eingangstüren führen Sie in jeweils eine der drei Wohneinheiten, die sich in dem Geschoss befinden. Beide verfügen über einen großflächigen Vorraum und einen großen Wohnraum. Die linke Wohneinheit führt Sie über den Vorraum zum Badezimmer und zur Toilette. Die dritte Wohneinheit verfügt über ca. 50 m² und ist über einen Gang erreichbar. Drei Zimmer, eine Küche mit Dusche und eine separate Toilette befinden sich in dieser Einheit. Ebenfalls finden Sie in dem Geschoss die Waschküche, den Heizraum den Öltankraum sowie Zugang zur Garage. Über eine Treppe gelangen Sie in das 1. Obergeschoss.

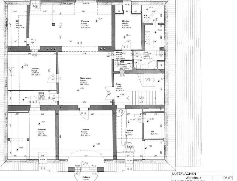
Das ca. 213 m² große Geschoss unterteilt sich in zwei ca. 103 m² große Einheiten. Beide Wohneinheiten verfügen über traumhafte Freifläche und erfüllen jeden Wohntraum. Die Treppe aus dem Erdgeschoss führt Sie gerade durch in die erste Einheit. Diese überzeugt mit einem großen Gang, zwei Zimmer, einer Küche, einem Badezimmer, einer separaten Toilette sowie dem Herzstück der Einheit. Ein märchenhafter Wohnsalon mit Zugang auf den Balkon. Über die stilvolle Balustrade hinweg, können Sie die grüne Umgebung genießen. Die zweite Einheit erstreckt sich über vier Zimmer, ein Badezimmer, eine separate Toilette, einen Abstellraum und über mehrere Flure. Über diese erreichen Sie die atemberaubende ca. 102 m² große Terrasse. Hier können Sie schöne Sonnenstunden genießen. Ihren Gestaltungsvorstellungen werden hier keine Grenzen gesetzt.

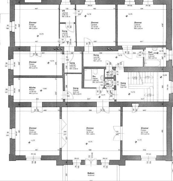
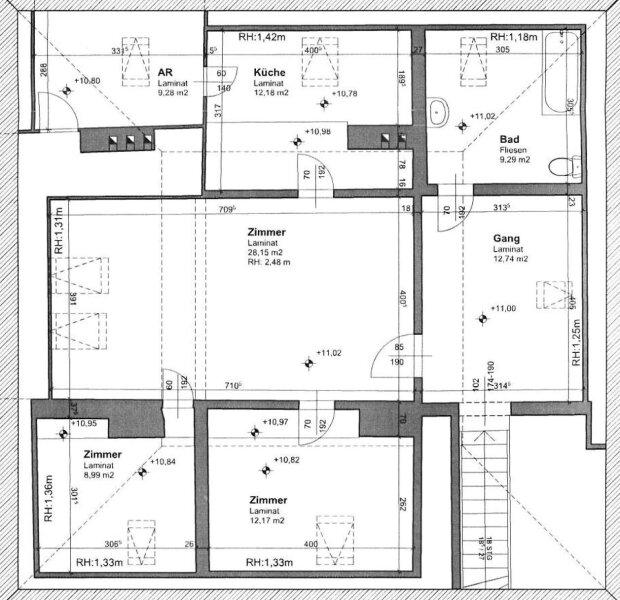
Das ca. 192 m² große Dachgeschoss ist ebenfalls über eine Treppe erreichbar. In diesem haben Sie Zugang zu zwei Einheiten. Hier befindet sich die größte der sieben Einheiten. Auf einer unglaublichen Fläche von ca. 170 m² bleiben hier keine Wünsche mehr offen. Diese Einheit bietet Ihnen fünf großflächige Zimmer, eine Küche, ein Badezimmer, eine separate Toilette und zwei Abstellräume. Zusätzlichen haben Sie Zugang zu einem charmanten Balkon und einer unglaublichen ca. 70 m großen Terrasse, auf welcher Sie im Schatten des Altbaumbestandes entspannen können. Die zweite Einheit erstreckt sich über das 1. und 2. Dachgeschoss und bietet eine Wohnfläche von ca. 116 m². Sie betreten die Wohnung im 1. Dachgeschoss und finden hier einen großzügigen Eingangsbereich mit einer Treppe und einen Abstellraum. Die Treppe führt Sie in das nächste Geschoss, in welchem Sie drei Zimmer, eine Küche, ein Badezimmer, einen Vorraum sowie einen Abstellraum finden.

 

Die Lage der Villa könnte kaum besser sein. Die Villa liegt mitten in dem begehrten Bezirk Grinzing. Idyllische Grünruhelage und trotzdem eine hervorragende Anbindung an das öffentliche Verkehrsnetz zeichnen die wunderbare Lage dieser Immobilie aus. Die Buslinie 38A sowie die Straßenbahnlinie 38 bringen Sie schnell an Ihr Ziel. Vielfältige Einkaufsmöglichkeiten, Schulen und Kindergärten benden sich in unmittelbarer Umgebung. Für nähere Informationen zur Infrastruktur, fordern Sie bitte unser Exposé an.

Gerne lassen wir Ihnen bei ernsthaftem Interesse - vor Kaufanbotlegung - weitere vertraulichen Dokumente zu dieser Liegenschaft zukommen, welche nicht veröffentlicht werden dürfen.

Überzeugen Sie sich selbst von diesem überaus attraktiven Objekt. Für Besichtigungen und nähere Informationen stehen wir Ihnen gerne zur Verfügung!

Mag. Viola Wasmuth
national - Tel: 0670 4039361
international - Tel: +43 670 4039361
e-mail:

 

Wir weisen darauf hin, dass zwischen dem Vermittler und dem zu vermittelnden Dritten ein familiäres oder wirtschaftliches Naheverhältnis besteht.

Der Vermittler ist als Doppelmakler tätig.

 

 


Infrastruktur / Entfernungen

Gesundheit
Arzt <1.000m
Apotheke <1.000m
Klinik <2.000m
Krankenhaus <2.500m

Kinder & Schulen
Schule <1.000m
Kindergarten <1.500m
Universität <2.000m
Höhere Schule <2.500m

Nahversorgung
Supermarkt <1.000m
Bäckerei <1.000m
Einkaufszentrum <3.000m

Sonstige
Geldautomat <2.000m
Bank <1.000m
Post <1.000m
Polizei <2.000m

Verkehr
Bus <500m
U-Bahn <3.000m
Straßenbahn <1.000m
Bahnhof <2.000m
Autobahnanschluss <3.000m

Angaben Entfernung Luftlinie / Quelle: OpenStreetMap

Provision: 3% des Kaufpreises zzgl. 20% USt.


Alle Details anzeigen

KONTAKT






 

Lasse dich kostenlos vom Anbieter dieser Immobilie zurückrufen.







 


 
IM Lifestyle Properties GmbH
Viola Wasmuth
Telefonnummer anzeigen Telefon Allgemein: +4315121484
Handy Bearbeiter: +436704039361
 
Bitte dem Makler die FindMyHome.at - ID bekanntgeben: 5614548

Bewertungen dieses Anbieters
Qualitätsmakler
Qualitätsmakler:
2019, 2023,
Netiquette
Freundlichkeit

BEWERTUNGEN DIESES ANBIETERS

 
Qualit�tsmakler
Qualitätsmakler
2019, 22/23
Freundlichkeit
BESONDERS
FREUNDLICH
Netiquette
FINDMYHOME
NETIQUETTE
Auch du kannst bewerten! 7 Tage nach deiner Anfrage erhältst du dafür von uns ein Bewertungsmail.
Alle Infos zu unseren Auszeichnungen und dem FINDMYHOME.AT Qualitätsprogramm findest du hier: Übersicht anzeigen

FINANZIERUNG
?>

Du willst wissen, wie viel dein Umzug kosten wird?

Mach gleich den kostenlosen Preisvergleich und schau, welche seriösen Anbieter in deiner Region günstig deinen Umzug organisieren


ZUM UMZUGS-VERGLEICH
-->

MYHOME BLOG
SuchAgentin auf FindMyHome.at
Unterschiedlichen Rechtsthemen, köstliche Rezepte, neueste Design-Highlights, sowie aktuelle Technik-Tools für Ihr Eigenheim.


FINDMYHOME.AT SUCHAGENTIN
SuchAgentin auf FindMyHome.at
Hallo, soll ich dir ähnliche Immobilien kostenfrei per E-Mail schicken?


Durch die Nutzung unserer Seite erklären Sie sich mit der Verwendung von Cookies zur Verbesserung Ihres Online-Erlebnisses einverstanden. Detaillierte Informationen zu diesem und weiteren Themen erhalten Sie in unserer Datenschutzerklärung.