MEIN ERGEBNIS ANPASSEN

TOP Investment - Zirka 5,9% Rendite aktuell! Zirka 3000m² bei Abbruch-Neubau möglich! Schnappen Sie sich dieses Sorglos-Paket mit großem Potential! - Objektnr. 5614330

1230
Ort
1.078,00 m²
Fläche

ECKDATEN
FindMyHome.at // Externe Immobilien-ID5614330 // 294525
ImmobilienartZinshaus - Eigentum
Anschrift1230 Wien
Fläche914,00 m²
Grundfläche1.165,00 m²
Kaufpreis:€ 1.790.000,00
Ratenzahlung:Finanzierungsmöglichkeiten für diese Immobilie anzeigen
Provision: 3% des Kaufpreises zzgl. 20% USt.







BESCHREIBUNG

TOP Investment - Zirka 5,9% Rendite aktuell! Zirka 3000m² bei Abbruch-Neubau möglich! Schnappen Sie sich dieses Sorglos-Paket mit großem Potential!

TOP Investment - Zirka 5,9% Rendite aktuell! Zirka 3000m² bei Abbruch-Neubau möglich! Schnappen Sie sich dieses Sorglos-Paket mit großem Potential!

 

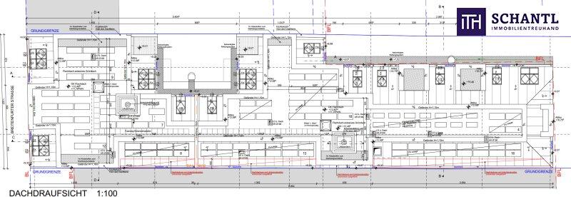
Zum Verkauf steht eine attraktive Liegenschaft mit ca. 914m² Bestandsfläche (Straßentrakt + Halle) und der Möglichkeit das Dachgeschoss auszubauen bzw. einen Neubau zu planen. Dazu liegt bereits eine Einereichplanung vor mit einem Potential von ca. 3000m² erzielbarer Fläche.

Aktuell ist die Liegenschaft befristet vermietet (2027) und wurde ein modernes Lokal im Erdgeschoss fertiggestellt mit einem schönen Gastgarten im Hof. Die Wohnungen wurden saniert, ebenso die Fassade hofseitig mit einem Vollwärmeschutz versehen und die Fenster 2010 erneuert.

 

Facts / Aktueller IST-Zustand:

+ Bestandsfläche: ca. 914m²

+ Aufteilung der Bestandsfläche: Wohnfläche: ca. 227,11m² + Geschäftsfläche: ca. 686,19m²

+ Alle Einheiten befristet vermietet. (2027)

+ Die Wohnungen wurden saniert, die Fenster wurden 2010 auch bereits erneuert.

+ Lokal im Erdgeschoss mit aufrechter Betriebsanlagengenehmigung.

+ Akuelle Mieteinnahmen: € 10.668,75.- netto / Pro Monat

+ Aktuelle Rendite ca. 5,9%

+ Zusätzliche Mieteinnahmen durch die Werbefläche noch möglich (ca. € 400.-/Monat)

+ Einreichplan für Abriss/Neubau vorhanden für ca. 3000m²

+ PV-Anlage mit 29kwp möglich!

 

Kaufpreis: € 1.790.000.-

 

Worauf warten Sie noch Wir beraten Sie gerne und senden Ihnen bei Interesse weitere Unterlagen wie die Zinsliste, Einreichplanung usw. zu.

www.schantl-ith.at

Hinweis gemäß Energieausweisvorlagegesetz: Ein Energieausweis wurde vom Eigentümer bzw. Verkäufer, nach unserer Aufklärung über die generell geltende Vorlagepflicht, sowie Aufforderung zu seiner Erstellung noch nicht vorgelegt. Daher gilt zumindest eine dem Alter und der Art des Gebäudes entsprechende Gesamtenergieeffizienz als vereinbart. Wir übernehmen keinerlei Gewähr oder Haftung für die tatsächliche Energieeffizienz der angebotenen Immobilie.

Wir weisen darauf hin, dass zwischen dem Vermittler und dem zu vermittelnden Dritten ein familiäres oder wirtschaftliches Naheverhältnis besteht.

Der Vermittler ist als Doppelmakler tätig.


Infrastruktur / Entfernungen

Gesundheit
Arzt <1.000m
Apotheke <500m
Klinik <1.000m
Krankenhaus <2.500m

Kinder & Schulen
Schule <500m
Kindergarten <500m
Universität <5.500m
Höhere Schule <5.500m

Nahversorgung
Supermarkt <500m
Bäckerei <500m
Einkaufszentrum <1.500m

Sonstige
Geldautomat <1.000m
Bank <500m
Post <1.000m
Polizei <1.500m

Verkehr
Bus <500m
U-Bahn <2.000m
Straßenbahn <2.000m
Bahnhof <1.000m
Autobahnanschluss <3.000m

Angaben Entfernung Luftlinie / Quelle: OpenStreetMap

Gartennutzung: JA
Provision: 3% des Kaufpreises zzgl. 20% USt.


Alle Details anzeigen

KONTAKT






 

Lasse dich kostenlos vom Anbieter dieser Immobilie zurückrufen.







 


 
Schantl ITH Immobilientreuhand GmbH
Samir Agha-Schantl
Telefonnummer anzeigen Telefon Allgemein: +436643070009
Handy Bearbeiter: +436604701793
 
Bitte dem Makler die FindMyHome.at - ID bekanntgeben: 5614330

Bewertungen dieses Anbieters
Qualitätsmakler
Qualitätsmakler:
2015, 2016, 2018, 2019, 2020, 2021, 2023 , 2024, 2025,
Netiquette
Freundlichkeit
80 %

BEWERTUNGEN DIESES ANBIETERS

 
Qualit�tsmakler
Qualitätsmakler
2015, 2016, 2018, 2019, 2020, 2021, 22/23, 2024, 2025
Antwortzeit
ø 48h ANTWORT
Weiterempfehlung
WIRD GERNE

Freundlichkeit
BESONDERS
FREUNDLICH
Netiquette
FINDMYHOME
NETIQUETTE
Auch du kannst bewerten! 7 Tage nach deiner Anfrage erhältst du dafür von uns ein Bewertungsmail.
Alle Infos zu unseren Auszeichnungen und dem FINDMYHOME.AT Qualitätsprogramm findest du hier: Übersicht anzeigen

FINANZIERUNG
?>

Du willst wissen, wie viel dein Umzug kosten wird?

Mach gleich den kostenlosen Preisvergleich und schau, welche seriösen Anbieter in deiner Region günstig deinen Umzug organisieren


ZUM UMZUGS-VERGLEICH
-->

MYHOME BLOG
SuchAgentin auf FindMyHome.at
Unterschiedlichen Rechtsthemen, köstliche Rezepte, neueste Design-Highlights, sowie aktuelle Technik-Tools für Ihr Eigenheim.


FINDMYHOME.AT SUCHAGENTIN
SuchAgentin auf FindMyHome.at
Hallo, soll ich dir ähnliche Immobilien kostenfrei per E-Mail schicken?


Durch die Nutzung unserer Seite erklären Sie sich mit der Verwendung von Cookies zur Verbesserung Ihres Online-Erlebnisses einverstanden. Detaillierte Informationen zu diesem und weiteren Themen erhalten Sie in unserer Datenschutzerklärung.