MEIN ERGEBNIS ANPASSEN

CANAVESE - Erstbezug 2-Zimmer-Dachgeschosswohnung mit Balkon, Liesing - PROVISIONSFREI - Objektnr. 5613857

1230
Ort
41,99 m²
Fläche
2.0
Zimmer

ECKDATEN
FindMyHome.at // Externe Immobilien-ID5613857 // 62486
ImmobilienartEigentum
Anschrift/14
1230 Wien
Baujahr2027
Geschosse4
Fläche41,99 m²
Zimmer2.0
Bad1
WC1
Kaufpreis:€ 265.300,00
Ratenzahlung:Finanzierungsmöglichkeiten für diese Immobilie anzeigen
Provision:







BESCHREIBUNG

CANAVESE - Erstbezug 2-Zimmer-Dachgeschosswohnung mit Balkon, Liesing - PROVISIONSFREI

In der Canavesegasse 4, eingebettet in eine ruhige und beliebte Wohngegend des 23. Wiener Gemeindebezirks, entsteht mit CANAVESE ein hochwertiges Neubauprojekt der Chronos Wohnbau Gruppe. Die Lage verbindet angenehme Zurückgezogenheit mit sehr guter urbaner Anbindung und bietet eine Wohnqualität, die Ruhe, Grün und Infrastruktur in ausgewogener Weise vereint.

Atzgersdorf steht für gewachsene Strukturen, Grünräume und ein entspanntes Wohnumfeld bei gleichzeitig guter Erreichbarkeit des Stadtzentrums. Ein Standort für Menschen, die bewusst wohnen möchten und Wert auf Alltagstauglichkeit legen.

Architektur und Projektkonzept

Zwei architektonisch klar gestaltete Baukörper fügen sich harmonisch in das bestehende Ortsbild ein. Das Projekt umfasst 18 Eigentumswohnungen sowie 4 hochwertig integrierte Gewerbeflächen im Erdgeschoss. Die gewählte Projektgröße trägt zu einem ruhigen Wohngefühl und einer nachhaltigen Nachbarschaftsstruktur bei.

Die Wohnungen reichen von Gartenwohnungen über großzügige Familienwohnungen bis hin zu durchdacht geplanten Dachgeschosswohnungen. Ein Großteil der Einheiten verfügt über private Freiflächen  Eigengärten, Terrassen oder Balkone und schafft damit wertvolle Außenräume für den Alltag.

Individuelle Gestaltungsmöglichkeiten

Sie können Ihr zukünftiges Zuhause in vielen Bereichen persönlich mitgestalten.
Dazu zählen sofern gewünscht

  • die Auswahl von Bodenbelägen und Fliesen 
  • die Festlegung von Sanitärausstattung und Armaturen,
  • die Abstimmung von Details des Innenausbaus wie Türen und Schalterprogramme,
  • sowie die Anpassung von Grundriss und Raumaufteilung an individuelle Wohnbedürfnisse

Die Wohnungsbilder im Inserat beziehen sich auf Top 2, Top 8 sowie Top 11 und geben einen wundervollen ersten Eindruck in die Lebensqualität des Projekts.

Ausstattung und Wohnqualität

Klare Linien, großzügige Fensterflächen und eine durchdachte Raumorganisation prägen das Wohngefühl. Fußbodenheizung, moderne Haustechnik, hochwertige Sanitärausstattung und langlebige Materialien bilden die Grundlage für zeitlosen Wohnkomfort und nachhaltige Wertbeständigkeit.

Die Grundrisse sind vielseitig nutzbar und eignen sich für unterschiedliche Lebenssituationen  vom ersten Eigenheim über die Familienzeit bis hin zur langfristigen Vorsorge.

Lage und Umgebung

Die Umgebung bietet einen hohen Freizeit- und Erholungswert. Die Liesing, der Lainzer Tiergarten sowie die Perchtoldsdorfer Heide befinden sich in unmittelbarer Nähe. Nahversorgung, Schulen, Kindergärten und öffentliche Verkehrsmittel sind gut erreichbar. Die Wiener Innenstadt erreichen Sie in rund 25 Minuten.

Zeitplan

Der Baustart ist für Sommer 2026 vorgesehen, die Fertigstellung für Herbst 2027. Die klare Projektstruktur, die hochwertige Planung und die Möglichkeit zur individuellen Abstimmung bieten eine verlässliche Grundlage für Eigennutzer wie auch für Anleger.

CANAVESE steht für

Ruhiges Wohnen. Durchdachte Planung. Individuelle Gestaltung. Langfristige Nutzbarkeit.

Ein Neubauprojekt für Menschen, die bewusst wählen
und Wert auf Qualität, Ruhe und Substanz legen.

Gerne übermitteln wir Ihnen auf Anfrage auch die Preisliste für Anleger.

 

Objektbeschreibung

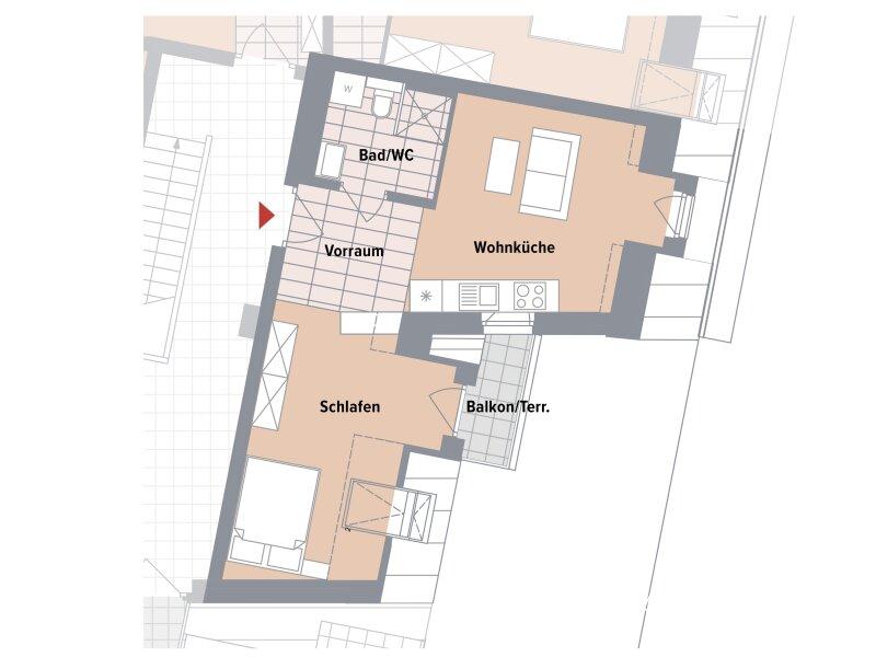
Top 14 in Haus 1 befindet sich im 3. Obergeschoss und eignet sich ideal für Singles, Paare oder Anleger.

Mit ca. 41,99 m² Wohnnutzfläche bietet die Wohnung eine gut strukturierte 2-Zimmer-Aufteilung, die ein komfortables und funktionales Wohnen ermöglicht.

Der offen gestaltete Wohn-/Ess-/Kochbereich bildet den zentralen Wohnraum der Wohnung und verfügt über einen direkten Zugang zum Balkon, der den Wohnbereich angenehm ins Freie erweitert.

Das Schlafzimmer ist separat begehbar und bietet ausreichend Platz für Ruhe und Rückzug.

Ein Badezimmer mit WC, ein gut nutzbarer Vorraum sowie ein Balkon sind funktional in den klar gegliederten Grundriss integriert und runden das Raumangebot stimmig ab.

Highlights auf einen Blick

  • ca. 41,99 m² Wohnnutzfläche
  • 2-Zimmer-Wohnung mit effizientem Grundriss
  • Wohn-/Ess-/Kochbereich
  • Balkon
  • separat begehbares Schlafzimmer
  • Bad mit WC
  • gut nutzbare Raumaufteilung
  • attraktive Lage im Dachgeschoss

 


Infrastruktur / Entfernungen

Gesundheit
Arzt <1.000m
Apotheke <500m
Klinik <500m
Krankenhaus <2.000m

Kinder & Schulen
Schule <500m
Kindergarten <500m
Universität <5.000m
Höhere Schule <4.500m

Nahversorgung
Supermarkt <500m
Bäckerei <500m
Einkaufszentrum <2.000m

Sonstige
Geldautomat <500m
Bank <500m
Post <2.000m
Polizei <2.000m

Verkehr
Bus <500m
U-Bahn <2.000m
Straßenbahn <2.000m
Bahnhof <500m
Autobahnanschluss <2.500m

Angaben Entfernung Luftlinie / Quelle: OpenStreetMap

Rollstuhlgerecht: JA
Barrierefrei: JA
Provision:


Alle Details anzeigen

KONTAKT






 

Lasse dich kostenlos vom Anbieter dieser Immobilie zurückrufen.







 


 
AKKADIA Immobilienvermittlung GmbH
Lia Seidel
Telefonnummer anzeigen Handy Bearbeiter: +436604035828
 
Bitte dem Makler die FindMyHome.at - ID bekanntgeben: 5613857

Bewertungen dieses Anbieters
Netiquette
Freundlichkeit

BEWERTUNGEN DIESES ANBIETERS

 
Freundlichkeit
BESONDERS
FREUNDLICH
Netiquette
FINDMYHOME
NETIQUETTE
Auch du kannst bewerten! 7 Tage nach deiner Anfrage erhältst du dafür von uns ein Bewertungsmail.
Alle Infos zu unseren Auszeichnungen und dem FINDMYHOME.AT Qualitätsprogramm findest du hier: Übersicht anzeigen

FINANZIERUNG
?>

Du willst wissen, wie viel dein Umzug kosten wird?

Mach gleich den kostenlosen Preisvergleich und schau, welche seriösen Anbieter in deiner Region günstig deinen Umzug organisieren


ZUM UMZUGS-VERGLEICH
-->

MYHOME BLOG
SuchAgentin auf FindMyHome.at
Unterschiedlichen Rechtsthemen, köstliche Rezepte, neueste Design-Highlights, sowie aktuelle Technik-Tools für Ihr Eigenheim.


FINDMYHOME.AT SUCHAGENTIN
SuchAgentin auf FindMyHome.at
Hallo, soll ich dir ähnliche Immobilien kostenfrei per E-Mail schicken?


ÄHNLICHE IMMOBILIEN
Aehnliche Immobilie - Vorschaubild 1

ANLEGERPREIS | NEUBAUHIT | 2-ZIMMER | SCHLÜSSELFERTIG | ERST... - Objektnr. 5556268

38,86 m² - 2.0 Zimmer
233076.48 €
PLZ: 1230

Mehr anzeigen

Aehnliche Immobilie - Vorschaubild 2

Erstbezug nach Errichtung | für Anleger oder Eigennutzer | 2... - Objektnr. 5561549

44,09 m² - 2.0 Zimmer
249970 €
PLZ: 1230

Mehr anzeigen

Aehnliche Immobilie - Vorschaubild 3

Anleger oder Eigennutzer | Erstbezug nach Errichtung | 2 Zim... - Objektnr. 5561547

44,09 m² - 2.0 Zimmer
269700 €
PLZ: 1230

Mehr anzeigen

Durch die Nutzung unserer Seite erklären Sie sich mit der Verwendung von Cookies zur Verbesserung Ihres Online-Erlebnisses einverstanden. Detaillierte Informationen zu diesem und weiteren Themen erhalten Sie in unserer Datenschutzerklärung.