MEIN ERGEBNIS ANPASSEN

Sanierungsbedürftige 3,5-Zimmer-Wohnung mit traumhaften Ausblick in Gersthof - Objektnr. 5613819

1180
Ort
93,42 m²
Fläche
3.5
Zimmer

ECKDATEN
FindMyHome.at // Externe Immobilien-ID5613819 // 16163
ImmobilienartWohnung - Eigentum
Anschrift1180 Wien
Stock2
Fläche93,42 m²
Zimmer3.5
Bad1
WC1
Kaufpreis:€ 614.314,00
Ratenzahlung:Finanzierungsmöglichkeiten für diese Immobilie anzeigen
Provision: 3% des Kaufpreises zzgl. 20% USt.







BESCHREIBUNG

Sanierungsbedürftige 3,5-Zimmer-Wohnung mit traumhaften Ausblick in Gersthof

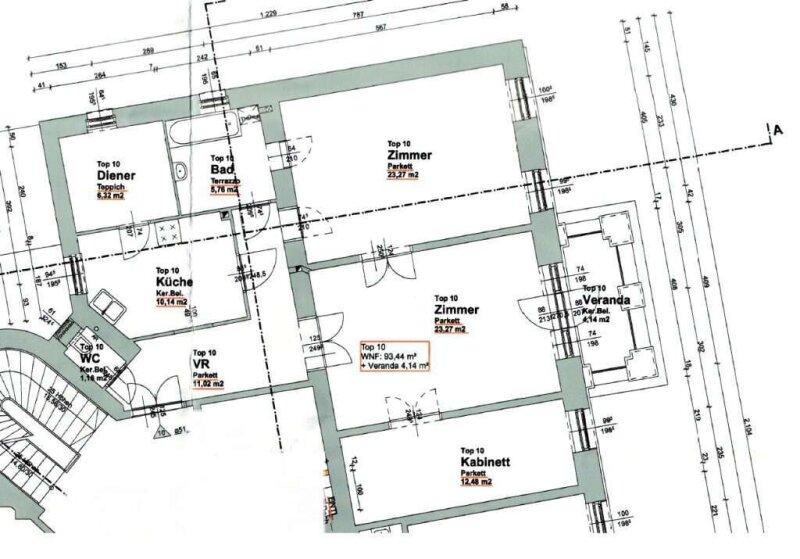
Diese 3-Zimmer-Wohnung befindet sich in begehrter Lage im 18. Wiener Gemeindebezirk und bietet eine interessante Gelegenheit für Käufer, die eine Immobilie nach eigenen Vorstellungen gestalten möchten. Die Wohnung liegt im 2. Obergeschoß und verfügt über eine großzügige Wohnfläche von 93,44 m².

Die Raumaufteilung ist funktional und gut durchdacht:
Über den Vorraum gelangt man in das Wohnzimmer mit Zugang auf den Westbalkon. Rechts davon befindet sich ein weiteres, kleineres Zimmer, links ein Schlafzimmer. Vom Vorraum aus sind außerdem die Küche mit separater Speis, das Badezimmer sowie eine separate Toilette erreichbar. Vom Badezimmer aus gelangt man zusätzlich in das große Schlafzimmer.

Die hellen Räume bieten eine gute Basis für eine individuelle Sanierung und Modernisierung. Die Wohnung ist sanierungsbedürftig und eröffnet dadurch entsprechendes Wertsteigerungspotenzial.

Die Verkehrsanbindung ist ausgezeichnet: Bus, Straßenbahn und Zug sind fußläufig erreichbar und ermöglichen eine schnelle Anbindung in alle Teile der Stadt. Auch die Infrastruktur überzeugt Ärzte, Apotheken, Kliniken, Schulen, Supermärkte und Bäckereien befinden sich in unmittelbarer Nähe. Die Nähe zur Universität und zu höheren Schulen macht die Wohnung zudem für Studierende oder Akademiker attraktiv.

Der Kaufpreis beträgt 614.315,00 €.


Eine Besichtigung lohnt sich, um sich persönlich von Lage, Grundriss und Entwicklungspotenzial dieser Immobilie zu überzeugen.

 

 

Kontakt
Für weitere Informationen oder zur Vereinbarung eines Besichtigungstermins kontaktieren Sie bitte
Frau Julia Koch persönlich unter +43 660 664 7444 oder per E-Mail an koch@moritz-immobilien.at.

Unser Büro erreichen Sie unter office@moritz-immobilien.at.

 

  • Grunderwerbssteuer: 3.5% 
  • Grundbucheintragung Kosten: 1.1% 
  • Vertragserrichtungsgebuehr: ca. 1,2% des Kaufpreises zzgl. 20% USt. durch SRG Stock Rafaseder Gruszkiewicz Rechtsanwälte
  • Maklerprovision: 3% des Kaufpreises zzgl. 20% USt.

 

Maklervereinbarung: Wir ersuchen um Verständnis, dass wir bei Anfragen zur Objektadresse, bzw. Besichtigungstermin  aufgrund neuer gesetzlicher Bestimmungen Unterlagen erst dann zusenden können, wenn Sie vorab bestätigen, dass Sie unser sofortiges Tätigwerden wünschen und über Ihre Rücktrittsrechte aufgeklärt wurden. Sie bekommen nach Ihrer schriftlichen Anfrage mit vollständiger Angabe des Namens, Anschrift und Telefonnummer ein Email, in dem Sie diese Punkte bestätigen müssen.


Haftungsausschluss:  Wir weisen darauf hin, dass sämtliche Daten im vorliegenden Angebot sowie die von unserem Büro an Sie weitergegebenen Auskünfte, vom Eigentümer der Immobilie zur Verfügung gestellt wurden. Ebenso sind Informationen von Dritten (z.B. behördliche Informationen) eingeholt worden, auch für diese können wir unsererseits keinerlei Haftung für deren uneingeschränkte Richtigkeit übernehmen.

Wir weisen darauf hin, dass zwischen dem Vermittler und dem zu vermittelnden Dritten ein familiäres oder wirtschaftliches Naheverhältnis besteht.


Infrastruktur / Entfernungen

Gesundheit
Arzt <500m
Apotheke <500m
Klinik <500m
Krankenhaus <1.500m

Kinder & Schulen
Schule <500m
Kindergarten <500m
Universität <1.000m
Höhere Schule <1.000m

Nahversorgung
Supermarkt <500m
Bäckerei <500m
Einkaufszentrum <2.000m

Sonstige
Geldautomat <500m
Bank <500m
Post <500m
Polizei <1.000m

Verkehr
Bus <500m
U-Bahn <1.500m
Straßenbahn <500m
Bahnhof <1.000m
Autobahnanschluss <3.500m

Angaben Entfernung Luftlinie / Quelle: OpenStreetMap

Provision: 3% des Kaufpreises zzgl. 20% USt.


Alle Details anzeigen

KONTAKT






 

Lasse dich kostenlos vom Anbieter dieser Immobilie zurückrufen.







 


 
Moritz Immobilien
Julia Koch
Telefonnummer anzeigen Telefon Allgemein: +436606647444
 
Bitte dem Makler die FindMyHome.at - ID bekanntgeben: 5613819

Bewertungen dieses Anbieters
Netiquette

BEWERTUNGEN DIESES ANBIETERS

 
Netiquette
FINDMYHOME.AT
NETIQUETTE
Auch du kannst bewerten! 7 Tage nach deiner Anfrage erhältst du dafür von uns ein Bewertungsmail.
Alle Infos zu unseren Auszeichnungen und dem FINDMYHOME.AT Qualitätsprogramm findest du hier: Übersicht anzeigen

FINANZIERUNG
?>

Du willst wissen, wie viel dein Umzug kosten wird?

Mach gleich den kostenlosen Preisvergleich und schau, welche seriösen Anbieter in deiner Region günstig deinen Umzug organisieren


ZUM UMZUGS-VERGLEICH
-->

MYHOME BLOG
SuchAgentin auf FindMyHome.at
Unterschiedlichen Rechtsthemen, köstliche Rezepte, neueste Design-Highlights, sowie aktuelle Technik-Tools für Ihr Eigenheim.


FINDMYHOME.AT SUCHAGENTIN
SuchAgentin auf FindMyHome.at
Hallo, soll ich dir ähnliche Immobilien kostenfrei per E-Mail schicken?


ÄHNLICHE IMMOBILIEN
Aehnliche Immobilie - Vorschaubild 1

Neubauprojekt I 3 Zimmer I Terrasse A\ - Objektnr. 5613134


83,70 m² - 3.0 Zimmer
729000 €
PLZ: 1180

Mehr anzeigen

Aehnliche Immobilie - Vorschaubild 2

Charmante 3-Zimmer Altbauwohnung mit Loggia, Nähe Volksoper... - Objektnr. 5565678

100,09 m² - 3.0 Zimmer
595000 €
PLZ: 1180

Mehr anzeigen

Aehnliche Immobilie - Vorschaubild 3

Erstbezug. Topsanierte 3 Zimmerwohnung plus 5,06 m² Balkon (... - Objektnr. 5291531

86,30 m² - 3.0 Zimmer
698300 €
PLZ: 1180

Mehr anzeigen

Durch die Nutzung unserer Seite erklären Sie sich mit der Verwendung von Cookies zur Verbesserung Ihres Online-Erlebnisses einverstanden. Detaillierte Informationen zu diesem und weiteren Themen erhalten Sie in unserer Datenschutzerklärung.