MEIN ERGEBNIS ANPASSEN

Charmante 3-Zimmer-Wohnung mit Balkon in 1210 Wien - Ihr neues Zuhause! - Objektnr. 5613816

1210
Ort
€ 1.580,53
Gesamtkosten
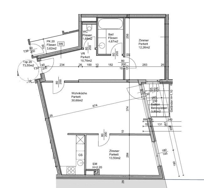
73,55 m²
Fläche
3.0
Zimmer

ECKDATEN
FindMyHome.at // Externe Immobilien-ID5613816 // 16154
ImmobilienartWohnung - Miete
Anschrift1210 Wien
Stock2
Mietdauer5
Fläche73,55 m²
Zimmer3.0
Bad1
WC1
Brutto-Miete:€ 1.580,53
Betriebskosten (inkl. MwSt):€ 193,37
Mehrwertsteuer:€ 150,71
Monatliche Gesamtkosten:€ 1.580,53
Provision: Gemäß Erstauftraggeberprinzip bezahlt der Abgeber die Provision.




BESCHREIBUNG

Charmante 3-Zimmer-Wohnung mit Balkon in 1210 Wien - Ihr neues Zuhause!

Mietwohnung mit Balkon in 1210 Wien 3 Zimmer auf ca. 73,55 m²

Zur Vermietung gelangt eine gepflegte 3-Zimmer-Wohnung in zentraler Lage des 21. Bezirks (1210 Wien). Die Wohnung befindet sich im 2. Obergeschoss und bietet eine Wohnfläche von ca. 73,55 m² sowie einen Balkon.

Die Raumaufteilung ist funktional und gut nutzbar:
Die Wohnung verfügt über eine Wohnküche, ein Badezimmer mit Badewanne, ein separates WC sowie zwei weitere Zimmer, die sich flexibel als Schlaf-, Kinder- oder Arbeitszimmer nutzen lassen.

Die Ausstattung umfasst u. a. Fliesen und Parkett. Eine Einbauküche ist vorhanden.

Der Balkon bietet zusätzlichen Freiraum und eignet sich ideal für entspannte Stunden im Freien.

Die Wohnung besticht durch ihren funktionalen Grundriss und eignet sich ideal für Singles oder Paare, die Wert auf modernen Wohnkomfort legen.


Lage & Infrastruktur

Diese attraktive Wohnung in 1210 Wien überzeugt durch ihre hervorragende Lage in unmittelbarer Nähe zum Bahnhof Floridsdorf. Hier profitieren Sie von einer ausgezeichneten Infrastruktur: Ärzte, Apotheke und Kliniken sind ebenso schnell erreichbar wie Schulen, Kindergarten und Universitäten. Supermärkte, Bäckereien und ein Einkaufszentrum sorgen für besten Komfort. Die Anbindung an öffentliche Verkehrsmittel wie Bus, U-Bahn und Straßenbahn sowie der Autobahnanschluss runden das Angebot ab. Ideal für Stadtliebhaber!


Öffentliche Verkehrsanbindung

Die Lage bietet eine hervorragende Anbindung an das öffentliche Verkehrsnetz:

  • Straßenbahnlinien 30 und 31 direkt vor der Haustür, mit schneller Verbindung zur U6 (Floridsdorf) und in die Innenstadt

  • Buslinien 30A, 36A, 36B Richtung Strebersdorf, Leopoldau und Floridsdorf Bahnhof

  • Bahnhof Floridsdorf wenige Minuten entfernt, mit U6, S-Bahn, Regionalzügen und Busverbindungen

  • Rasche Erreichbarkeit der A22 Donauuferautobahn sowie der B3 Richtung Zentrum

Nebenkosten:

  • 3 Bruttomonatsmieten Kaution

Wir möchten Sie höflichst darauf hinweisen, dass der Mietvertrag jährlich an den Verbraucherpreisindex angepasst wird.

 


Kontakt
Für weitere Informationen oder zur Vereinbarung eines Besichtigungstermins kontaktieren Sie bitte
Frau Julia Koch persönlich unter +43 660 664 7444 oder per E-Mail an koch@moritz-immobilien.at.

Unser Büro erreichen Sie unter office@moritz-immobilien.at.

 

Maklervereinbarung: Wir ersuchen um Verständnis, dass wir bei Anfragen zur Objektadresse, bzw. Besichtigungstermin aufgrund neuer gesetzlicher Bestimmungen Unterlagen erst dann zusenden können, wenn Sie vorab bestätigen, dass Sie unser sofortiges Tätigwerden wünschen und über Ihre Rücktrittsrechte aufgeklärt wurden. Sie bekommen nach Ihrer schriftlichen Anfrage mit vollständiger Angabe des Namens, Anschrift und Telefonnummer ein Email, in dem Sie diese Punkte bestätigen müssen.


Haftungsausschluss: Wir weisen darauf hin, dass sämtliche Daten im vorliegenden Angebot sowie die von unserem Büro an Sie weitergegebenen Auskünfte, vom Eigentümer der Immobilie zur Verfügung gestellt wurden. Ebenso sind Informationen von Dritten (z.B. behördliche Informationen) eingeholt worden, auch für diese können wir unsererseits keinerlei Haftung für deren uneingeschränkte Richtigkeit übernehmen.

Wir weisen darauf hin, dass zwischen dem Vermittler und dem zu vermittelnden Dritten ein familiäres oder wirtschaftliches Naheverhältnis besteht.

Der Immobilienmakler erklärt, dass er entgegen dem in der Immobilienwirtschaft üblichen Geschäftsgebrauch des Doppelmaklers einseitig nur für den Vermieter tätig ist.

Barrierefrei: JA
Provision: Gemäß Erstauftraggeberprinzip bezahlt der Abgeber die Provision.


Alle Details anzeigen

KONTAKT






 

Lasse dich kostenlos vom Anbieter dieser Immobilie zurückrufen.







 


 
Moritz Immobilien
Julia Koch
Telefonnummer anzeigen Telefon Allgemein: +436606647444
 
Bitte dem Makler die FindMyHome.at - ID bekanntgeben: 5613816

Bewertungen dieses Anbieters
Netiquette

BEWERTUNGEN DIESES ANBIETERS

 
Netiquette
FINDMYHOME.AT
NETIQUETTE
Auch du kannst bewerten! 7 Tage nach deiner Anfrage erhältst du dafür von uns ein Bewertungsmail.
Alle Infos zu unseren Auszeichnungen und dem FINDMYHOME.AT Qualitätsprogramm findest du hier: Übersicht anzeigen


Du willst wissen, wie viel dein Umzug kosten wird?

Mach gleich den kostenlosen Preisvergleich und schau, welche seriösen Anbieter in deiner Region günstig deinen Umzug organisieren


ZUM UMZUGS-VERGLEICH
-->

MYHOME BLOG
SuchAgentin auf FindMyHome.at
Unterschiedlichen Rechtsthemen, köstliche Rezepte, neueste Design-Highlights, sowie aktuelle Technik-Tools für Ihr Eigenheim.


FINDMYHOME.AT SUCHAGENTIN
SuchAgentin auf FindMyHome.at
Hallo, soll ich dir ähnliche Immobilien kostenfrei per E-Mail schicken?


ÄHNLICHE IMMOBILIEN
Aehnliche Immobilie - Vorschaubild 1

Wohnen & Büro! Einzigartiges Atelier mit offener Galerie im ... - Objektnr. 5612526

78,29 m² - 1.5 Zimmer
1490 €
PLZ: 1210

Mehr anzeigen

Aehnliche Immobilie - Vorschaubild 2

Charmante 3-Zimmer-Wohnung mit Garten in 1210 Wien... - Objektnr. 5608488

68,00 m² - 3.0 Zimmer
1353.86 €
PLZ: 1210

Mehr anzeigen

Aehnliche Immobilie - Vorschaubild 3

Stilvoll wohnen, großzügig leben! Helle 3-Zimmer-Wohnung mit... - Objektnr. 5611744

74,20 m² - 3.0 Zimmer
1780.28 €
PLZ: 1210

Mehr anzeigen

Durch die Nutzung unserer Seite erklären Sie sich mit der Verwendung von Cookies zur Verbesserung Ihres Online-Erlebnisses einverstanden. Detaillierte Informationen zu diesem und weiteren Themen erhalten Sie in unserer Datenschutzerklärung.