MEIN ERGEBNIS ANPASSEN

Urbanes Leben und grüne Oasen: Die Lage von "The Legacy" - Objektnr. 5613787

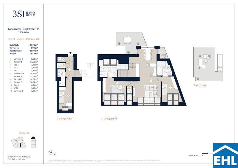
1030
Ort
103,04 m²
Fläche
4.0
Zimmer
WEITERE MEDIEN

ECKDATEN
FindMyHome.at // Externe Immobilien-ID5613787 // 75350
ImmobilienartWohnung - Eigentum
AnschriftLandstraßer Hauptstraße/41
1030 Wien
Fläche103,04 m²
Terrassen1 (36,00 m²)
Zimmer4.0
Bad3
WC3
 Abstellraum
Kaufpreis:€ 1.490.000,00
Ratenzahlung:Finanzierungsmöglichkeiten für diese Immobilie anzeigen
Provision: 3% des Kaufpreises zzgl. 20% USt.







BESCHREIBUNG

Urbanes Leben und grüne Oasen: Die Lage von "The Legacy"

Exklusive Wohnkultur im Herzen Wiens: The Legacy - Wo Geschichte auf Moderne trifft

Gelegen in der Landstraßer Hauptstraße, verkörpert "The Legacy" als historisches Wiener Eckhaus Kultur, Beständigkeit und Lebensqualität in einzigartiger Weise. Die edlen Eigentumswohnungen sind durch behutsame Restaurierung zu wahren Unikaten geworden, die die Vergangenheit in die Gegenwart tragen. Die stilvolle Revitalisierung des Altbaus schont Ressourcen, reduziert CO2-Emissionen und verhindert Bodenversiegelungen, wodurch nachhaltiges Wohnen im Vordergrund steht. Entdecken Sie dieses Jahrhundertjuwel, das durch seine spektakuläre Neuinterpretation im neuen Glanz erstrahlt.

Das Projekt: 

  • 26 Eigentumswohnungen
  • 1 Luxus-Penthouse mit Pool
  • 1 - 4 Zimmer
  • 32 - 187 m² Wohnfläche
  • Balkone, Terrassen und Gärten
  • Smart-Home-System im Dachgeschoß

 

Die Ausstattung:

Im geschichtsträchtigen Eckhaus der Landstraßer Hauptstraße vereint jedes Zuhause das Gefühl der Großzügigkeit mit höchster handwerklicher Qualität. In den Regelgeschoßwohnungen bildet das edle Fischgrätparkett aus Eiche das Fundament für eine außergewöhnliche Wohnatmosphäre.

  • Fußbodenheizung mittels Fernwärme
  • Fenster mit 3-ScheibenIsolierverglasung
  • Edle Eichen Parkettböden in den Wohnräumen
  • Hochwertige Fliesen in den Nassräumen
  • Sanitärausstattung namhafter Marken wie Laufen/Grohe

 

Die Lage:

Die Umgebung bietet mit der Landstraßer Hauptstraße, dem Rochusmarkt und "THE MALL" vielfältige Einkaufs- und Genusserlebnisse. Der Arenbergpark, der Stadtpark sowie der grüne Prater laden zur Entspannung ein und vereinen Natur und städtisches Leben harmonisch.

Öffentliche Verkehrsanbindung:

  • Bahnhof St. Marx
  • U3 Station Kardinal-Nagl-Platz
  • Buslinien 74A und 77A
  • Straßenbahn 71

 

3% Kundenprovision!
Fertigstellung: erfolgt

Wir weisen darauf hin, dass zwischen dem Vermittler und dem zu vermittelnden Dritten ein familiäres oder wirtschaftliches Naheverhältnis besteht.

Der Vermittler ist als Doppelmakler tätig.


Infrastruktur / Entfernungen

Gesundheit
Arzt <500m
Apotheke <250m
Klinik <250m
Krankenhaus <250m

Kinder & Schulen
Schule <250m
Kindergarten <250m
Universität <750m
Höhere Schule <750m

Nahversorgung
Supermarkt <250m
Bäckerei <250m
Einkaufszentrum <750m

Sonstige
Geldautomat <250m
Bank <500m
Post <500m
Polizei <500m

Verkehr
Bus <250m
U-Bahn <500m
Straßenbahn <500m
Bahnhof <500m
Autobahnanschluss <1.250m

Angaben Entfernung Luftlinie / Quelle: OpenStreetMap

Provision: 3% des Kaufpreises zzgl. 20% USt.


Alle Details anzeigen

KONTAKT






 

Lasse dich kostenlos vom Anbieter dieser Immobilie zurückrufen.







 


 
EHL Wohnen GmbH
Ilse Reindl
Telefonnummer anzeigen Telefon Allgemein: +4315127690410
Handy Bearbeiter: +4366488160143
 
Bitte dem Makler die FindMyHome.at - ID bekanntgeben: 5613787

Bewertungen dieses Anbieters
Qualitätsmakler
Qualitätsmakler:
Netiquette
Freundlichkeit
82 %

BEWERTUNGEN DIESES ANBIETERS

 
Qualitätsmakler
UNSERE HALL OF FAME DER BESTEN ANBIETER
Qualit�tsmakler
Qualitätsmakler
2012, 2013, 2014, 2015, 2016, 2017, 2018, 2019, 2020, 2021, 22/23, 2024, 2025
Weiterempfehlung
WIRD GERNE

Freundlichkeit
BESONDERS
FREUNDLICH
Netiquette
FINDMYHOME
NETIQUETTE
Auch du kannst bewerten! 7 Tage nach deiner Anfrage erhältst du dafür von uns ein Bewertungsmail.
Alle Infos zu unseren Auszeichnungen und dem FINDMYHOME.AT Qualitätsprogramm findest du hier: Übersicht anzeigen

FINANZIERUNG
?>

Du willst wissen, wie viel dein Umzug kosten wird?

Mach gleich den kostenlosen Preisvergleich und schau, welche seriösen Anbieter in deiner Region günstig deinen Umzug organisieren


ZUM UMZUGS-VERGLEICH
-->

MYHOME BLOG
SuchAgentin auf FindMyHome.at
Unterschiedlichen Rechtsthemen, köstliche Rezepte, neueste Design-Highlights, sowie aktuelle Technik-Tools für Ihr Eigenheim.


FINDMYHOME.AT SUCHAGENTIN
SuchAgentin auf FindMyHome.at
Hallo, soll ich dir ähnliche Immobilien kostenfrei per E-Mail schicken?


ÄHNLICHE IMMOBILIEN
Aehnliche Immobilie - Vorschaubild 1

Untere Weißgerberstraße 17 - Freiraum zum Leben | ROOFTOP CO... - Objektnr. 5586048

107,01 m² - 3.0 Zimmer
1395000 €
PLZ: 1030

Mehr anzeigen

Aehnliche Immobilie - Vorschaubild 2

The Legacy: Was für Aussichten! Exklusiver Dachtraum mit Ter... - Objektnr. 5584285

123,76 m² - 4.0 Zimmer
1550000 €
PLZ: 1030

Mehr anzeigen

Aehnliche Immobilie - Vorschaubild 3

Untere Weißgerberstraße 17 - Freiraum zum Leben | ROOFTOP CO... - Objektnr. 5586050

105,51 m² - 3.0 Zimmer
1295000 €
PLZ: 1030

Mehr anzeigen

Durch die Nutzung unserer Seite erklären Sie sich mit der Verwendung von Cookies zur Verbesserung Ihres Online-Erlebnisses einverstanden. Detaillierte Informationen zu diesem und weiteren Themen erhalten Sie in unserer Datenschutzerklärung.