MEIN ERGEBNIS ANPASSEN

++NEU++ Premium 2-Zimmer ALTBAU-ZWEITBEZUG in fantastischer Lage! - Objektnr. 5613659

1170
Ort
42,90 m²
Fläche
2.0
Zimmer

ECKDATEN
FindMyHome.at // Externe Immobilien-ID5613659 // 62858
ImmobilienartWohnung - Eigentum
Anschrift1170 Wien
Stock1
Fläche42,90 m²
Zimmer2.0
Bad1
WC1
Kaufpreis:€ 249.000,00
Ratenzahlung:Finanzierungsmöglichkeiten für diese Immobilie anzeigen
Provision: 3% des Kaufpreises zzgl. 20% USt.







BESCHREIBUNG

++NEU++ Premium 2-Zimmer ALTBAU-ZWEITBEZUG in fantastischer Lage!

Zum Verkauf gelangt diese ca. 43m² große 2-Zimmer Altbauwohnung  in sehr guter Lage des 17. Wiener Gemeindebezirks.

***ZUR VEREINBARUNG eines BESICHTIGUNGSTERMINS lassen SIE uns BITTE JEDENFALLS eine schriftliche ANFRAGE am besten gleich mit Ihren TERMINWÜNSCHEN zukommen! (wir antworten verlässlich am selben Tag!)***

 

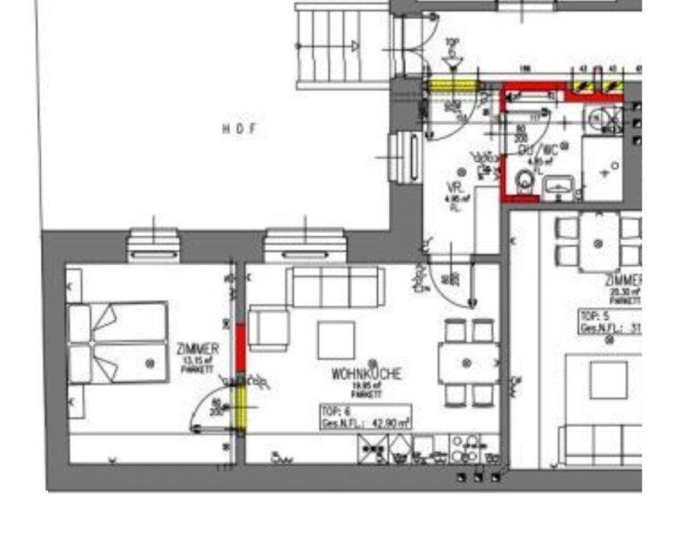
Raumaufteilung:

  • Vorraum
  • Badezimmer mit WC
  • Zimmer
  • Wohnzimmer mit Küche

(siehe Grundrissplan und aktuelle Fotos)

Ausstattung:

Die Wohnung ist hochwertig ausgestattet. In allen Zimmern ist ein wunderschöner Parkettboden verlegt, die Nassräume werden hochwertig verfliest und mit Markenarmaturen ausgestattet.

Zustand:

Die Wohnung ist gepflegt und wird verkauft, wie sie liegt und steht. 

Lage/Infrastruktur: 

Die Wohnung befindet sich am Diepoldplatz und somit in guter Lage des 17. Wiener Gemeindebezirks welcher von seinen Bewohnern vor allem wegen seiner gleichzeitigen Nähe zum Stadtzentrum (Universitäts- und Rathausviertel, Altes und Neues AKH) und zu Naherholungsbieten (Schwarzenbergpark, Schafberg, Kongresspark) geschätzt wird. 

Fußläufig sind in der unmittelbaren Umgebung zahlreiche Geschäfte des täglichen Bedarfs (Lebensmittel, Restaurants, Bekleidungsgeschäfte, Apotheken, Banken) sowie auch diverse Arztpraxen binnen weniger Minuten zu erreichen.


Wenige Gehminuten entfernt befindet sich die Buslinie 10A (Heiligenstadt Niederhofstraße), welche eine schnelle Verbindung zur U3-Station Johnstraße (10 Minuten) sowie zur S-Bahnstation Gersthof (5 Minuten) gewährleistet. Mit der U3 kann in weiterer Folge die Wiener Innenstadt innerhalb von 20 Minuten erreicht werden.


Auch Kindergärten, Schulen und Universitäten sind mit den oben genannten öffentlichen Verkehrsmitteln bestens angebunden.

Weitere öffentliche Verkehrsmittel:

Straßenbahn 9 (Gersthof - Westbahnhof) und 42 (Schottentor - Antonigasse)

Preis:

Der Preis für diese Eigentumswohnung beträgt EUR 249.000.-.

Monatliche Kosten: EUR 166,51

 

 

Sollten Sie Fragen haben oder eine Besichtigung wünschen, zögern Sie bitte nicht mich zu kontaktieren.

Zur Vereinbarung eines Besichtigungstermins lassen Sie uns bitte jedenfalls eine E-Mailanfrage zukommen!

Der IMMY ist die renommierteste Auszeichnung für Wiener Makler- und Verwalterbetriebe im Bereich Wohnimmobilien. Wir sind stolz den goldenen IMMY für das Jahr 2019 gewonnen zu haben!

Vielen Dank vor allem an unsere Kunden! Unser Unternehmen wurde auch zum Besten Start Up und in den Jahren 2015, 2018 und 2019 als Qualitätsmakler ausgezeichnet!

Nicht alle unsere Immobilien finden Sie auf den gängigen Plattformen. Wir freuen uns auf Ihren Besuch auf unserer Homepage unter adonia.at 

Wir weisen ausdrücklich auf unser wirtschaftliches Naheverhältnis mit dem Abgeber/ der Abgeberin hin!  Unsere gesetzlichen Pflichten als Doppelmakler werden dadurch jedoch nicht beeinträchtigt. Irrtum und Änderungen vorbehalten. Irrtum und Änderungen vorbehalten.

Alle hier veröffentlichen Informationen basieren auf den uns von dem Abgeber/ der Abgeberin zur Verfügung gestellten Informationen und wurden nicht selbst erhoben.

Unsere Allgemeinen Geschäftsbedingungen können Sie sowohl in dem Ihnen zugesandten Expose einsehen als auch auf unserer Homepage. Wir weisen ausdrücklich darauf hin, dass diese AGBs Vertragsinhalt werden.

Der Schutz von personenbezogenen Daten ist uns wichtig und auch gesetzlich gefordert. Die Verarbeitung Ihrer personenbezogenen Daten erfolgt nach den datenschutzrechtlichen Bestimmungen. Auf unserer Homepage (unter Datenschutzinformation) finden Sie eine Übersicht die Sie über die wichtigsten Aspekte der Verarbeitung personenbezogener Daten informieren soll.

Wir weisen darauf hin, dass zwischen dem Vermittler und dem zu vermittelnden Dritten ein familiäres oder wirtschaftliches Naheverhältnis besteht.

Der Vermittler ist als Doppelmakler tätig.


Infrastruktur / Entfernungen

Gesundheit
Arzt <500m
Apotheke <500m
Klinik <500m
Krankenhaus <1.500m

Kinder & Schulen
Schule <500m
Kindergarten <500m
Universität <1.500m
Höhere Schule <1.000m

Nahversorgung
Supermarkt <500m
Bäckerei <500m
Einkaufszentrum <1.000m

Sonstige
Geldautomat <500m
Bank <500m
Post <500m
Polizei <500m

Verkehr
Bus <500m
U-Bahn <1.000m
Straßenbahn <500m
Bahnhof <1.000m
Autobahnanschluss <3.500m

Angaben Entfernung Luftlinie / Quelle: OpenStreetMap

Provision: 3% des Kaufpreises zzgl. 20% USt.


Alle Details anzeigen

KONTAKT






 

Lasse dich kostenlos vom Anbieter dieser Immobilie zurückrufen.







 


 
Adonia Realitätenvermittlung GmbH
Luca Schelodetz
Telefonnummer anzeigen Telefon Allgemein: +436649101540
 
Bitte dem Makler die FindMyHome.at - ID bekanntgeben: 5613659

Bewertungen dieses Anbieters
Qualitätsmakler
Qualitätsmakler:
2015, 2018, 2019, 2020, 2023, 2024,
Netiquette
Freundlichkeit

BEWERTUNGEN DIESES ANBIETERS

 
Qualit�tsmakler
Qualitätsmakler
2015, 2018, 2019, 2020, 22/23, 2024
Freundlichkeit
BESONDERS
FREUNDLICH
Netiquette
FINDMYHOME
NETIQUETTE
Auch du kannst bewerten! 7 Tage nach deiner Anfrage erhältst du dafür von uns ein Bewertungsmail.
Alle Infos zu unseren Auszeichnungen und dem FINDMYHOME.AT Qualitätsprogramm findest du hier: Übersicht anzeigen

FINANZIERUNG
?>

Du willst wissen, wie viel dein Umzug kosten wird?

Mach gleich den kostenlosen Preisvergleich und schau, welche seriösen Anbieter in deiner Region günstig deinen Umzug organisieren


ZUM UMZUGS-VERGLEICH
-->

MYHOME BLOG
SuchAgentin auf FindMyHome.at
Unterschiedlichen Rechtsthemen, köstliche Rezepte, neueste Design-Highlights, sowie aktuelle Technik-Tools für Ihr Eigenheim.


FINDMYHOME.AT SUCHAGENTIN
SuchAgentin auf FindMyHome.at
Hallo, soll ich dir ähnliche Immobilien kostenfrei per E-Mail schicken?


ÄHNLICHE IMMOBILIEN
Aehnliche Immobilie - Vorschaubild 1

| ERSTBEZUG NACH SANIERUNG | WÄRMEPUMPE | 2 ZIMMER |... - Objektnr. 5480292

43,36 m² - 2.0 Zimmer
294580 €
PLZ: 1170

Mehr anzeigen

Aehnliche Immobilie - Vorschaubild 2

| ALTHAUS-SANIERUNG | 2 ZIMMER | WÄRMEPPUMPE - Objektnr. 5480296

36,21 m² - 2.0 Zimmer
210000 €
PLZ: 1170

Mehr anzeigen

Aehnliche Immobilie - Vorschaubild 3

Kalvarienberggasse 42 - Objektnr. 5585267


41,84 m² - 1.0 Zimmer
295000 €
PLZ: 1170

Mehr anzeigen

Durch die Nutzung unserer Seite erklären Sie sich mit der Verwendung von Cookies zur Verbesserung Ihres Online-Erlebnisses einverstanden. Detaillierte Informationen zu diesem und weiteren Themen erhalten Sie in unserer Datenschutzerklärung.