MEIN ERGEBNIS ANPASSEN

++NEU++ sanierungsbedürftige 3 Zimmer Altbauwohnung - Umbau-Potenzial - Objektnr. 5613646

1100
Ort
67,51 m²
Fläche
3.0
Zimmer

ECKDATEN
FindMyHome.at // Externe Immobilien-ID5613646 // 62873
ImmobilienartWohnung - Eigentum
AnschriftFavoritenstraße
1100 Wien
Stock3
Fläche67,51 m²
Zimmer3.0
Kaufpreis:€ 208.000,00
Ratenzahlung:Finanzierungsmöglichkeiten für diese Immobilie anzeigen
Provision: 3% des Kaufpreises zzgl. 20% USt.







BESCHREIBUNG

++NEU++ sanierungsbedürftige 3 Zimmer Altbauwohnung - Umbau-Potenzial

Sanierungsbedürftige 3-Zimmer-Altbauwohnung in zentraler Lage des 10. Bezirks

Zum Verkauf steht eine ca. 67 m² große Altbauwohnung mit 3 Zimmern, gelegen im 3. Stock eines charmanten Gebäudes in der Favoritenstraße.


Besichtigung

Zur Vereinbarung eines Besichtigungstermins bitten wir Sie, uns unbedingt eine schriftliche Anfrage zukommen zu lassen. Wir antworten verlässlich am selben Tag!


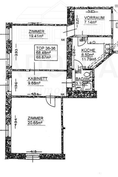
Wohnungsdetails

  • Lage: 3. Stock (ohne Lift; Lifteinbau geplant im Rahmen eines Dachgeschossausbaus)
  • Räumlichkeiten:
    • Vorraum
    • Badezimmer
    • Kabinett
    • 2 Zimmer

(Siehe Fotodokumentation und Grundriss.)

  • Zustand:
    Das Objekt ist sanierungsbedürftig und wird im aktuellen Zustand verkauft. (Details siehe Fotos)

Das Gebäude

Das Objekt befindet sich in einem klassischen Altbau. Ein geplanter Dachgeschossausbau, inklusive Lifteinbau, wird das Haus modernisieren und den Wohnkomfort erhöhen.


Lage

Die Wohnung liegt in einer ruhigen Wohngegend an der Favoritenstraße und zeichnet sich durch ihre zentrale Lage aus.

  • Infrastruktur:

    • Geschäfte des täglichen Bedarfs in unmittelbarer Gehdistanz
    • Allgemein- und Fachmediziner sowie Apotheken fußläufig erreichbar
  • Verkehrsanbindung:

    • U-Bahnlinie U1 (Station Troststraße): nur 2 Minuten zu Fuß entfernt
    • Schnelle Verbindung ins Stadtzentrum und weitere Bezirke

Preis

Preis: 209.000 €

monatliche Kosten: 396,86 €

Reparaturrücklage per 02.02.2026: 58.319,64 €

 

Vertragserrichter: Mag. Georg Kampas (1,5% + Barauslagen + 20% USt)

 

Sollten Sie Fragen haben oder einen Besichtigungstermin wünschen, zögern Sie bitte nicht mich zu kontaktieren. (am besten via E-Mail Anfrage)

Zur Vereinbarung eines Besichtigungstermins lassen Sie uns bitte jedenfalls eine E-Mailanfrage zukommen!

Der IMMY ist die renommierteste Auszeichnung für Wiener Makler- und Verwalterbetriebe im Bereich Wohnimmobilien. Wir sind stolz den goldenen IMMY für das Jahr 2019 gewonnen zu haben!

Vielen Dank vor allem an unsere Kunden! Unser Unternehmen wurde auch zum Besten Start Up und in den Jahren 2015, 2018, 2019 und 2020 als Qualitätsmakler ausgezeichnet!

Bitte achten Sie darauf, dass Sie diese Immobilie, nach Ihrer Anfrage bei Adonia Immobilien, nicht auch bei einem anderen Immobilienmaklerbüro anfragen! Vielen Dank!

Nicht alle unsere Immobilien finden Sie auf den gängigen Plattformen. Wir freuen uns auf Ihren Besuch auf unserer Homepage unter adonia.at 

Wir weisen ausdrücklich auf unser wirtschaftliches Naheverhältnis mit dem Abgeber/ der Abgeberin hin!  Unsere gesetzlichen Pflichten als Doppelmakler werden dadurch jedoch nicht beeinträchtigt. Irrtum und Änderungen vorbehalten. 

Alle hier veröffentlichen Informationen basieren auf den uns von dem Abgeber/ der Abgeberin zur Verfügung gestellten Informationen und wurden nicht selbst erhoben.

Unsere Allgemeinen Geschäftsbedingungen können Sie sowohl in dem Ihnen zugesandten Expose einsehen als auch auf unserer Homepage. Wir weisen ausdrücklich darauf hin, dass diese AGBs Vertragsinhalt werden.

Der Schutz von personenbezogenen Daten ist uns wichtig und auch gesetzlich gefordert. Die Verarbeitung Ihrer personenbezogenen Daten erfolgt nach den datenschutzrechtlichen Bestimmungen. Auf unserer Homepage (unter Datenschutzinformation) finden Sie eine Übersicht die Sie über die wichtigsten Aspekte der Verarbeitung personenbezogener Daten informieren soll.

Wir weisen darauf hin, dass zwischen dem Vermittler und dem zu vermittelnden Dritten ein familiäres oder wirtschaftliches Naheverhältnis besteht.

Der Vermittler ist als Doppelmakler tätig.


Infrastruktur / Entfernungen

Gesundheit
Arzt <250m
Apotheke <250m
Klinik <1.250m
Krankenhaus <2.500m

Kinder & Schulen
Schule <250m
Kindergarten <250m
Universität <500m
Höhere Schule <3.000m

Nahversorgung
Supermarkt <250m
Bäckerei <500m
Einkaufszentrum <1.750m

Sonstige
Geldautomat <250m
Bank <250m
Post <250m
Polizei <500m

Verkehr
Bus <250m
U-Bahn <250m
Straßenbahn <1.000m
Bahnhof <250m
Autobahnanschluss <750m

Angaben Entfernung Luftlinie / Quelle: OpenStreetMap

Objekt ist für eine Wohngemeinschaft geeignet
Provision: 3% des Kaufpreises zzgl. 20% USt.


Alle Details anzeigen

KONTAKT






 

Lasse dich kostenlos vom Anbieter dieser Immobilie zurückrufen.







 


 
Adonia Realitätenvermittlung GmbH
Benjamin Marinkovic
Telefonnummer anzeigen Telefon Allgemein: +436765446834
 
Bitte dem Makler die FindMyHome.at - ID bekanntgeben: 5613646

Bewertungen dieses Anbieters
Qualitätsmakler
Qualitätsmakler:
2015, 2018, 2019, 2020, 2023, 2024,
Netiquette
Freundlichkeit

BEWERTUNGEN DIESES ANBIETERS

 
Qualit�tsmakler
Qualitätsmakler
2015, 2018, 2019, 2020, 22/23, 2024
Freundlichkeit
BESONDERS
FREUNDLICH
Netiquette
FINDMYHOME
NETIQUETTE
Auch du kannst bewerten! 7 Tage nach deiner Anfrage erhältst du dafür von uns ein Bewertungsmail.
Alle Infos zu unseren Auszeichnungen und dem FINDMYHOME.AT Qualitätsprogramm findest du hier: Übersicht anzeigen

FINANZIERUNG
?>

Du willst wissen, wie viel dein Umzug kosten wird?

Mach gleich den kostenlosen Preisvergleich und schau, welche seriösen Anbieter in deiner Region günstig deinen Umzug organisieren


ZUM UMZUGS-VERGLEICH
-->

MYHOME BLOG
SuchAgentin auf FindMyHome.at
Unterschiedlichen Rechtsthemen, köstliche Rezepte, neueste Design-Highlights, sowie aktuelle Technik-Tools für Ihr Eigenheim.


FINDMYHOME.AT SUCHAGENTIN
SuchAgentin auf FindMyHome.at
Hallo, soll ich dir ähnliche Immobilien kostenfrei per E-Mail schicken?


ÄHNLICHE IMMOBILIEN
Aehnliche Immobilie - Vorschaubild 1

++NEU++ Sanierungsbedürftige 2-Zimmer Altbau-Wohnung im Erdg... - Objektnr. 5627349

80,21 m² - 2.0 Zimmer
248900 €
PLZ: 1100

Mehr anzeigen

Aehnliche Immobilie - Vorschaubild 2

Helle 2,5-Zimmer-Wohnung mit Loggia in 1100 Wien - Objektnr. 5501074

63,21 m² - 2.5 Zimmer
225000 €
PLZ: 1100

Mehr anzeigen

Aehnliche Immobilie - Vorschaubild 3

Günstig einsteigen, individuell gestalten - Wohnung mit Pote... - Objektnr. 5589802

57,15 m² - 2.0 Zimmer
169990 €
PLZ: 1100

Mehr anzeigen

Durch die Nutzung unserer Seite erklären Sie sich mit der Verwendung von Cookies zur Verbesserung Ihres Online-Erlebnisses einverstanden. Detaillierte Informationen zu diesem und weiteren Themen erhalten Sie in unserer Datenschutzerklärung.