MEIN ERGEBNIS ANPASSEN

Gebraucht aber gut! 2,5-Zimmer im Altbau mit Balkon und ca. 30 m² Eigengarten. Schnell sein! - Objektnr. 5613106

1030
Ort
72,84 m²
Fläche
2.5
Zimmer

ECKDATEN
FindMyHome.at // Externe Immobilien-ID5613106 // 294387
ImmobilienartEigentum
AnschriftKlopsteinplatz
1030 Wien,Landstraße
Baujahr1900
Befeuerung
Geschosse5
Fläche72,84 m²
Zimmer2.5
Bad1
WC1
Kaufpreis:€ 449.000,00
Ratenzahlung:Finanzierungsmöglichkeiten für diese Immobilie anzeigen
Provision: 3% des KP zzgl. 20% Ust.







BESCHREIBUNG

Gebraucht aber gut! 2,5-Zimmer im Altbau mit Balkon und ca. 30 m² Eigengarten. Schnell sein!

Traumprojekt in der Landstraße - Abheben von der Konkurrenz.....

Heimkommen! Abschalten! Wohlfühlen! Genießen!

Werfen Sie einen Blick auf dieses wunderschöne Gründerzeithaus und Sie werden Augen machen.

In zentraler Lage und unmittelbarer Nähe zur Landstraße Hauptstraße, wird im Zuge des Dachausbaus, demnächst einem Stilaltbau neues Leben eingehaucht. Hierbei wird auf den Erhalt der Altbauelemente viel Wert gelegt. Angefangen von eine neu sanierten Fassade, welche sich stilvoll in das Straßen Ensemble einfügt, über das frisch sanierten Stiegenhaus mit Personenlift, wird aus dieser Immobilie ein wahres Schmuckstücken. 

Lassen Sie sich bereits jetzt schon von diesem großartigen Projekt mit viel Liebe zum Detail überzeugen und vereinbaren Sie noch heute Ihren persönlichen Besichtigungstermin! 

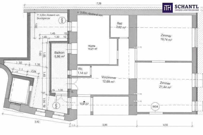
TOP 7 - Ost-Westseitig ausgerichtete 2,5-Zimmer-Wohnung mit Balkon und Eigengarten!

Diese Wohnung beeindruckt mit einem großzügigen Raumangebot. Viel Platz für gemütliche Abende mit Freunden finden Sie in dem über 22 Quadratmeter großen Wohn- Essbereich. Die Küche ist clever in Richtung Innenhof und Eigengarten ausgerichtet. Ein großes Schlafzimmer, ein Badezimmer mit Badewanne, eine separate Toilette und der zentrale Vorraum ergänzen das Raumangebot dieser hübschen Wohnung. Von der Küche aus gelangen Sie auf den, ca. 6 Quadratmeter großen Balkon mit Abgang zum 30 m² großen Eigengarten.

Der Garten inklusive der Einzäunung, sowie der Balkon werden im Zuges des Verkaufs noch vom Verkäufer errichtet.

Wohnfläche: ca. 72,84 m² + Balkon: ca. 5,86 m² + Garten: 29,3 m²  + Kellerabteil

Kaufpreis: EUR 449.000,-

Provision: 3% des KP zzgl. 20% Ust.

 

Bei konkretem Interesse senden wir Ihnen sehr gerne weiterführende Dokumente zu, wie:

o Grundbuchauszug

o Wohnungseigentumsvertrag

o Nutzwertgutachten

o Eigentümerversammlungsprotokoll (Falls vorhanden) etc...

 

Unser Service für Sie: Wenn Sie sich für diese Immobilie entschieden haben, begleiten wir Sie gerne vom Kaufanbot weg inkl. Klärung von Sonderwünschen und der Vertragsunterzeichnung über die Wohnungsübergabe bis hin zu diversen Ummeldungen wie Strom und Gas. Entsprechende Formulare oder auch Meldezettel stellen wir Ihnen sehr gerne zur Verfügung.

Gerne unterstützen wir Sie auch bei der Finanzierung Ihres Traumobjekts und finden mit unseren langjährigen Partnern die besten Konditionen für Sie.

Vereinbaren Sie noch heute einen Termin, wir beraten Sie gerne!

Sie wollen Ihre Immobilie verkaufen Dann sind Sie bei uns goldrichtig! Gerne beraten wir Sie kostenlos bei der Bewertung Ihrer Immobilie und präsentieren Ihnen die dafür entscheidenden Informationen und Unterlagen unverbindlich. 

www.schantl-ith.at

Wir weisen darauf hin, dass zwischen dem Vermittler und dem zu vermittelnden Dritten ein familiäres oder wirtschaftliches Naheverhältnis besteht.

Der Vermittler ist als Doppelmakler tätig.


Infrastruktur / Entfernungen

Gesundheit
Arzt <500m
Apotheke <250m
Klinik <500m
Krankenhaus <250m

Kinder & Schulen
Schule <250m
Kindergarten <250m
Universität <750m
Höhere Schule <750m

Nahversorgung
Supermarkt <250m
Bäckerei <250m
Einkaufszentrum <750m

Sonstige
Geldautomat <250m
Bank <500m
Post <500m
Polizei <500m

Verkehr
Bus <250m
U-Bahn <500m
Straßenbahn <500m
Bahnhof <500m
Autobahnanschluss <1.250m

Angaben Entfernung Luftlinie / Quelle: OpenStreetMap

Kabel/SAT/TV: JA
Provision: 3% des Kaufpreises zzgl. 20% USt.


Alle Details anzeigen

KONTAKT






 

Lasse dich kostenlos vom Anbieter dieser Immobilie zurückrufen.







 


 
Schantl ITH Immobilientreuhand GmbH
Mark Prettenthaler
Telefonnummer anzeigen Telefon Allgemein: +436643070009
Handy Bearbeiter: +436505675611
 
Bitte dem Makler die FindMyHome.at - ID bekanntgeben: 5613106

Bewertungen dieses Anbieters
Qualitätsmakler
Qualitätsmakler:
2015, 2016, 2018, 2019, 2020, 2021, 2023 , 2024, 2025,
Netiquette
Freundlichkeit
80 %

BEWERTUNGEN DIESES ANBIETERS

 
Qualit�tsmakler
Qualitätsmakler
2015, 2016, 2018, 2019, 2020, 2021, 22/23, 2024, 2025
Antwortzeit
ø 48h ANTWORT
Weiterempfehlung
WIRD GERNE

Freundlichkeit
BESONDERS
FREUNDLICH
Netiquette
FINDMYHOME
NETIQUETTE
Auch du kannst bewerten! 7 Tage nach deiner Anfrage erhältst du dafür von uns ein Bewertungsmail.
Alle Infos zu unseren Auszeichnungen und dem FINDMYHOME.AT Qualitätsprogramm findest du hier: Übersicht anzeigen

FINANZIERUNG
?>

Du willst wissen, wie viel dein Umzug kosten wird?

Mach gleich den kostenlosen Preisvergleich und schau, welche seriösen Anbieter in deiner Region günstig deinen Umzug organisieren


ZUM UMZUGS-VERGLEICH
-->

MYHOME BLOG
SuchAgentin auf FindMyHome.at
Unterschiedlichen Rechtsthemen, köstliche Rezepte, neueste Design-Highlights, sowie aktuelle Technik-Tools für Ihr Eigenheim.


FINDMYHOME.AT SUCHAGENTIN
SuchAgentin auf FindMyHome.at
Hallo, soll ich dir ähnliche Immobilien kostenfrei per E-Mail schicken?


ÄHNLICHE IMMOBILIEN
Aehnliche Immobilie - Vorschaubild 1

ERSTBEZUG nach Sanierung | 3 Zimmer + separate Küche | Tages... - Objektnr. 5565371

66,09 m² - 3.0 Zimmer
445000 €
PLZ: 1030

Mehr anzeigen

Aehnliche Immobilie - Vorschaubild 2

Neuer Preis! Ihre beste Entscheidung! Geschmackvoll sanierte... - Objektnr. 5565909

74,15 m² - 3.0 Zimmer
419000 €
PLZ: 1030

Mehr anzeigen

Aehnliche Immobilie - Vorschaubild 3

Der Charme von gestern. Der Komfort von heute! Ideale 2 Zimm... - Objektnr. 5598628

66,39 m² - 2.0 Zimmer
385000 €
PLZ: 1030

Mehr anzeigen

Durch die Nutzung unserer Seite erklären Sie sich mit der Verwendung von Cookies zur Verbesserung Ihres Online-Erlebnisses einverstanden. Detaillierte Informationen zu diesem und weiteren Themen erhalten Sie in unserer Datenschutzerklärung.