MEIN ERGEBNIS ANPASSEN

Penthouse der Extraklasse: 175 m² Wohnfläche, 72 m² Dachterrasse und private Liftfahrt - Objektnr. 5613094


ökologisch beheizt
1050
Ort
174,19 m²
Fläche
4.0
Zimmer
WEITERE MEDIEN

Dokumente


ECKDATEN
FindMyHome.at // Externe Immobilien-ID5613094 // 294403
ImmobilienartEigentum
AnschriftSpengergasse
1050 Wien
Baujahr2025
Befeuerung
Luftwärmepumpe
Stock5
Geschosse6
Fläche174,19 m²
Terrassen4 (130,00 m²)
Zimmer4.0
Bad3
WC3
 Abstellraum
Kaufpreis:€ 1.549.000,00
Ratenzahlung:Finanzierungsmöglichkeiten für diese Immobilie anzeigen
Provision: 3% vom KP zzgl. 20% Ust.







BESCHREIBUNG

Penthouse der Extraklasse: 175 m² Wohnfläche, 72 m² Dachterrasse und private Liftfahrt

Bezugsfertig - Wohnen auf höchster Ebene Mit dem Lift direkt in die Wohnung + Über 72 m² Dachterrasse on Top + Hochwertige Materialien + 3 Bäder + 4 Zimmer

Blickwinkel ändern bekanntlich Perspektiven.

Werfen Sie einen Blick auf diesen wunderschönen Dachausbau und Sie werden Augen machen.

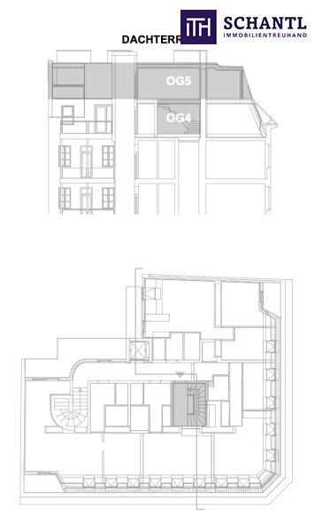
Wenn Sie nach unten schauen, liegt Ihnen die Stadt zu Füßen. Kopf hoch, und der Himmel über Wien ist zum Greifen nah. Genau so und nicht anders präsentiert sich dieses wunderbar angelegte Dachgeschoss mit all seinen Terrassen. In die Wohnung gelangen Sie direkt über den Lift, wir nennen das Ihre persönliche Wohnungsfahrt. Es erwarten Sie zwei Vorräume mit ausreichend Platz für die Garderobe, ein praktischer Abstellraum, drei Schlafzimmer mit jeweils integriertem Badezimmer, ein separates Gäste-WC, sowie der lichtdurchflutete, ca. 74 m² große Wohn-Essbereich, mit Kochgelegenheit und Ausgang zur 37 m² großen Terrasse auf der Wohnebene und Blick in den ruhigen, grünen Innenhof. Von hier aus gelangen Sie auf die magisch schöne Dachterrasse mit ca. 72,5 m² und dem gigantischen Blick über Wien. Auf der Dachterrasse ist alles vorbereitet für Whirlpool, Sauna und Outdoorküche. Speziell der Ausblick ist ein wahrhaftes Privileg und wird Sie rundum begeistern.

Die Wohnung besticht zudem durch ihren professionellen, hochwertigen Ausbau, eine sorgfältige Auswahl der verwendeten Materialien und den klug durchdachten Grundrissen!

Facts: Sicherheitstüre, Luftwärmepumpe, Fußbodenheizung und Kühlung, Klimaanlage, elektrischer Sonnenschutz, Stockbündige Innentüren 220 cm Höhe, Video Gegensprechanlage, LED Deckenspots (Bad und WC), Verstärkung für ein Whirlpool am Dach, Terrassen mit Feinsteinzeug bzw. Holzdielen, Lift bis in die Wohnung, uvm...!

Wohnfläche: ca. 174,19 m² + Terrassen: ca. 48,56 m² + Dachterrasse: ca. 72,44 m² + Kellerabteil

Hier gehts zum virtuellen RundgangRundgang

Kaufpreis: € 1.549.000,-

Jetzt bezugsfertig!

Provision: 3% vom KP zzgl. 20% Ust.

 

Worauf warten Sie noch Vereinbaren Sie noch heute einen Termin, wir beraten Sie gerne!

Bei konkretem Interesse senden wir Ihnen sehr gerne weiterführende Dokumente zu, wie:

o Grundbuchauszug

o Wohnungseigentumsvertrag

o Nutzwertgutachten

o Eigentümerversammlungsprotokoll (Falls vorhanden) etc...

Unser Service für Sie: Wenn Sie sich für diese Immobilie entschieden haben, begleiten wir Sie gerne vom Kaufanbot weg inkl. Klärung von Sonderwünschen und der Vertragsunterzeichnung über die Wohnungsübergabe bis hin zu diversen Ummeldungen wie Strom und Gas. Entsprechende Formulare oder auch Meldezettel stellen wir Ihnen sehr gerne zur Verfügung.

Gerne unterstützen wir Sie auch bei der Finanzierung Ihres Traumobjekts und finden mit unseren langjährigen Partnern die besten Konditionen für Sie.

Vereinbaren Sie noch heute einen Termin, wir beraten Sie gerne!

Sie wollen Ihre Immobilie verkaufen Dann sind Sie bei uns goldrichtig! Gerne beraten wir Sie kostenlos bei der Bewertung Ihrer Immobilie und präsentieren Ihnen die dafür entscheidenden Informationen und Unterlagen unverbindlich.

www.schantl-ith.at

Wir weisen darauf hin, dass zwischen dem Vermittler und dem zu vermittelnden Dritten ein familiäres oder wirtschaftliches Naheverhältnis besteht.

Der Vermittler ist als Doppelmakler tätig.


Infrastruktur / Entfernungen

Gesundheit
Arzt <250m
Apotheke <250m
Klinik <1.000m
Krankenhaus <750m

Kinder & Schulen
Schule <250m
Kindergarten <250m
Universität <500m
Höhere Schule <1.000m

Nahversorgung
Supermarkt <250m
Bäckerei <250m
Einkaufszentrum <1.000m

Sonstige
Geldautomat <250m
Bank <250m
Post <250m
Polizei <500m

Verkehr
Bus <250m
U-Bahn <500m
Straßenbahn <500m
Bahnhof <500m
Autobahnanschluss <3.000m

Angaben Entfernung Luftlinie / Quelle: OpenStreetMap

Klimaanlage: JA
Kabel/SAT/TV: JA
Rollstuhlgerecht: JA
Barrierefrei: JA
Provision: 3% des Kaufpreises zzgl. 20% USt.


Alle Details anzeigen

KONTAKT






 

Lasse dich kostenlos vom Anbieter dieser Immobilie zurückrufen.







 


 
Schantl ITH Immobilientreuhand GmbH
Mark Prettenthaler
Telefonnummer anzeigen Telefon Allgemein: +436643070009
Handy Bearbeiter: +436505675611
 
Bitte dem Makler die FindMyHome.at - ID bekanntgeben: 5613094

Bewertungen dieses Anbieters
Qualitätsmakler
Qualitätsmakler:
2015, 2016, 2018, 2019, 2020, 2021, 2023 , 2024, 2025,
Netiquette
Freundlichkeit
80 %

BEWERTUNGEN DIESES ANBIETERS

 
Qualit�tsmakler
Qualitätsmakler
2015, 2016, 2018, 2019, 2020, 2021, 22/23, 2024, 2025
Antwortzeit
ø 48h ANTWORT
Weiterempfehlung
WIRD GERNE

Freundlichkeit
BESONDERS
FREUNDLICH
Netiquette
FINDMYHOME
NETIQUETTE
Auch du kannst bewerten! 7 Tage nach deiner Anfrage erhältst du dafür von uns ein Bewertungsmail.
Alle Infos zu unseren Auszeichnungen und dem FINDMYHOME.AT Qualitätsprogramm findest du hier: Übersicht anzeigen

FINANZIERUNG
?>

Du willst wissen, wie viel dein Umzug kosten wird?

Mach gleich den kostenlosen Preisvergleich und schau, welche seriösen Anbieter in deiner Region günstig deinen Umzug organisieren


ZUM UMZUGS-VERGLEICH
-->

MYHOME BLOG
SuchAgentin auf FindMyHome.at
Unterschiedlichen Rechtsthemen, köstliche Rezepte, neueste Design-Highlights, sowie aktuelle Technik-Tools für Ihr Eigenheim.


FINDMYHOME.AT SUCHAGENTIN
SuchAgentin auf FindMyHome.at
Hallo, soll ich dir ähnliche Immobilien kostenfrei per E-Mail schicken?


Durch die Nutzung unserer Seite erklären Sie sich mit der Verwendung von Cookies zur Verbesserung Ihres Online-Erlebnisses einverstanden. Detaillierte Informationen zu diesem und weiteren Themen erhalten Sie in unserer Datenschutzerklärung.