MEIN ERGEBNIS ANPASSEN

Was in Wien Preislich nur eine Wohnung ist, ist hier ein Haus - mit Garten, Terrasse und Grünblick! - Objektnr. 5612971

3021
Ort
133,75 m²
Fläche
5.0
Zimmer

ECKDATEN
FindMyHome.at // Externe Immobilien-ID5612971 // 28378
ImmobilienartHaus - Eigentum
Anschrift3021 Pressbaum
Baujahr2025
Geschosse3
Fläche133,75 m²
Grundfläche210,00 m²
Terrassen2 (55,00 m²)
Zimmer5.0
Bad2
WC3
Kaufpreis:€ 550.000,00
Ratenzahlung:Finanzierungsmöglichkeiten für diese Immobilie anzeigen
Provision:







BESCHREIBUNG

Was in Wien Preislich nur eine Wohnung ist, ist hier ein Haus - mit Garten, Terrasse und Grünblick!

Was in Wien preislich nur eine Wohnung ist, ist hier ein Haus mit Garten, Terrasse, Stellplätzen und Grünblick!

Haus statt Wohnung: ca. 130 m² Wohnfläche, großzügige private Freiflächen (Garten, Terrassen, Balkone), 2 KFZStellplätze (inkl. Carport) und freier Grün und Waldblick ab ca. € 540.000,- PROVISIONSFREI!

Fertig & planbar: Das Projekt umfasst vier Einfamilienhäuser, davon ist ein Haus bereits verkauft. Drei Häuser sind aktuell verfügbar. Fenster, Türen und alle Anschlüsse sind vorhanden kein Rohbau, kein Baustellenrisiko.

Massiv & modern: Ziegelmassivbauweise im Neubaustandard, Luftwärmepumpe, Fußbodenheizung mit Kühlfunktion (Bodenkühlung), 3fach verglaste Fenster, 2 KFZStellplätze (inkl. Carport) sowie Vorbereitung für Photovoltaik, EAutoLadestation und elektrische Außenbeschattung.

Familienfreundliche Grünlage: Gewachsene Kleingemeinde mit hoher Sicherheit, Schulen und Kindergärten in der Nähe sowie Wald und Erholungsgebiete direkt vor der Haustür.

PreisLeistung: Gewichteter Durchschnittspreis von ca. 3.2003.600 €/m² deutlich günstiger als vergleichbarer Neubau in Wien, bei mehr Raum und Freifläche.

Öffentliche Anbindung: SBahn in ca. 2 Minuten erreichbar, 1520 Minuten bis Wien Westbahnhof oft schneller im Zentrum als aus vielen Randbezirken.

Ausstattung: Belagsfertig mit zwei klaren Optionen individuelle Umsetzung in Eigenregie oder schlüsselfertig über den Bauträger zum Fixpreis gemäß BAB.

Finanzierung: Auf Wunsch unverbindliche Unterstützung bei der Strukturierung der Finanzierung transparent und entscheidungsorientiert.

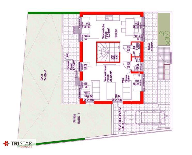
Haus Nr. 1 Südlich ausgerichtetes Einfamilienhaus mit Garten, Terrassen & Carport

Haus statt Wohnung: ca. 133,75 m² Wohnfläche, 5 Zimmer, großzügige private Freiflächen mit Garten, 2 Terrassen und 2 Balkonen sowie Südausrichtung für optimale Besonnung.

Freiflächen gesamt: ca. 157,8 m² (Garten ca. 102,6 m², Terrassen ca. 24,2 m², Balkone ca. 31,0 m²).

Parken: 2 KFZ-Stellplätze, davon 1 Carport und 1 Freistellplatz.

Raumaufteilung (3 Ebenen):

  • Eingangsebene: Vorraum, Badezimmer mit Dusche & WC, zwei Zimmer, Technik-/Waschraum, Abstellfläche, Zugang zu Vorgarten und Stellplätzen.

  • Wohnebene: Offene Wohnküche, Wohnzimmer, separates WC, Abstellraum, Balkon, Terrasse und Garten.

  • Obergeschoß: Zwei Zimmer, Badezimmer, separates WC, zwei Balkone.

Massiv & modern: Ziegelmassivbauweise im Neubaustandard, Luftwärmepumpe, Fußbodenheizung mit Kühlfunktion (Bodenkühlung), 3-fach verglaste Fenster, hochwertige Holz-Alu-Eingangstür.

Zukunftssicher: Vorbereitung für Photovoltaikanlage, EAutoLadestation sowie elektrische Außenbeschattung.

Ausstattung: Übergabe belagsfertig mit zwei klaren Optionen individuelle Umsetzung in Eigenregie oder schlüsselfertige Ausführung über den Bauträger zum Fixpreis gemäß BAB.

Kaufpreis Haus Nr. 1: € 550.000,- provisionsfrei (belagsfertig).

Energiekennzahlen: HWB 39,6 kWh/m²a, fGEE 0,70 (A+), gültig bis 13.06.2035.

Hinweis: Haus Nr. 1 ist Teil eines hochwertigen Neubauprojekts mit insgesamt vier Einfamilienhäusern in Pressbaum. Weitere Häuser werden als eigene Unterobjekte dargestellt.

Wir weisen darauf hin, dass zwischen dem Vermittler und dem zu vermittelnden Dritten ein familiäres oder wirtschaftliches Naheverhältnis besteht.

Provision:


Alle Details anzeigen

KONTAKT






 

Lasse dich kostenlos vom Anbieter dieser Immobilie zurückrufen.







 


 
TRISTAR Immobilien
Nedeljko Bakic
Telefonnummer anzeigen Handy Bearbeiter: +436677988716
 
Bitte dem Makler die FindMyHome.at - ID bekanntgeben: 5612971

Bewertungen dieses Anbieters
Qualitätsmakler
Qualitätsmakler:
2017, 2019, 2020, 2021,
Netiquette
Freundlichkeit

BEWERTUNGEN DIESES ANBIETERS

 
Qualit�tsmakler
Qualitätsmakler
2017, 2019, 2020, 2021
Freundlichkeit
BESONDERS
FREUNDLICH
Netiquette
FINDMYHOME
NETIQUETTE
Auch du kannst bewerten! 7 Tage nach deiner Anfrage erhältst du dafür von uns ein Bewertungsmail.
Alle Infos zu unseren Auszeichnungen und dem FINDMYHOME.AT Qualitätsprogramm findest du hier: Übersicht anzeigen

FINANZIERUNG
?>

Du willst wissen, wie viel dein Umzug kosten wird?

Mach gleich den kostenlosen Preisvergleich und schau, welche seriösen Anbieter in deiner Region günstig deinen Umzug organisieren


ZUM UMZUGS-VERGLEICH
-->

MYHOME BLOG
SuchAgentin auf FindMyHome.at
Unterschiedlichen Rechtsthemen, köstliche Rezepte, neueste Design-Highlights, sowie aktuelle Technik-Tools für Ihr Eigenheim.


FINDMYHOME.AT SUCHAGENTIN
SuchAgentin auf FindMyHome.at
Hallo, soll ich dir ähnliche Immobilien kostenfrei per E-Mail schicken?


ÄHNLICHE IMMOBILIEN
Aehnliche Immobilie - Vorschaubild 1

Attraktives Einfamilienhaus - ruhig, gepflegt und mit großem... - Objektnr. 5521060

120,00 m² - 4.0 Zimmer
590000 €
PLZ: 3021

Mehr anzeigen

Aehnliche Immobilie - Vorschaubild 2

Privatsphäre pur: Einfamilienhaus in uneinsehbarer Lage mit ... - Objektnr. 5561365

108,00 m² - 4.0 Zimmer
590000 €
PLZ: 3021

Mehr anzeigen

Durch die Nutzung unserer Seite erklären Sie sich mit der Verwendung von Cookies zur Verbesserung Ihres Online-Erlebnisses einverstanden. Detaillierte Informationen zu diesem und weiteren Themen erhalten Sie in unserer Datenschutzerklärung.