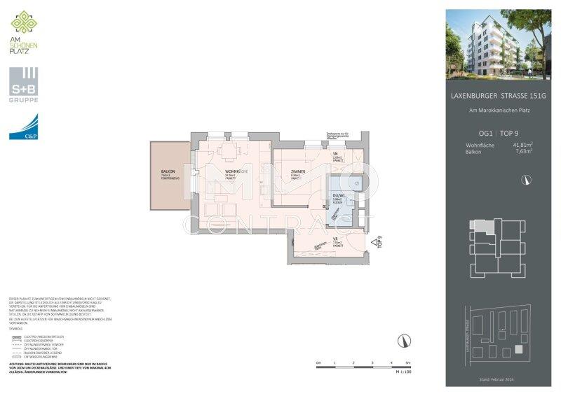
Provisionsfrei und Erstbezug: Luxuriös Wohnen im exklusiven Prachtgarten - Laxenburger Straße - Objektnr. 5612188
WEITERE MEDIEN
ECKDATEN
BESCHREIBUNG
KONTAKT
Lasse dich kostenlos vom Anbieter dieser Immobilie zurückrufen.
IMMOcontract Immobilien Vermittlung GmbH
Tsvetilena Galabinova
Tsvetilena Galabinova
Telefonnummer anzeigen
Telefon Allgemein: +4366460008196
Handy Bearbeiter: +4366460008196
Bitte dem Makler die FindMyHome.at - ID bekanntgeben: 5612188
Handy Bearbeiter: +4366460008196
Bitte dem Makler die FindMyHome.at - ID bekanntgeben: 5612188
BEWERTUNGEN DIESES ANBIETERS
FINDMYHOME.AT
NETIQUETTE
NETIQUETTE
Auch du kannst bewerten! 7 Tage nach deiner Anfrage erhältst du dafür von uns ein Bewertungsmail.
Alle Infos zu unseren Auszeichnungen und dem FINDMYHOME.AT Qualitätsprogramm findest du hier: Übersicht anzeigen
Alle Infos zu unseren Auszeichnungen und dem FINDMYHOME.AT Qualitätsprogramm findest du hier: Übersicht anzeigen
FINANZIERUNG
Du willst wissen, wie viel dein Umzug kosten wird?
Mach gleich den kostenlosen Preisvergleich und schau, welche seriösen Anbieter in deiner Region günstig deinen Umzug organisieren
ZUM UMZUGS-VERGLEICH




























