MEIN ERGEBNIS ANPASSEN

Gepflegtes Landhaus mit Carport, Nebengebäude, Garten und uneinsehbarem Innenhof - Objektnr. 5611847

virtuell besichtigen
3762
Ort
91,00 m²
Fläche
WEITERE MEDIEN

Virtuelle Rundgänge


ECKDATEN
FindMyHome.at // Externe Immobilien-ID5611847 // 960/74421
ImmobilienartHaus - Eigentum
Anschrift3762 Ludweis-Aigen
Baujahr1923
Grundfläche653,00 m²
Terrassen1
Bad1
WC1
Kaufpreis:€ 119.000,00
Ratenzahlung:Finanzierungsmöglichkeiten für diese Immobilie anzeigen
Provision: 3% des Kaufpreises zzgl. 20% USt.







BESCHREIBUNG

Gepflegtes Landhaus mit Carport, Nebengebäude, Garten und uneinsehbarem Innenhof

Herzlich Willkommen in Ihrem eigenen Rückzugsort in der malerischen Ortschaft Blumau an der Wild nahe der Gemeinde Ludweis-Aigen. Betreten Sie das Haus und lassen Sie sich von der schönen Ausrichtung und Raumaufteilung begeistern. Die gut überlegte Aufteilung der einzelnen Räume sowie die diversen Nutzungsmöglichkeiten sind hier voll und ganz gegeben. Aufgrund der kurzen Entfernung zum nächstgelegenen Bahnhof ist diese Liegenschaft auch bestens geeignet für Pendler:innen. 

Machen Sie sich keine Sorgen um lästige Parkplatzsuche, denn Sie haben hier ein eigenes Carport für 2 Kfz-Fahrzeuge zur Verfügung. Sie haben auch alternativ die Möglichkeit Ihre Liegenschaft von der Rückseite zu befahren und dort ebenfalls 2 Kfz-Fahrzeuge im Freien auf Ihrem Grundstück zu parken. Dies erleichtert Ihnen und Ihrer Familie sowie Ihren Freunden die unangenehme Parkplatzsuche.

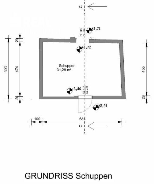
Für Bastler und Handwerker gibt es einen großen Schuppen mit ausreichend Platz um jeglichen Hobbies nachgehen zu können. Egal ob als Werkstatt oder als Lagerraum für Ihre Fahrzeuge. Hier haben Sie ausreichend Platz.

Der uneinsehbare, auf mehreren Ebenen angelegte, Innenhof mit Terrasse bietet den perfekten Ort, um dem stressigen Alltag zu entfliehen und die Seele baumeln zu lassen. Auch Ihre vierbeinige Freunde werden sich hier wohlfühlen, da man noch gern den hinteren Garten nutzen kann. 

Die Liegenschaft teilt sich auf in:

  • Wohnhaus (KG, EG, DG)
  • Carport mit Zusatzgrundstück
  • Vorgarten mit Brunnen
  • Innenhof mit Terrasse
  • Schuppen
  • Garten

Das Kellergeschoss (ca. 34 m²) unterteilt sich in:

  • Eingangsbereich
  • Gewölbekellerraum mit Hauswasserwerk
  • Aufgang zum Erdgeschoss

 

 

 

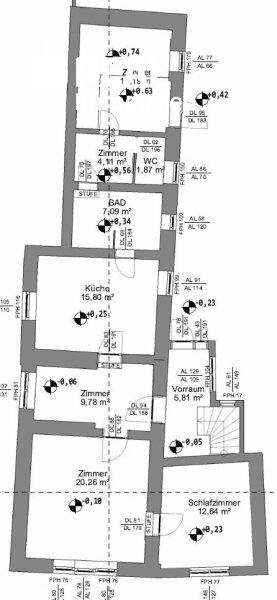
Das Erdgeschoss (ca. 91 m²) unterteilt sich in:

  • Flur mit direktem Ausgang zum Innenhof
  • Esszimmer
  • Wohnzimmer mit Klimagerät
  • Schlafzimmer
  • Küche mit Klimagerät und Holz-Zentralheizung
  • Badezimmer mit Badewanne und Waschmaschinenanschluss
  • Durchgangszimmer
  • WC mit Fenster
  • Büro mit Dachbodentreppe und direktem Ausgang zum Innenhof
  • Abgang zum Kellergeschoss

Das Dachgeschoss besteht aus einem Dachbodenraum.

Der Schuppen besteht aus einem ca. 31 m² großen Schuppenraum als Werkstatt oder Lagerraum.

Letzte Sanierungen:

  • 2009: Einbau Kunststofffenster
  • 2009: Einbau neue Eingangstür
  • 2009: Erneuerung der Fassade
  • 2012: Einbau von zwei Klimageräten
  • 2020: Einbau 3x Solarpaneele am Dach
  • 2020: Einbau ca. 200 L Warmwasserspeicher im DG um Platz zu sparen

Vorteile für Kaufinteressent:innen:

  • Parkmöglichkeit Ihrer KFZ Fahrzeuge im eigenen Carport
  • Individuell nutzbarer Schuppen für Ihre Hobbys
  • Terrasse zur Entspannung im eigenen Innenhof
  • Gartengrundstück für Ihre Vierbeiner
  • Zufahrtsmöglichkeit zur Liegenschaft auch auf der Rückseite beim Garten
  • Kurze Entfernung zum nächstgelegenen Bahnhof für Pendler

Zusatzinformationen für Kaufinteressent:innen:

  • Die ehemaligen zwei Senkgruben wurden zugeschüttet und sind inaktiv. 
  • Ein A1 Container (wurde vereinbart) befindet sich auf dem Grundstück beim Carport.
  • Der zweite Brunnen auf dem Grundstück beim Carport ist inaktiv.
  • Aufgrund des Baujahres um 1923 existiert eine altersbedingte Grundfeuchte. 

 

Gebäudeinfrastruktur:

Die Beheizung der Liegenschaft erfolgt über eine Holz-Zentralheizung. Sie haben zusätzlich im Winter die Möglichkeit mit den beiden verbauten Klimageräten die Liegenschaft auch zusätzlich zu beheizen. Des Weiteren können Sie mit diesen beiden Klimageräten auch im Sommer für eine wohlige Atmosphäre sorgen. Die Warmwasseraufbereitung erfolgt ebenfalls über die Zentralheizung und zusätzlich wurden drei Solarpaneele auf dem Dach angebracht. Die Liegenschaft ist an das öffentliche Kanalnetz angeschlossen. Die Wasserversorgung erfolgt über einen eigenen Hausbrunnen im Vorgarten. Das Glasfasernetz wurde bereits in das Haus eingeleitet. 

Überzeugt Dann zögern Sie nicht und vereinbaren Sie noch heute einen Besichtigungstermin. 

Besichtigungen des Objekts können nach vorheriger Terminabsprache von Montag bis Freitag stattfinden.
(keine Besichtigungen an Feiertagen und Wochenenden) 

Hier geht´s zum 360° Rundgang: https://app.immoviewer.com/portal/tour/3139999accessKey=699a

Viele weitere Rundgänge sowie alle neuen s REAL Immobilienangebote finden Sie auf www.sreal.at.

Alle Angaben sind ohne Gewähr und basieren ausschließlich auf Informationen, welche uns von den Eigentümern zur Verfügung gestellt wurden.

Kauf und Finanzierung aus einer Hand - nutzen Sie die Synergien der Erste Bank & Sparkassen-Unternehmensgruppe. Gerne arrangieren wir für Sie ein unverbindliches Finanzierungsgespräch mit den Finanzierungsspezialisten der Erste Bank & Sparkasse.


Infrastruktur / Entfernungen

Gesundheit
Arzt <3.500m
Apotheke <5.000m

Kinder & Schulen
Schule <5.000m
Kindergarten <5.000m

Nahversorgung
Supermarkt <4.500m
Bäckerei <5.000m

Sonstige
Bank <5.000m
Polizei <5.000m
Post <5.500m
Geldautomat <5.000m

Verkehr
Bus <500m
Bahnhof <5.500m

Angaben Entfernung Luftlinie / Quelle: OpenStreetMap

Klimaanlage: JA
Gartennutzung: JA
Kabel/SAT/TV: JA
Provision: 3% des Kaufpreises zzgl. 20% USt.


Alle Details anzeigen

KONTAKT






 

Lasse dich kostenlos vom Anbieter dieser Immobilie zurückrufen.







 


 
s REAL Immobilienvermittlung GmbH
Heiko Mlejnek
Telefonnummer anzeigen Telefon Allgemein: +435010026234
Handy Bearbeiter: +4366478040849
 
Bitte dem Makler die FindMyHome.at - ID bekanntgeben: 5611847

Bewertungen dieses Anbieters
Qualitätsmakler
Qualitätsmakler:
2015, 2016, 2017, 2018, 2019, 2020, 2021 , 2025,
Netiquette
Freundlichkeit
80 %

BEWERTUNGEN DIESES ANBIETERS

 
Qualit�tsmakler
Qualitätsmakler
2015, 2016, 2017, 2018, 2019, 2020, 2021 2025
Weiterempfehlung
WIRD GERNE

Freundlichkeit
BESONDERS
FREUNDLICH
Netiquette
FINDMYHOME
NETIQUETTE
Auch du kannst bewerten! 7 Tage nach deiner Anfrage erhältst du dafür von uns ein Bewertungsmail.
Alle Infos zu unseren Auszeichnungen und dem FINDMYHOME.AT Qualitätsprogramm findest du hier: Übersicht anzeigen

FINANZIERUNG
?>

Du willst wissen, wie viel dein Umzug kosten wird?

Mach gleich den kostenlosen Preisvergleich und schau, welche seriösen Anbieter in deiner Region günstig deinen Umzug organisieren


ZUM UMZUGS-VERGLEICH
-->

MYHOME BLOG
SuchAgentin auf FindMyHome.at
Unterschiedlichen Rechtsthemen, köstliche Rezepte, neueste Design-Highlights, sowie aktuelle Technik-Tools für Ihr Eigenheim.


FINDMYHOME.AT SUCHAGENTIN
SuchAgentin auf FindMyHome.at
Hallo, soll ich dir ähnliche Immobilien kostenfrei per E-Mail schicken?


Durch die Nutzung unserer Seite erklären Sie sich mit der Verwendung von Cookies zur Verbesserung Ihres Online-Erlebnisses einverstanden. Detaillierte Informationen zu diesem und weiteren Themen erhalten Sie in unserer Datenschutzerklärung.