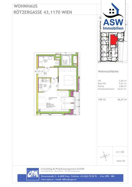
Wunderschöne 2-Zimmer Neubauwohnung Nähe Hernalser Hauptstraße - Objektnr. 5611740
ECKDATEN
BESCHREIBUNG
KONTAKT
Lasse dich kostenlos vom Anbieter dieser Immobilie zurückrufen.
ASW Immobilien Service & Consulting GmbH
ASW Immobilien Service & Consulting GmbH Firmensitz Wien
ASW Immobilien Service & Consulting GmbH Firmensitz Wien
Telefonnummer anzeigen
Telefon Allgemein: +43732272802100
Bitte dem Makler die FindMyHome.at - ID bekanntgeben: 5611740
Bitte dem Makler die FindMyHome.at - ID bekanntgeben: 5611740
BEWERTUNGEN DIESES ANBIETERS
Qualitätsmakler
2017, 2018, 2020, 22/23
2017, 2018, 2020, 22/23
BESONDERS
FREUNDLICH
FREUNDLICH
FINDMYHOME.AT
NETIQUETTE
NETIQUETTE
Auch du kannst bewerten! 7 Tage nach deiner Anfrage erhältst du dafür von uns ein Bewertungsmail.
Alle Infos zu unseren Auszeichnungen und dem FINDMYHOME.AT Qualitätsprogramm findest du hier: Übersicht anzeigen
Alle Infos zu unseren Auszeichnungen und dem FINDMYHOME.AT Qualitätsprogramm findest du hier: Übersicht anzeigen
Du willst wissen, wie viel dein Umzug kosten wird?
Mach gleich den kostenlosen Preisvergleich und schau, welche seriösen Anbieter in deiner Region günstig deinen Umzug organisieren
ZUM UMZUGS-VERGLEICH















