MEIN ERGEBNIS ANPASSEN

NEU! Photovoltaikanlage Bezugsfertig 19 Eigentumswohnungen Schlüsselfertig Urban + Natur 1220 Wien Balkon / Terrasse / Loggia / Garten 2-4 Zimmer - Objektnr. 5611693


ökologisch beheizt
1220
Ort
43,60 m²
Fläche
2.0
Zimmer

ECKDATEN
FindMyHome.at // Externe Immobilien-ID5611693 // 28370
ImmobilienartEigentum
Anschrift/7E
1220 Wien
Baujahr2025
Befeuerung
Luftwärmepumpe
Stock1
Geschosse5
Fläche43,60 m²
Zimmer2.0
Bad1
WC1
Kaufpreis:€ 215.000,00
Ratenzahlung:Finanzierungsmöglichkeiten für diese Immobilie anzeigen
Provision: 3% des Kaufpreises zzgl. 20% USt.







BESCHREIBUNG

NEU! Photovoltaikanlage Bezugsfertig 19 Eigentumswohnungen Schlüsselfertig Urban + Natur 1220 Wien Balkon / Terrasse / Loggia / Garten 2-4 Zimmer

  • PROJEKT:

Zum Verkauf gelangen 19 hochmoderne Neubau-Eigentumswohnungen mit ca. 24 Zimmern sowie großzügigen Außenflächen (Loggia / Balkon / Terrasse / Garten).

  • STATE-OF-THE-ART-TECHNIK:

Ausstattung: Photovoltaikanlage, Klimaanlage in den Dachgeschossen (Ebene 1 und 2), Luftwärmepumpe, Fußbodenheizung, Echtholz-Parkettboden (Eiche), dreifach verglaste Fenster mit Außenbeschattung, Ziegel-Massivbauweise, Lift, Keller, hochwertige Materialien sowie ein stilvolles, modernes und zeitloses Design.

  • BEZUGSTERMIN:

Februar - März 2026!

  • GRUNDBUCH STATT SPARBUCH:

Diese Top-Neubauwohnungen stellen eine hervorragende Gelegenheit dar sowohl für Eigennutzer als auch für Kapitalanleger.

Mit ihren universellen Wohnungsgrößen (24 Zimmer), der hochwertigen Ausstattung und der ausgezeichneten Lage eignen sie sich ideal für alle, die in stabile Immobilienwerte investieren möchten  Grundbuch statt Sparbuch  und damit inflationsgeschützte finanzielle Sicherheit sowie langfristige Unabhängigkeit aufbauen wollen.

Wie man treffend sagt: Jeder zahlt im Laufe seines Lebens ein bis zwei Immobilien. Die einzige Frage ist: Wem sollen sie am Ende gehören

  • VERFÜGBARE WOHNUNGEN:

__________

GARTENWOHNUNGEN:

  • Top 1: VERKAUFT
  • Top 2: VERKAUFT

__________

Top 3: WNFL ca. 89,04 m² (4 Zimmer) + Terrasse ca. 7,07 m² + GARTEN ca. 42,51 m² + ER (Keller) ca. 2 m²

  • Kaufpreis Eigennutzer: EUR 489.000  I  Kaufpreis Anleger: 461.000 zzgl. 20% USt.

__________

1. STOCK:

  • Top 4: VERKAUFT
  • Top 5: VERKAUFT
  • Top 6: VERKAUFT
  •  
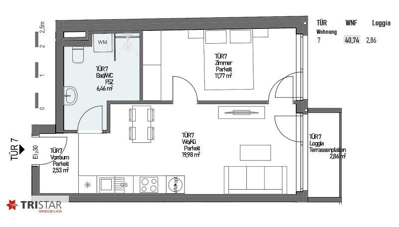
  • Top 7: WNFL ca. 41 m² (2 Zimmer) + Loggia ca. 3 m² + ER (Keller) ca. 2 m² - Reserviert

Kaufpreis Eigennutzer: EUR 215.000  I  Kaufpreis Anleger: 206.000 zzgl. 20% USt.

__________

  • Top 8: VERKAUFT

__________

2. STOCK:

__________

Top 9:  WNFL ca. 43 m² (2 Zimmer) + LOGGIA ca. 3 m² + ER (Keller) ca. 2 m²

  • Kaufpreis Eigennutzer: EUR 229.000  I  Kaufpreis Anleger: 219.000 zzgl. 20% USt.

  •  

Top 10:  WNFL ca. 55,43 m² (3 Zimmer) + Terrasse ca. 9,40 m² + ER (Keller) ca. 2 m²

  • Kaufpreis Eigennutzer: EUR 339.000  I  Kaufpreis Anleger: 326.000 zzgl. 20% USt.

  •  

  • Top 11: VERKAUFT
  • Top 12: VERKAUFT
  • Top 13: VERKAUFT

__________

DACHGESCHOSS 1:

__________

  • Top 14: VERKAUFT
  •  

Top 15:  WNFL ca. 45,48 m² (2 Zimmer) + Terrasse/ Balkon ca.16,22 m² + ER (Keller) ca. 2,09 m²

  • Kaufpreis Eigennutzer: EUR 279.000  I  Kaufpreis Anleger: 266.000 zzgl. 20% USt.

__________

TOP 16: WNFL ca. 45,30 m² (3 Zimmer) + Terrasse/ Balkon ca. 16,33 m² + ER (Keller) ca. 2 m²

  • Kaufpreis Eigennutzer: EUR 279.000  I  Kaufpreis Anleger: 266.000 zzgl. 20% USt.

__________

Top 17:  WNFL ca. 66,44 m² (3 Zimmer) + Terrasse ca.6 m² + ER (Keller) ca. 2 m²        

  • Kaufpreis Eigennutzer: EUR 369.000  I  Kaufpreis Anleger: 354.000 zzgl. 20% USt.    

__________

DACHGESCHOSS 2:

__________

TOP 18:  WNFL ca. 57 m² (2 Zimmer + AR) + 4 Terrassen insg. ca. 24 m² + ER (Keller) ca. 3,07 m²

  • Kaufpreis Eigennutzer: EUR 349.000  I  Kaufpreis Anleger: 332.000 zzgl. 20% USt.
  •  
  • Top 19:  VERKAUFT

__________

  • KEIN BAURECHT, KEINE PACHT:

Sie erwerben hier IHR EIGENHEIM und EIGENTUMSGRUND

  • INDIVIDUELL ANGEPASSTE FINANZIERUNG:

Unsere ausgewählten und erfahrenen Finanzierungspartner unterstützen Sie gerne bei der Entwicklung einer optimal auf Ihre Bedürfnisse abgestimmten Finanzierungslösung.

Top-Finanzierungskonzepte sowohl für Eigennutzer als auch für Anleger stehen bereit und warten auf Ihre Anfrage. Weitere Informationen erhalten Sie beim Besichtigungstermin!

  • LAGE:

Diverse Einkaufsmöglichkeiten für den täglichen Lebensbedarf sowie öffentliche Verkehrsmittel sind in Gehweite vorhanden.

Ein detailliertes Lageexposé (65 Seiten) ist vorhanden und wird umgehend nach Anfrage übermittelt!

  • VERMITTLUNGSPROVISION / DOPPELMAKLERTÄTIGKEIT:

Der Ordnung halber wird darauf hingewiesen, dass die Vermittlungsprovision 3 % des Kaufpreises zuzüglich 20 % USt. (insgesamt 3,6 %) beträgt und mit Zustandekommen des vermittelten Rechtsgeschäfts (Annahme des Kaufanbots ohne aufschiebende Bedingungen durch den Verkäufer) fällig wird. Der Makler ist als Doppelmakler tätig.

  • NEU! Photovoltaikanlage Bezugsfertig 19 Eigentumswohnungen Schlüsselfertig Urban + Natur 1220 Wien Balkon / Terrasse / Loggia / Garten 24 Zimmer

Wir weisen darauf hin, dass zwischen dem Vermittler und dem zu vermittelnden Dritten ein familiäres oder wirtschaftliches Naheverhältnis besteht.

Der Vermittler ist als Doppelmakler tätig.

Gartennutzung: JA
Provision: 3% des Kaufpreises zzgl. 20% USt.


Alle Details anzeigen

KONTAKT






 

Lasse dich kostenlos vom Anbieter dieser Immobilie zurückrufen.







 


 
TRISTAR Immobilien
TRISTAR Immobilien
Telefonnummer anzeigen Handy Bearbeiter: +436769017374
 
Bitte dem Makler die FindMyHome.at - ID bekanntgeben: 5611693

Bewertungen dieses Anbieters
Qualitätsmakler
Qualitätsmakler:
2017, 2019, 2020, 2021,
Netiquette
Freundlichkeit

BEWERTUNGEN DIESES ANBIETERS

 
Qualit�tsmakler
Qualitätsmakler
2017, 2019, 2020, 2021
Freundlichkeit
BESONDERS
FREUNDLICH
Netiquette
FINDMYHOME
NETIQUETTE
Auch du kannst bewerten! 7 Tage nach deiner Anfrage erhältst du dafür von uns ein Bewertungsmail.
Alle Infos zu unseren Auszeichnungen und dem FINDMYHOME.AT Qualitätsprogramm findest du hier: Übersicht anzeigen

FINANZIERUNG
?>

Du willst wissen, wie viel dein Umzug kosten wird?

Mach gleich den kostenlosen Preisvergleich und schau, welche seriösen Anbieter in deiner Region günstig deinen Umzug organisieren


ZUM UMZUGS-VERGLEICH
-->

MYHOME BLOG
SuchAgentin auf FindMyHome.at
Unterschiedlichen Rechtsthemen, köstliche Rezepte, neueste Design-Highlights, sowie aktuelle Technik-Tools für Ihr Eigenheim.


FINDMYHOME.AT SUCHAGENTIN
SuchAgentin auf FindMyHome.at
Hallo, soll ich dir ähnliche Immobilien kostenfrei per E-Mail schicken?


ÄHNLICHE IMMOBILIEN
Aehnliche Immobilie - Vorschaubild 1

Licht. Luft. Neubau. Terrasse. Zuhause.! Die perfekte Anlage... - Objektnr. 5602601

43,64 m² - 2.0 Zimmer
256036 €
PLZ: 1220

Mehr anzeigen

Aehnliche Immobilie - Vorschaubild 2

Kleine Wohnung - Große Wirkung! WOW - Gartenwohnung mit groß... - Objektnr. 5598603

39,07 m² - 2.0 Zimmer
235690 €
PLZ: 1220

Mehr anzeigen

Aehnliche Immobilie - Vorschaubild 3

NEU! Photovoltaikanlage Bezugsfertig 19 Eigentumswohnungen... - Objektnr. 5611694

43,60 m² - 2.0 Zimmer
206000 €
PLZ: 1220

Mehr anzeigen

Durch die Nutzung unserer Seite erklären Sie sich mit der Verwendung von Cookies zur Verbesserung Ihres Online-Erlebnisses einverstanden. Detaillierte Informationen zu diesem und weiteren Themen erhalten Sie in unserer Datenschutzerklärung.