EsslingLiving -DACHGESCHOSSWOHNUNG - WESTSEITIG - BALKON - in Ruhelage - Objektnr. 5611690
ECKDATEN
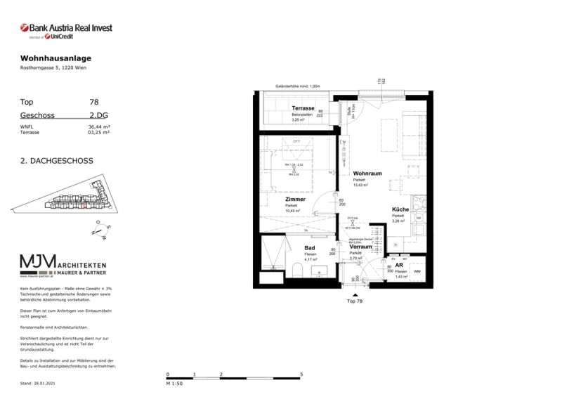
BESCHREIBUNG
KONTAKT
Lasse dich kostenlos vom Anbieter dieser Immobilie zurückrufen.
OPTIN Immobilien GmbH
Nadine Jeitschko
Nadine Jeitschko
Telefonnummer anzeigen
Telefon Allgemein: +43676847772207
Handy Bearbeiter: +43676847772207
Bitte dem Makler die FindMyHome.at - ID bekanntgeben: 5611690
Handy Bearbeiter: +43676847772207
Bitte dem Makler die FindMyHome.at - ID bekanntgeben: 5611690
BEWERTUNGEN DIESES ANBIETERS
Qualitätsmakler
2020, 22/23, 2025
2020, 22/23, 2025
BESONDERS
FREUNDLICH
FREUNDLICH
FINDMYHOME.AT
NETIQUETTE
NETIQUETTE
Auch du kannst bewerten! 7 Tage nach deiner Anfrage erhältst du dafür von uns ein Bewertungsmail.
Alle Infos zu unseren Auszeichnungen und dem FINDMYHOME.AT Qualitätsprogramm findest du hier: Übersicht anzeigen
Alle Infos zu unseren Auszeichnungen und dem FINDMYHOME.AT Qualitätsprogramm findest du hier: Übersicht anzeigen
Du willst wissen, wie viel dein Umzug kosten wird?
Mach gleich den kostenlosen Preisvergleich und schau, welche seriösen Anbieter in deiner Region günstig deinen Umzug organisieren
ZUM UMZUGS-VERGLEICH


















