++ Charmante 4 Zimmer Eigentumswohnung mit 1 Tiefgaragenplatz in der Solarcity in Linz/Pichling ++ - Objektnr. 5611596
ECKDATEN
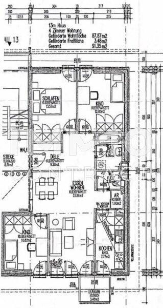
BESCHREIBUNG
KONTAKT
Lasse dich kostenlos vom Anbieter dieser Immobilie zurückrufen.
IMMOcontract Immobilien Vermittlung GmbH
Klaus Egger
Klaus Egger
Telefonnummer anzeigen
Telefon Allgemein: +4350450
Handy Bearbeiter: +43676841420424
Bitte dem Makler die FindMyHome.at - ID bekanntgeben: 5611596
Handy Bearbeiter: +43676841420424
Bitte dem Makler die FindMyHome.at - ID bekanntgeben: 5611596
BEWERTUNGEN DIESES ANBIETERS
FINDMYHOME.AT
NETIQUETTE
NETIQUETTE
Auch du kannst bewerten! 7 Tage nach deiner Anfrage erhältst du dafür von uns ein Bewertungsmail.
Alle Infos zu unseren Auszeichnungen und dem FINDMYHOME.AT Qualitätsprogramm findest du hier: Übersicht anzeigen
Alle Infos zu unseren Auszeichnungen und dem FINDMYHOME.AT Qualitätsprogramm findest du hier: Übersicht anzeigen
FINANZIERUNG
Du willst wissen, wie viel dein Umzug kosten wird?
Mach gleich den kostenlosen Preisvergleich und schau, welche seriösen Anbieter in deiner Region günstig deinen Umzug organisieren
ZUM UMZUGS-VERGLEICH





















