MEIN ERGEBNIS ANPASSEN

Rooftop-Wohnung über den Dächern des Siebten | 1 Min. zur Mariahilferstr. | 40m² 360°-Terrasse | Virtual Tour - Objektnr. 5611046

virtuell besichtigen
1070
Ort
148,35 m²
Fläche
4.0
Zimmer
WEITERE MEDIEN

Virtuelle Rundgänge


ECKDATEN
FindMyHome.at // Externe Immobilien-ID5611046 // 56488
ImmobilienartWohnung - Eigentum
Anschrift1070 Wien
Baujahr2008
Befeuerung
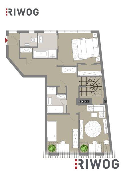
Fläche148,35 m²
Terrassen2 (40,00 m²)
Zimmer4.0
Bad2
WC3
 Abstellraum
Kaufpreis:€ 1.995.000,00
Ratenzahlung:Finanzierungsmöglichkeiten für diese Immobilie anzeigen
Provision:







BESCHREIBUNG

Rooftop-Wohnung über den Dächern des Siebten | 1 Min. zur Mariahilferstr. | 40m² 360°-Terrasse | Virtual Tour

In einer der wohl vielfältigsten und begehrtesten Wohngegenden der Stadt, unmittelbar nebst der Einkaufsmeile Mariahilferstr. befindet sich dieses außergewöhnliche und ausgeklügelte Dachgeschoßobjekt. 

Das Jahrhundertwendehauses befindet sich in bestem Zustand, mit dem Lift gelangt man ins ausgebaute Dachgeschoß. Durch smarte Platzierung der Fenster gelangt in jeden Winkel der Wohnung viel Tageslicht, die Dachterrasse mit spektakulären Fernblick über die gesamte Stadt sowie die Terrasse auf der Wohnebene eignen sich nicht nur zum Sonnenbaden sondern auch als Ruheoase und Rückzugsort.

Zur anspruchsvollen Location im Trendbezirk Neubau passt auch die hochwertige Ausstattung der Wohnungen. Großformatiger Echtholzparkett, Klimageräte und Fußbodenheizung lassen keine Wünsche offen.

Als einer der besten Lagen Wiens darf natürlich auch die hervorragende Verkehrsanbindung nicht fehlen - U6 sowie U3 in 2 Gehminuten erreichbar, Straßenbahn sowie Buse quasi vor der Haustüre. Wer doch lieber durch das hippe Viertel schländern möchte, ist in 1 Gehminute auf der Mariahilferstr., Wiens bekanntester Einkaufsstraße mit seinen zahlreichen Shops, Restaurants und Freizeitaktivitäten.

HIER GEHTS ZUR VIRTUAL TOUR (Text anklicken)

 

HIGHLIGHTS

  • Traumhafte Weitblicke von den ca. 40m² 360°-Terrasse
  • Mariahilferstr. und Westbahnhof in Gehweite
  • Tolle Architektur für besonders viel Licht in Wohnräumen
  • Parkettböden - Großformatiges Echtholz
  • Fußbodenheizung und Klimageräte
  • Durchdachte Grundrisse und optimierte Raumaufteilung

INFOS ZUR WOHNUNG

  • STOCKWERK: DG mit Lift
  • BEZIEHBAR: nach Absprache
  • WOHNFLÄCHE: Ca. 148,35 m²
  • 1 x DACHTERRASSE: Ca. 40,00 m² 
  • 1 x TERRASSE WOHNEBENE: Ca. 12,87m²
  • ZIMMER: 4
  • MÖBLIERT: Bad ist möbliert
  • WASCHMASCHINENANSCHLUSS: Ja
  • LIFT: Ja
  • TV/INTERNET: z.B. MAGENTA / A1
  • 2 x BADEZIMMER: Badewanne, Dusche, Waschbecken, Handtuchheizung, WC
  • 3 x WC: 1 x Separat mit Handwaschbecken, 2 x im Bad
  • HEIZUNG: Gasetagenheizung - Fußbodenheizung
  • KÜHLUNG: Klimagerät
  • KELLERABTEIL: Ja 
  • 2 x ABSTELLRAUM: Ja
  • KINDERWAGEN & FAHRRADABSTELLRAUM: Ja
  • RÜCKLAGEN: ca. 158.125,82€ (Stand 31.10.2024)
  • AUSSTATTUNG: Zwei Bäder vollausgestattet (Wanne, Dusche, WC), Steckdose und Wasseranschluss auf Freiflächen, Gegensprechanlage mit Türöffner, 3-Scheiben-Isolierverglasung,  elektronischer Sonnenschutz 
  • VERKEHRSANBINDUNG: U-Bahn-Station U3/U6 & Bim 5, 6, 9, 18, 49 Westbahnhof nur 1 Min. entfernt. In nur 7 Minuten erreicht man den 1. Bezirk
  • INFRASTRUKTUR: Mariahilferstr. & Burggasse mit zahlreichen Geschäften des täglichen Lebens sowie Restaurants, Bars, Cafés, Apotheken, Schulen und Kindergärten, Arztpraxen und Freizeitangeboten befinden sich in unmittelbarer Nähe.
  • UMGEBUNG & LAGE: Die Kaiserstr. liegt eingebettet zwischen Burggasse und Mariahilferstr. im Trendbezirk Neubau, ist umgeben von Wiener Highlights wie dem Naschmarkt, Museumsquartier, dem Haus des Meeres und ist nur wenige Minuten von der Wiener Innenstadt entfernt
  • HWB: 
  • KLASSE:

KOSTEN:

  • KAUFPREIS: 1.995.000,00 €
  • BETRIEBSKOSTEN INKL. LIFT: Werden noch bekannt gegeben

NEBENKOSTEN WELCHE VOM KÄUFER ZU TRAGEN SIND

  • PROVISION: 3% d. Kaufpreises zzgl. 20% USt
  • KOSTEN DER ERSTELLUNG DES KAUFVERTRAGS 

Haben Sie weitere Fragen oder wünschen eine Besichtigung - Gleich Kontakt aufnehmen!

In Entsprechung des FAGG (Fern- und Auswärtsgeschäfte-Gesetz) und des VRUG (Verbraucherrechte-Richtlinie-Umsetzungsgesetz) ist es uns leider nur mehr möglich Termine nach Erhalt einer schriftlichen Anfrage mit vollständigen Kontaktangaben (Kontaktformular) zu vereinbaren, dies gilt ebenso für die Herausgabe relevanter Informationen wie z.B. der Lage. Sehr gerne sind wir auf diesem Wege bereit, uns um sämtliche Anliegen rasch und kompetent zu kümmern. Für Pläne und Angaben im Inserat übernehmen wir ausdrücklich keine Haftung. Bilder wurden nachbearbeitet und dienen zur allgemeinen Veranschaulichung.

Der Vermittler ist als Doppelmakler tätig.


Infrastruktur / Entfernungen

Gesundheit
Arzt <500m
Apotheke <500m
Klinik <500m
Krankenhaus <1.000m

Kinder & Schulen
Schule <500m
Kindergarten <500m
Universität <500m
Höhere Schule <1.000m

Nahversorgung
Supermarkt <500m
Bäckerei <500m
Einkaufszentrum <1.000m

Sonstige
Geldautomat <500m
Bank <500m
Post <500m
Polizei <500m

Verkehr
Bus <500m
U-Bahn <500m
Straßenbahn <500m
Bahnhof <500m
Autobahnanschluss <5.000m

Angaben Entfernung Luftlinie / Quelle: OpenStreetMap

Objekt ist für eine Wohngemeinschaft geeignet
Klimaanlage: JA
Provision:


Alle Details anzeigen

KONTAKT






 

Lasse dich kostenlos vom Anbieter dieser Immobilie zurückrufen.







 


 
RIWOG Real Estate Management GmbH
Ike Richson, BSc (WU)
Telefonnummer anzeigen Handy Bearbeiter: +4369917179273
 
Bitte dem Makler die FindMyHome.at - ID bekanntgeben: 5611046

Bewertungen dieses Anbieters
Qualitätsmakler
Qualitätsmakler:
2015, 2016, 2017, 2018, 2019, 2021, 2023 ,
Netiquette
Freundlichkeit

BEWERTUNGEN DIESES ANBIETERS

 
Qualit�tsmakler
Qualitätsmakler
2015, 2016, 2017, 2018, 2019, 2021, 22/23
Freundlichkeit
BESONDERS
FREUNDLICH
Netiquette
FINDMYHOME
NETIQUETTE
Auch du kannst bewerten! 7 Tage nach deiner Anfrage erhältst du dafür von uns ein Bewertungsmail.
Alle Infos zu unseren Auszeichnungen und dem FINDMYHOME.AT Qualitätsprogramm findest du hier: Übersicht anzeigen

FINANZIERUNG
?>

Du willst wissen, wie viel dein Umzug kosten wird?

Mach gleich den kostenlosen Preisvergleich und schau, welche seriösen Anbieter in deiner Region günstig deinen Umzug organisieren


ZUM UMZUGS-VERGLEICH
-->

MYHOME BLOG
SuchAgentin auf FindMyHome.at
Unterschiedlichen Rechtsthemen, köstliche Rezepte, neueste Design-Highlights, sowie aktuelle Technik-Tools für Ihr Eigenheim.


FINDMYHOME.AT SUCHAGENTIN
SuchAgentin auf FindMyHome.at
Hallo, soll ich dir ähnliche Immobilien kostenfrei per E-Mail schicken?


ÄHNLICHE IMMOBILIEN
Aehnliche Immobilie - Vorschaubild 1

Lichtdurchflutete Wohnjuwel – Ihr neues Zuhause! - Objektnr. 5503670

130,34 m² - 3 Zimmer
1649000 €
PLZ: 1070

Mehr anzeigen

Aehnliche Immobilie - Vorschaubild 2

++ CITYLOFT mit FLAIR ++ Dachgeschoss mit großzügigen FREIFL... - Objektnr. 5621286

141,18 m² - 3 Zimmer
1760000 €
PLZ: 1070

Mehr anzeigen

Aehnliche Immobilie - Vorschaubild 3

Einzigartiger Altbaucharme – Ihr neues Zuhause wartet!... - Objektnr. 5633178

176,83 m² - 5 Zimmer
1990000 €
PLZ: 1070

Mehr anzeigen

Durch die Nutzung unserer Seite erklären Sie sich mit der Verwendung von Cookies zur Verbesserung Ihres Online-Erlebnisses einverstanden. Detaillierte Informationen zu diesem und weiteren Themen erhalten Sie in unserer Datenschutzerklärung.