MEIN ERGEBNIS ANPASSEN

Vivara! Angenehme Ruhe genießen mit schönem Grünblick in Innenhoflage - Objektnr. 5610958

  • Projekt von Dachterrasse
  • vivara balkon top 13
  • Vivara Bad top 13
  • vivara küche top 13
  • vivara schlafzimmer top 13
  • vivara top 13 ausblick
  • Projekt vom Garten
  • Dachterrasse
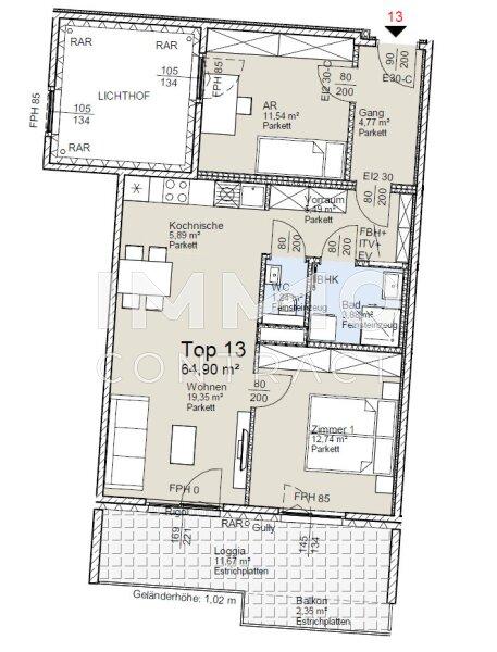
  • Vivara Top 13
1140
Ort
65,00 m²
Fläche
3.0
Zimmer

ECKDATEN
FindMyHome.at // Externe Immobilien-ID5610958 // 1939/163048
ImmobilienartWohnung - Eigentum
Anschrift1140 Wien
Fläche65,00 m²
Zimmer3.0
Bad1
WC1
 Abstellraum
Kaufpreis:€ 497.500,00
Ratenzahlung:Finanzierungsmöglichkeiten für diese Immobilie anzeigen
Provision:







BESCHREIBUNG

Vivara! Angenehme Ruhe genießen mit schönem Grünblick in Innenhoflage

Ein Ort zum Ankommen, Durchatmen und Wohlfühlen: Diese charmante Wohnung überzeugt nicht nur mit einem durchdachten Grundriss, sondern auch mit jener selten gewordenen Kombination aus Funktionalität und Wohnqualität.

Herzstück ist die offene Wohnküche perfekt für alle, die gerne kochen, gleichzeitig aber das Miteinander im Blick behalten möchten. Ob beim gemütlichen Frühstück, beim gemeinsamen Kochen mit Freunden oder beim entspannten Feierabend hier spielt sich das Leben ab.

Die südseitige Loggia erweitert den Wohnraum ins Freie. Ein Lieblingsplatz mit Sonne fast den ganzen Tag ideal für Kaffee in der Morgensonne, entspannte Lesestunden oder ein Abendessen im Freien.

Zwei Schlafzimmer bieten Raum für Ihre Ideen: Ob Kinderzimmer, Homeoffice, Gästezimmer oder Ankleide hier können Sie flexibel gestalten, was zu Ihrem Leben passt.

Zwei WCs eines davon separat sorgen für zusätzlichen Komfort im Alltag, besonders wenn mehrere Personen im Haushalt leben oder Gäste zu Besuch sind. Das praktische Kellerabteil im Eigentum bietet extra Stauraum und rundet das Gesamtpaket ab.

Diese Wohnung bietet nicht nur Raum, sondern Möglichkeiten. Ein Zuhause für alle, die helles Wohnen, gute Aufteilung und ein Stück Sonne im Alltag schätzen.


Infrastruktur / Entfernungen

Gesundheit
Arzt <500m
Apotheke <500m
Klinik <500m
Krankenhaus <1.000m

Kinder & Schulen
Schule <500m
Kindergarten <500m
Universität <1.500m
Höhere Schule <2.500m

Nahversorgung
Supermarkt <500m
Bäckerei <500m
Einkaufszentrum <2.000m

Sonstige
Geldautomat <1.000m
Bank <1.000m
Post <1.000m
Polizei <1.000m

Verkehr
Bus <500m
U-Bahn <500m
Straßenbahn <500m
Bahnhof <500m
Autobahnanschluss <4.500m

Angaben Entfernung Luftlinie / Quelle: OpenStreetMap

Provision:


Alle Details anzeigen

KONTAKT






 

Lasse dich kostenlos vom Anbieter dieser Immobilie zurückrufen.







 


 
IMMOcontract Immobilien Vermittlung GmbH
Alexandra Kraus
Telefonnummer anzeigen Telefon Allgemein: +4366460008134
Handy Bearbeiter: +4366460008134
 
Bitte dem Makler die FindMyHome.at - ID bekanntgeben: 5610958

Bewertungen dieses Anbieters
Netiquette

BEWERTUNGEN DIESES ANBIETERS

 
Netiquette
FINDMYHOME.AT
NETIQUETTE
Auch du kannst bewerten! 7 Tage nach deiner Anfrage erhältst du dafür von uns ein Bewertungsmail.
Alle Infos zu unseren Auszeichnungen und dem FINDMYHOME.AT Qualitätsprogramm findest du hier: Übersicht anzeigen

FINANZIERUNG
?>

Du willst wissen, wie viel dein Umzug kosten wird?

Mach gleich den kostenlosen Preisvergleich und schau, welche seriösen Anbieter in deiner Region günstig deinen Umzug organisieren


ZUM UMZUGS-VERGLEICH
-->

MYHOME BLOG
SuchAgentin auf FindMyHome.at
Unterschiedlichen Rechtsthemen, köstliche Rezepte, neueste Design-Highlights, sowie aktuelle Technik-Tools für Ihr Eigenheim.


FINDMYHOME.AT SUCHAGENTIN
SuchAgentin auf FindMyHome.at
Hallo, soll ich dir ähnliche Immobilien kostenfrei per E-Mail schicken?


ÄHNLICHE IMMOBILIEN
Aehnliche Immobilie - Vorschaubild 1

Lichtdurchflutete 3-Zimmer-Wohnung Nähe U4 Hietzing inkl. Fr... - Objektnr. 5591865

64,07 m² - 3 Zimmer
487300 €
PLZ: 1140

Mehr anzeigen

Aehnliche Immobilie - Vorschaubild 2

Vivara - Hier beginnt Ihr neues Kapitel. Provisionsfrei... - Objektnr. 5609979

72,00 m² - 3.0 Zimmer
450800 €
PLZ: 1140

Mehr anzeigen

Aehnliche Immobilie - Vorschaubild 3

Erstbezug mit Freifläche - hochwertige 4-Zimmer mit Balkon... - Objektnr. 5587579

70,78 m² - 4.0 Zimmer
439000 €
PLZ: 1140

Mehr anzeigen

Durch die Nutzung unserer Seite erklären Sie sich mit der Verwendung von Cookies zur Verbesserung Ihres Online-Erlebnisses einverstanden. Detaillierte Informationen zu diesem und weiteren Themen erhalten Sie in unserer Datenschutzerklärung.