MEIN ERGEBNIS ANPASSEN

3-Zimmer-Wohntraum in der Smart City Graz! - Objektnr. 5610556

  • Stiegenhaus
8020
Ort
€ 1.045,00
Gesamtkosten
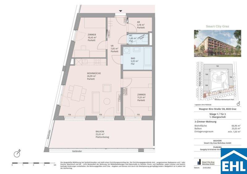
66,96 m²
Fläche
3.0
Zimmer
WEITERE MEDIEN

ECKDATEN
FindMyHome.at // Externe Immobilien-ID5610556 // 74608
ImmobilienartWohnung - Miete
AnschriftWaagner-Biro-Straße/3
8020 Graz
Stock1
Beziehbar ab2026-01-01
Mietdauer5
Fläche66,96 m²
Zimmer3.0
Bad1
WC1
 Abstellraum
Kaution:€ 3.135,00
Brutto-Miete:€ 1.045,00
Betriebskosten (inkl. MwSt):€ 181,19
Mehrwertsteuer:€ 95,00
Monatliche Gesamtkosten:€ 1.045,00
Provision: Gemäß Erstauftraggeberprinzip bezahlt der Abgeber die Provision.




BESCHREIBUNG

3-Zimmer-Wohntraum in der Smart City Graz!

Modernes Wohnen im Smart Quadrat Ihr Zuhause im Herzen der Smart City Graz

Das moderne Wohnprojekt Smart Quadrat im Herzen der Smart City Graz wartet mit einer Vielzahl an Vorteilen für Familien, Studenten, junge Berufstätige, Senioren und kreative Köpfe auf, die im modernen, ruhigeren Stadtteil von Graz zu Hause und nur wenige Minuten vom lebendigen, pulsierenden Stadtzentrum entfernt leben wollen.

Smarte Grundrisse, großzügige Wohnräume und ein vielfältiger Wohnungsmix gewährleisten höchsten Wohnkomfort und bieten die passende Wohnung für jedes Raumbedürfnis und jede Lebensphase.

Den zukünftigen Smart Quadrat-Bewohnern stehen zudem eine Vielzahl an Gemeinschaftsräumen, wie z.B. Fitnessräume, Shared Offices, Indoorspielplätze sowie ein Spielplatz im Innenhof, Washing-Lounges, eine Fahrradwerkstatt, Hobby- & Freizeiträume sowie Stellplätze in der hauseigenen Garage zur Verfügung. Ein Nahversorger und eine Bäckerei mit Caféhaus befinden sich ebenfalls direkt im Wohnkomplex. Weitere Geschäfte des täglichen Bedarfs, Ärzte, Schulen und Gastronomielokale sind fußläufig erreichbar. Auch eine große Parkanlage wird derzeit auf dem Nachbargrundstück realisiert. Ein perfekter Mix aus urbanem Leben und privater Erholung!

Smart Quadrat ist ein Teil des innovativen Stadtviertels Smart City. Eine neue Straßenbahnlinie bringt Sie im Handumdrehen und umweltfreundlich zu Ihrem Zielort in Graz.

Sollte doch einmal ein Auto benötigt werden, steht Bewohnern des Smart Quadrats die Möglichkeit zur Verfügung gleich gegenüber durch ein Car Sharing Modell ein Auto zu mieten, um so kostengünstig und flexibel von A nach B zu gelangen. Um Ihr eigenes Fahrzeug vor der Witterung zu schützen, werden im Smart Quadrat auch Tiefgaragenparkplätze angeboten, welche zusätzlich angemietet werden können. Ebenso sind Abstellplätze für Fahrräder vorhanden.

Nicht nur das Projekt selbst, sondern auch sein Standort überzeugt mit einer optimalen Infrastruktur und Nahversorgung: Ihren Einkauf können Sie problemlos zu Fuß erledigen. Die gute Anbindung ans Stadtzentrum eröffnet Ihnen außerdem zahlreiche weitere Freizeitmöglichkeiten und kulturelle Angebote. 

Ausstattung:

Details, auf die Sie sind im neuen Wohnraum freuen können:

  • Vinyl oder Parkettböden
  • Hochwertige Fliesen in den Nassräumen
  • Markenküchen
  • Badezimmer mit Dusche oder Badewanne
  • Fußbodenheizung und Fußbodenkühlung
  • Fernwärme
  • Aufzüge
  • Lagerabteile
  • Tiefgaragenstellplätze
  • Fahrradabstellplätze

Heizung und Warmwasser werden nach Verbrauch abgerechnet.
    
Öffentliche Verkehrsanbindung:
Straßenbahn: 6 
Buslinie: 40, 48, 52, 62, 65, 65A, 67, N1
Bahn: Graz Hauptbahnhof (12min via Straßenbahnlinie 6)

Befristung: 5 Jahre, 1 Jahr Kündigungsverzicht, 3 Monate Kündigungsfrist

Nebenkosten 
3 BMM Kaution

Wir weisen darauf hin, dass zwischen dem Vermittler und dem zu vermittelnden Dritten ein familiäres oder wirtschaftliches Naheverhältnis besteht.

Der Immobilienmakler erklärt, dass er entgegen dem in der Immobilienwirtschaft üblichen Geschäftsgebrauch des Doppelmaklers einseitig nur für den Vermieter tätig ist.


Infrastruktur / Entfernungen

Gesundheit
Arzt <500m
Apotheke <500m
Klinik <250m
Krankenhaus <1.000m

Kinder & Schulen
Schule <250m
Kindergarten <250m
Universität <1.500m
Höhere Schule <1.500m

Nahversorgung
Supermarkt <250m
Bäckerei <250m
Einkaufszentrum <1.250m

Sonstige
Geldautomat <500m
Bank <500m
Post <500m
Polizei <1.000m

Verkehr
Bus <250m
Straßenbahn <250m
Autobahnanschluss <4.750m
Bahnhof <1.250m

Angaben Entfernung Luftlinie / Quelle: OpenStreetMap

Provision: Gemäß Erstauftraggeberprinzip bezahlt der Abgeber die Provision.


Alle Details anzeigen

KONTAKT






 

Lasse dich kostenlos vom Anbieter dieser Immobilie zurückrufen.







 


 
EHL Wohnen GmbH
Gerald Bruchmann

Bewertungen dieses Anbieters
Qualitätsmakler
Qualitätsmakler:
Netiquette
Freundlichkeit
82 %

BEWERTUNGEN DIESES ANBIETERS

 
Qualitätsmakler
UNSERE HALL OF FAME DER BESTEN ANBIETER
Qualit�tsmakler
Qualitätsmakler
2012, 2013, 2014, 2015, 2016, 2017, 2018, 2019, 2020, 2021, 22/23, 2024, 2025
Weiterempfehlung
WIRD GERNE

Freundlichkeit
BESONDERS
FREUNDLICH
Netiquette
FINDMYHOME
NETIQUETTE
Auch du kannst bewerten! 7 Tage nach deiner Anfrage erhältst du dafür von uns ein Bewertungsmail.
Alle Infos zu unseren Auszeichnungen und dem FINDMYHOME.AT Qualitätsprogramm findest du hier: Übersicht anzeigen


Du willst wissen, wie viel dein Umzug kosten wird?

Mach gleich den kostenlosen Preisvergleich und schau, welche seriösen Anbieter in deiner Region günstig deinen Umzug organisieren


ZUM UMZUGS-VERGLEICH
-->

MYHOME BLOG
SuchAgentin auf FindMyHome.at
Unterschiedlichen Rechtsthemen, köstliche Rezepte, neueste Design-Highlights, sowie aktuelle Technik-Tools für Ihr Eigenheim.


FINDMYHOME.AT SUCHAGENTIN
SuchAgentin auf FindMyHome.at
Hallo, soll ich dir ähnliche Immobilien kostenfrei per E-Mail schicken?


ÄHNLICHE IMMOBILIEN
Aehnliche Immobilie - Vorschaubild 1

**ab 01.04.2026** - Balkonwohnung im Süd Spitz! - Objektnr. 5609643

55,44 m² - 2.0 Zimmer
839 €
PLZ: 8020

Mehr anzeigen

Aehnliche Immobilie - Vorschaubild 2

Zentrale, geförderte 3 Zimmer-Wohnung mit Balkon - Lazarettg... - Objektnr. 5606051

70,05 m² - 3.0 Zimmer
937.75 €
PLZ: 8020

Mehr anzeigen

Aehnliche Immobilie - Vorschaubild 3

Traumhafte 3-Zimmer-Wohnung in Graz mit Schlossberg-Blick in... - Objektnr. 5610520

70,00 m² - 3.0 Zimmer
885 €
PLZ: 8020

Mehr anzeigen

Durch die Nutzung unserer Seite erklären Sie sich mit der Verwendung von Cookies zur Verbesserung Ihres Online-Erlebnisses einverstanden. Detaillierte Informationen zu diesem und weiteren Themen erhalten Sie in unserer Datenschutzerklärung.