Grün. Modern. Zentral: Ihr neuer Traum auf 2 Zimmern - Erstbezug mit Balkon und U4-Nähe - Objektnr. 5609935
ECKDATEN
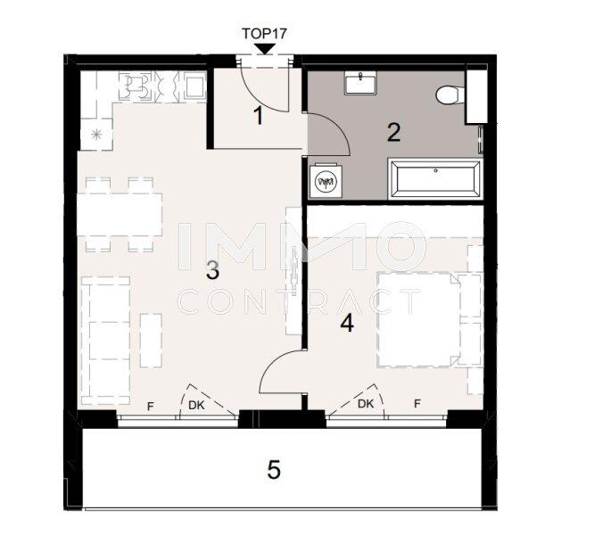
BESCHREIBUNG
KONTAKT
Lasse dich kostenlos vom Anbieter dieser Immobilie zurückrufen.
IMMOcontract Immobilien Vermittlung GmbH
Julian Pelzmann
Julian Pelzmann
Telefonnummer anzeigen
Telefon Allgemein: +4366460008409
Handy Bearbeiter: +4366460008409
Bitte dem Makler die FindMyHome.at - ID bekanntgeben: 5609935
Handy Bearbeiter: +4366460008409
Bitte dem Makler die FindMyHome.at - ID bekanntgeben: 5609935
BEWERTUNGEN DIESES ANBIETERS
FINDMYHOME.AT
NETIQUETTE
NETIQUETTE
Auch du kannst bewerten! 7 Tage nach deiner Anfrage erhältst du dafür von uns ein Bewertungsmail.
Alle Infos zu unseren Auszeichnungen und dem FINDMYHOME.AT Qualitätsprogramm findest du hier: Übersicht anzeigen
Alle Infos zu unseren Auszeichnungen und dem FINDMYHOME.AT Qualitätsprogramm findest du hier: Übersicht anzeigen
FINANZIERUNG
Du willst wissen, wie viel dein Umzug kosten wird?
Mach gleich den kostenlosen Preisvergleich und schau, welche seriösen Anbieter in deiner Region günstig deinen Umzug organisieren
ZUM UMZUGS-VERGLEICH














