MEIN ERGEBNIS ANPASSEN

Wiener Rose - moderne Altbauwohnung - 2 Zimmer Erstbezug - Objektnr. 5609905

  • Wohnzimmer
  • Wohnzimmer
  • Wohnzimmer
  • Schlafzimmer
  • Küche
  • modernes Badezimmer
  • Vorzimmer
  • Vorzimmer
  • Personenlift
  • Personenlift
  • Altbaucharme
  • Foyer
  • Aussenansicht
  • Haus Schnitt
1170
Ort
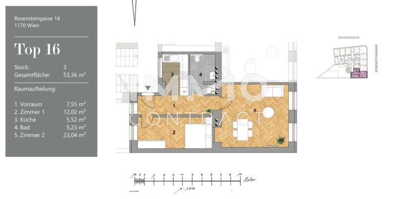
53,36 m²
Fläche
2.0
Zimmer

ECKDATEN
FindMyHome.at // Externe Immobilien-ID5609905 // 1939/133241
ImmobilienartWohnung - Eigentum
Anschrift1170 Wien
Baujahr1900
Befeuerung
Fläche53,36 m²
Zimmer2.0
Bad1
Kaufpreis:€ 289.000,00
Ratenzahlung:Finanzierungsmöglichkeiten für diese Immobilie anzeigen
Provision: 10.404,00 ? inkl. 20% USt.







BESCHREIBUNG

Wiener Rose - moderne Altbauwohnung - 2 Zimmer Erstbezug

Präsentiert wird eine frisch sanierte 2-Zimmer-Altbauwohnung mit einer Wohnfläche von ca. 53,36 m² im 3. Obergeschoss eines umfassend modernisierten Hauses. Die Einheit überzeugt durch ihre funktionale Raumaufteilung, bei der alle Zimmer zentral erreichbar sind ideal auch für Wohngemeinschaften oder Paare, die stilvolles und komfortables Wohnen in Wien schätzen.

Ein Aufzug sorgt für barrierefreien Zugang, und ein eigenes Kellerabteil steht zur Verfügung. Zusätzlich gibt es im Keller praktische Abstellmöglichkeiten für Fahrräder und Kinderwagen.

Die Liegenschaft wurde in ihrer Gesamtheit saniert, inklusive Dachgeschossausbau, sodass das Haus nun in zeitgemäßer Eleganz erstrahlt. Neben der hier beschriebenen Wohnung sind noch weitere Einheiten verfügbar, die nach Fertigstellung bezogen werden können.

Nutzen Sie die Chance, diese gepflegte Wohnung als Erstbezug zu erwerben und vereinbaren Sie noch heute einen Besichtigungstermin.

Attraktive Gebührenbefreiung für Käufer:innen
Seit 1. Juli 2024 profitieren Immobilienkäufer:innen in Österreich von einer Gebührenbefreiung für Grundbuch- und Pfandrechtseintragungen:
Befreiung bis € 500.000 Kaufpreis pro Person
Gilt für Kaufverträge ab April 2024
Voraussetzung: Hauptwohnsitzmeldung in der Immobilie
Bei Finanzierung: über 90 % des Kredits für Kauf oder Sanierung
Ersparnis: 1,1 % Grundbuchgebühr und 1,2 % Pfandrechtseintragung


Infrastruktur / Entfernungen

Gesundheit
Arzt <500m
Apotheke <500m
Klinik <500m
Krankenhaus <1.500m

Kinder & Schulen
Schule <500m
Kindergarten <500m
Universität <1.500m
Höhere Schule <1.500m

Nahversorgung
Supermarkt <500m
Bäckerei <500m
Einkaufszentrum <1.000m

Sonstige
Geldautomat <500m
Bank <500m
Post <500m
Polizei <1.000m

Verkehr
Bus <500m
U-Bahn <1.500m
Straßenbahn <500m
Bahnhof <1.500m
Autobahnanschluss <4.000m

Angaben Entfernung Luftlinie / Quelle: OpenStreetMap

Provision: 10.404,00 ? inkl. 20% USt.


Alle Details anzeigen

KONTAKT






 

Lasse dich kostenlos vom Anbieter dieser Immobilie zurückrufen.







 


 
IMMOcontract Immobilien Vermittlung GmbH
Heidi Danninger
Telefonnummer anzeigen Telefon Allgemein: +436649639404
Handy Bearbeiter: +436649639404
 
Bitte dem Makler die FindMyHome.at - ID bekanntgeben: 5609905

Bewertungen dieses Anbieters
Netiquette

BEWERTUNGEN DIESES ANBIETERS

 
Netiquette
FINDMYHOME.AT
NETIQUETTE
Auch du kannst bewerten! 7 Tage nach deiner Anfrage erhältst du dafür von uns ein Bewertungsmail.
Alle Infos zu unseren Auszeichnungen und dem FINDMYHOME.AT Qualitätsprogramm findest du hier: Übersicht anzeigen

FINANZIERUNG
?>

Du willst wissen, wie viel dein Umzug kosten wird?

Mach gleich den kostenlosen Preisvergleich und schau, welche seriösen Anbieter in deiner Region günstig deinen Umzug organisieren


ZUM UMZUGS-VERGLEICH
-->

MYHOME BLOG
SuchAgentin auf FindMyHome.at
Unterschiedlichen Rechtsthemen, köstliche Rezepte, neueste Design-Highlights, sowie aktuelle Technik-Tools für Ihr Eigenheim.


FINDMYHOME.AT SUCHAGENTIN
SuchAgentin auf FindMyHome.at
Hallo, soll ich dir ähnliche Immobilien kostenfrei per E-Mail schicken?


ÄHNLICHE IMMOBILIEN
Aehnliche Immobilie - Vorschaubild 1

| DG-AUSBAU | FB-HEIZUNG | WÄRMEPUMPE | - Objektnr. 5480290


43,80 m² - 2.0 Zimmer
322000 €
PLZ: 1170

Mehr anzeigen

Aehnliche Immobilie - Vorschaubild 2

** NEUER PREIS ** Top-Erstbezug im Neubau! Perfekt geschnitt... - Objektnr. 5596137

54,40 m² - 2.0 Zimmer
315900 €
PLZ: 1170

Mehr anzeigen

Aehnliche Immobilie - Vorschaubild 3

Hochwertig sanierte Altbauwohnung mit Freiflächen... - Objektnr. 5558032

54,84 m² - 2 Zimmer
249000 €
PLZ: 1170

Mehr anzeigen

Durch die Nutzung unserer Seite erklären Sie sich mit der Verwendung von Cookies zur Verbesserung Ihres Online-Erlebnisses einverstanden. Detaillierte Informationen zu diesem und weiteren Themen erhalten Sie in unserer Datenschutzerklärung.