MEIN ERGEBNIS ANPASSEN

Neubauprojekt I 3 Zimmer I Terrasse A\ - Objektnr. 5609676

virtuell besichtigen
1180
Ort
83,70 m²
Fläche
3.0
Zimmer
WEITERE MEDIEN

Dokumente

Virtuelle Rundgänge


ECKDATEN
FindMyHome.at // Externe Immobilien-ID5609676 // 62810
ImmobilienartWohnung - Eigentum
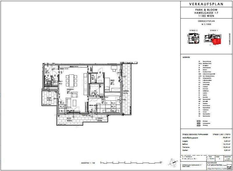
AnschriftHawelgasse 17/1.08
1180 Wien
Baujahr2024
Stock2
Geschosse4
Fläche83,70 m²
Terrassen1 (30,00 m²)
Zimmer3.0
Bad2
WC1
 Abstellraum
Kaufpreis:€ 729.000,00
Ratenzahlung:Finanzierungsmöglichkeiten für diese Immobilie anzeigen
Provision: 3% des Kaufpreises zzgl. 20% USt.







BESCHREIBUNG

Neubauprojekt I 3 Zimmer I Terrasse A\

Für eine noch größere Auswahl an Immobilien besuchen Sie www.akkadia.at.

Dieses außergewöhnliche Neubauprojekt verbindet auf harmonische Weise die Vorzüge urbanen Wohnens mit der Ruhe und Idylle einer grünen Premiumlage.

In einer der exklusivsten Wohngegenden Wiens, nur wenige Schritte vom Pötzleinsdorfer Schlosspark entfernt, wurden 2024 insgesamt 18 hochwertig ausgestattete Wohneinheiten in zwei modernen Wohnhäusern fertiggestellt. Das Projekt steht für exzellente Wohnqualität, zeitlose Architektur und nachhaltige Bauweise.

Die beiden Gebäude sind durch ein gemeinsames Untergeschoß verbunden, das großzügige Einlagerungsräume, eine Tiefgarage mit 15 PKW-Stellplätzen sowie Abstellflächen für Fahrräder und Kinderwägen bietet. Ein Aufzug ermöglicht einen barrierefreien Zugang direkt zu den Wohnebenen und sorgt so für höchsten Komfort.

Ein durchdachtes Energiekonzept mit einer nachhaltigen Erdwärme-Sole-Pumpe gewährleistet über Fußbodenheizung und -kühlung ein angenehmes Raumklima das ganze Jahr über. Zusätzlich sorgen moderne Klimaanlagen für individuellen Wohnkomfort.

Jede Wohneinheit verfügt über ein eigenes Kellerabteil. Ein Stellplatz in der hauseigenen Tiefgarage kann optional erworben werden.

Die einladende Wohnung befindet sich auf der unteren DG Ebene und verfügt über eine Wohnfläche von ca. 84 m².
Vom Vorzimmer aus betreten Sie Ihr neues Zuhause, das mit einer durchdachten Raumaufteilung überzeugt. Ihnen stehen ein großzügiger Wohn-Küchenbereich, zwei Schlafzimmer mit angeschlossenen Badezimmern, eine separate Toilette sowie ein praktischer Abstellraum zur Verfügung.
Ein besonderes Highlight sind die großzügigen Außenflächen,, welche von jedem Zimmer aus zugänglich sind. Von hier haben Sie einen traumhaften Grünblick ein perfekter Ort zum Entspannen und Genießen.

Auf Grund der EU-Richtlinien zum Fernabsatz- und Auswärtsgeschäfte-Gesetz bitten wir um Ihr Verständnis, dass wir Ihnen seit 13. Juni 2014 die Objekt-Unterlagen erst nach Ihrer Bestätigung, dass Sie unser Tätigwerden wünschen und über Ihre Rücktrittsrechte aufgeklärt wurden, zusenden können. Bevor Sie die Unterlagen zugesendet bekommen, erhalten Sie eine Mail in der Sie diese beiden Punkte bestätigen müssen. Vielen Dank für Ihr Vertrauen!


Infrastruktur / Entfernungen

Gesundheit
Arzt <400m
Apotheke <650m
Klinik <1.025m
Krankenhaus <1.200m

Kinder & Schulen
Schule <450m
Kindergarten <275m
Universität <1.800m
Höhere Schule <1.925m

Nahversorgung
Supermarkt <825m
Bäckerei <475m
Einkaufszentrum <2.125m

Sonstige
Geldautomat <825m
Bank <1.175m
Post <1.300m
Polizei <1.575m

Verkehr
Bus <350m
Straßenbahn <350m
U-Bahn <1.875m
Bahnhof <1.825m
Autobahnanschluss <4.100m

Angaben Entfernung Luftlinie / Quelle: OpenStreetMap

Klimaanlage: JA
Barrierefrei: JA
Provision: 3% des Kaufpreises zzgl. 20% USt.


Alle Details anzeigen

KONTAKT






 

Lasse dich kostenlos vom Anbieter dieser Immobilie zurückrufen.







 


 
AKKADIA Immobilienvermittlung GmbH
Akkadia Master

Bewertungen dieses Anbieters
Netiquette
Freundlichkeit

BEWERTUNGEN DIESES ANBIETERS

 
Freundlichkeit
BESONDERS
FREUNDLICH
Netiquette
FINDMYHOME
NETIQUETTE
Auch du kannst bewerten! 7 Tage nach deiner Anfrage erhältst du dafür von uns ein Bewertungsmail.
Alle Infos zu unseren Auszeichnungen und dem FINDMYHOME.AT Qualitätsprogramm findest du hier: Übersicht anzeigen

FINANZIERUNG
?>

Du willst wissen, wie viel dein Umzug kosten wird?

Mach gleich den kostenlosen Preisvergleich und schau, welche seriösen Anbieter in deiner Region günstig deinen Umzug organisieren


ZUM UMZUGS-VERGLEICH
-->

MYHOME BLOG
SuchAgentin auf FindMyHome.at
Unterschiedlichen Rechtsthemen, köstliche Rezepte, neueste Design-Highlights, sowie aktuelle Technik-Tools für Ihr Eigenheim.


FINDMYHOME.AT SUCHAGENTIN
SuchAgentin auf FindMyHome.at
Hallo, soll ich dir ähnliche Immobilien kostenfrei per E-Mail schicken?


ÄHNLICHE IMMOBILIEN
Aehnliche Immobilie - Vorschaubild 1

Erstbezug mit hofseitigem Balkon! Vollsanierte Jahrhundertwe... - Objektnr. 5570695

73,71 m² - 2.0 Zimmer
810000 €
PLZ: 1180

Mehr anzeigen

Aehnliche Immobilie - Vorschaubild 2

Sanierungsbedürftige 3,5-Zimmer-Wohnung mit traumhaften Ausb... - Objektnr. 5601514

93,44 m² - 3.5 Zimmer
614315 €
PLZ: 1180

Mehr anzeigen

Aehnliche Immobilie - Vorschaubild 3

Klassisch. Außergewöhnlich. Mondän. Elegant. - Objektnr. 5602661

82,62 m² - 3.0 Zimmer
820000 €
PLZ: 1180

Mehr anzeigen

Durch die Nutzung unserer Seite erklären Sie sich mit der Verwendung von Cookies zur Verbesserung Ihres Online-Erlebnisses einverstanden. Detaillierte Informationen zu diesem und weiteren Themen erhalten Sie in unserer Datenschutzerklärung.