MEIN ERGEBNIS ANPASSEN

Wohnraum selbst gestalten, so individuell wie Sie - Einzigartige Wohnung im Wildgarten - Objektnr. 5609601

  • Hausansicht 3
1120
Ort
123,62 m²
Fläche
6.0
Zimmer

ECKDATEN
FindMyHome.at // Externe Immobilien-ID5609601 // 68448
ImmobilienartWohnung - Eigentum
AnschriftLore-Kutschera-Weg/1+2
1120 Wien,Meidling
Baujahr2023
Geschosse21
Fläche123,62 m²
Terrassen1 (26,00 m²)
Zimmer6.0
Bad1
WC2
Kaufpreis:€ 459.000,00
Ratenzahlung:Finanzierungsmöglichkeiten für diese Immobilie anzeigen
Provision: Provision bezahlt der Abgeber.







BESCHREIBUNG

Wohnraum selbst gestalten, so individuell wie Sie - Einzigartige Wohnung im Wildgarten

Wohntraum nach Maß - eine außergewöhnliche Wohnung, die Ihnen maximale Freiheit bei der Gestaltung und höchste Wohnqualität bietet.

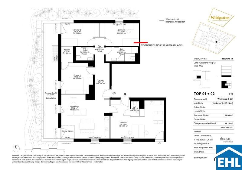
Die ca. 124m² große Erdgeschosswohnung im beliebten Wildgarten befindet sich im Rohbau-Zustand und eröffnet Ihnen die Möglichkeit, Wände, Böden sowie Türen ganz nach Ihren persönlichen Vorstellungen auszubauen. So schaffen Sie sich ein Zuhause, das exakt Ihrem Stil und Ihren Bedürfnissen entspricht. Die Wohnung eignet sich ideal für Individualisten, Familien oder all jene, die ihren Wohntraum selbst verwirklichen möchten.

Technisch ist bereits bestens vorgesorgt: Eine Fußbodenheizung ist fixfertig eingebaut, zudem ist der Anschluss für eine Klimaanlage bereits vorbereitet. Damit sind die wichtigsten Grundlagen für modernen Wohnkomfort schon geschaffen. Außerdem ist ein Badezimmer mit WC und Walk-in Dusche sowie eine separate Toilette bereits ausgebaut.

Die Wohnung verfügt über bis zu sechs helle Zimmer mit außergewöhnlicher Raumhöhe und überzeugt durch einen flächigen Grundriss der von drei Seiten natürlich belichtet wird.  In außenliegender Sonnenschutz, bodentiefe Fenster teils französiche Fenster, sowie die Nordwestterrasse laden dazu ein, entspannte Stunden im Freien zu genießen ob beim morgendlichen Kaffee oder zum Ausklang des Tages.

Auch die Lage lässt keine Wünsche offen: Dank sehr guter öffentlicher Verkehrsanbindung (Bus) erreichen Sie rasch die Innenstadt und andere zentrale Punkte Wiens. In unmittelbarer Umgebung befinden sich Apotheken, Krankenhaus, Schulen, Kindergärten, Supermärkte und Bäckereien alles, was Sie für den täglichen Bedarf benötigen, ist bequem fußläufig erreichbar.

Lage und Infrastruktur

Vom und zum Wildgarten fährt man mit dem Bus (63A, zukünftig auch 63B) der eigens für den Wildgarten eine neue Haltestelle bekommen wird. Der Bus bringt Sie zum Bahnhof Hetzendorf oder Bahnhof Atzgersdorf mit den Schnellverbindungen der S-Bahn. Mit dem Fahrrad benötigen Sie ca. 20 Minuten in den Wienerwald bzw. Lainzer Tiergarten, oder Sie sind zu Fuß in ca. 15 Minuten im Hietzinger Bad. Den Flughafen erreicht man mit dem Auto in ca. 25 Minuten. Das Zentrum Wiens ist in ca. 30 Minuten erreicht und doch sind Grünflächen und Freizeitangebote in unmittelbarer Umgebung. Das bietet die Lage des WILDGARTENs.

Angebote des täglichen Bedarfs und der sozialen Infrastruktur wie etwa Nahversorgung, zwei Kindergärten und Gastronomie werden direkt am Areal geschaffen.

Nutzen Sie die Chance, Ihre Wohnträume von Grund auf zu realisieren.

Fotos: ©Lukas Schaller | © EHL Wohnen GmbH

Provisionsfrei für den Käufer!

 

Wir weisen darauf hin, dass zwischen dem Vermittler und dem zu vermittelnden Dritten ein familiäres oder wirtschaftliches Naheverhältnis besteht.

Der Vermittler ist als Doppelmakler tätig.


Infrastruktur / Entfernungen

Gesundheit
Arzt <1.250m
Apotheke <1.000m
Klinik <1.500m
Krankenhaus <1.000m

Kinder & Schulen
Schule <750m
Kindergarten <250m
Universität <3.750m
Höhere Schule <3.750m

Nahversorgung
Supermarkt <500m
Bäckerei <500m
Einkaufszentrum <1.750m

Sonstige
Geldautomat <1.250m
Bank <1.500m
Post <1.500m
Polizei <1.750m

Verkehr
Bus <250m
U-Bahn <1.750m
Straßenbahn <1.500m
Bahnhof <1.500m
Autobahnanschluss <1.750m

Angaben Entfernung Luftlinie / Quelle: OpenStreetMap

Provision: Provision bezahlt der Abgeber.


Alle Details anzeigen

KONTAKT






 

Lasse dich kostenlos vom Anbieter dieser Immobilie zurückrufen.







 


 
EHL Wohnen GmbH
Ingrid Neugebauer
Telefonnummer anzeigen Telefon Allgemein: +4315127690418
Handy Bearbeiter: +4369915212532
 
Bitte dem Makler die FindMyHome.at - ID bekanntgeben: 5609601

Bewertungen dieses Anbieters
Qualitätsmakler
Qualitätsmakler:
Netiquette
Freundlichkeit
82 %

BEWERTUNGEN DIESES ANBIETERS

 
Qualitätsmakler
UNSERE HALL OF FAME DER BESTEN ANBIETER
Qualit�tsmakler
Qualitätsmakler
2012, 2013, 2014, 2015, 2016, 2017, 2018, 2019, 2020, 2021, 22/23, 2024, 2025
Weiterempfehlung
WIRD GERNE

Freundlichkeit
BESONDERS
FREUNDLICH
Netiquette
FINDMYHOME
NETIQUETTE
Auch du kannst bewerten! 7 Tage nach deiner Anfrage erhältst du dafür von uns ein Bewertungsmail.
Alle Infos zu unseren Auszeichnungen und dem FINDMYHOME.AT Qualitätsprogramm findest du hier: Übersicht anzeigen

FINANZIERUNG
?>

Du willst wissen, wie viel dein Umzug kosten wird?

Mach gleich den kostenlosen Preisvergleich und schau, welche seriösen Anbieter in deiner Region günstig deinen Umzug organisieren


ZUM UMZUGS-VERGLEICH
-->

MYHOME BLOG
SuchAgentin auf FindMyHome.at
Unterschiedlichen Rechtsthemen, köstliche Rezepte, neueste Design-Highlights, sowie aktuelle Technik-Tools für Ihr Eigenheim.


FINDMYHOME.AT SUCHAGENTIN
SuchAgentin auf FindMyHome.at
Hallo, soll ich dir ähnliche Immobilien kostenfrei per E-Mail schicken?


ÄHNLICHE IMMOBILIEN
Aehnliche Immobilie - Vorschaubild 1

*Derzeit vermietet bis 09/2028 -Zentral gelegener Familienwo... - Objektnr. 5512878

104,37 m² - 4.0 Zimmer
390000 €
PLZ: 1120

Mehr anzeigen

Aehnliche Immobilie - Vorschaubild 2

Stylische Dachgeschossmaisonette mit sonniger Terrasse und e... - Objektnr. 5594932

101,20 m² - 3.0 Zimmer
478000 €
PLZ: 1120

Mehr anzeigen

Aehnliche Immobilie - Vorschaubild 3

FAMILIENWOHNUNG Nähe SCHÖNBRUNN - Objektnr. 5544358


115,13 m² - 5 Zimmer
399000 €
PLZ: 1120

Mehr anzeigen

Durch die Nutzung unserer Seite erklären Sie sich mit der Verwendung von Cookies zur Verbesserung Ihres Online-Erlebnisses einverstanden. Detaillierte Informationen zu diesem und weiteren Themen erhalten Sie in unserer Datenschutzerklärung.