MEIN ERGEBNIS ANPASSEN

DANUBEFLATS: Penthouse im höchsten Wohnturm Österreichs mit Ausblick wohin das Auge reicht - NEW - Objektnr. 5609116


ökologisch beheizt
virtuell besichtigen
  • Soravia_DFPenthouse_still_cam15
  • Soravia_DFPenthouse_still_cam13
  • Soravia_DFPenthouse_still_cam06
  • Soravia_DFPenthouse_still_cam11
  • Soravia_DFPenthouse_still_cam14
  • Soravia_DFPenthouse_still_cam16
  • Soravia_DFPenthouse_still_cam18
  • Soravia_DFPenthouse_still_cam21
  • DAF_Fassade_Closeup_(c)Squarebyted
  • DAF_ParkHouse_(c)A01
  • Lobby(c)A01
  • DAF Gym(c)Labvert+OLN
  • DAF_Pooldeck_(c)Squarebytes
  • DAF - CocktailBar_(c)Labvert
  • DAF_HeroShot_day_(c)Squarebytes
  • DAF_HeroShot_night_(c)Squarebytes
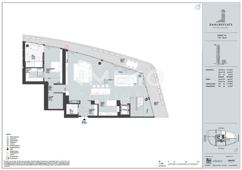
  • 46-01 Ebene 46
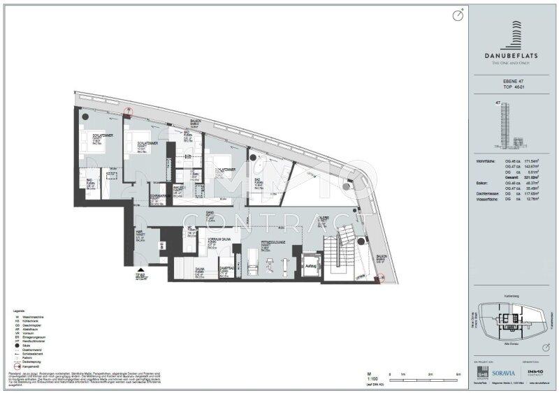
  • 46-01 Ebene 47
  • 46-01 Ebene DG
1220
Ort
321,02 m²
Fläche
5.5
Zimmer
WEITERE MEDIEN

Virtuelle Rundgänge


ECKDATEN
FindMyHome.at // Externe Immobilien-ID5609116 // 1939/163909
ImmobilienartWohnung - Eigentum
AnschriftWagramer Straße 2/46-01
1220 Wien
Baujahr2025
Befeuerung
Fernwärme
Geschosse48
Fläche321,02 m²
Terrassen1 (201,00 m²)
Zimmer5.5
Bad4
WC6
 Abstellraum
Kaufpreis:€ 12.903.000,00
Ratenzahlung:Finanzierungsmöglichkeiten für diese Immobilie anzeigen
Provision: 3% des Kaufpreises zzgl. 20% USt.







BESCHREIBUNG

DANUBEFLATS: Penthouse im höchsten Wohnturm Österreichs mit Ausblick wohin das Auge reicht - NEW

DAS HÖCHSTE PENTHOUSE ÖSTERREICHS - jetzt besichtigen!

DANUBEFLATS. The One and Only.

* Mit rund 180 Metern der höchste Wohnturm Österreichs

* Großzügiger Spa-Bereich mit Sauna, Fitness, Ruhezone, ganzjährig beheiztem Pool und Cocktailbar

* Top ausgestattete Business Lounge, Event Lounge, Executive Lounge, Sky-Gärten, moderner Supermarkt

* Erwerb von mehreren Tiefgaragenstellplätzen in eigenem Bereich möglich

* Gestalten Sie das Penthouse Ihrer Träume ganz nach Ihren eigenen Vorstellungen (Übergabe im Edelrohbau), Pool am Dach vorhanden!

* Umfangreiches Doorman-Service: Apartmentreinigung, Textil-, Einkaufs-, Liefer- und Paketservice, Kurierdienste, Tierbetreuung, Catering & Events u.v.m.

Wir weisen darauf hin, dass zwischen dem Vermittler und dem Auftraggeber ein wirtschaftliches Naheverhältnis besteht. Der Vermittler ist als Doppelmakler tätig.

Wir weisen darauf hin, dass zwischen dem Vermittler und dem zu vermittelnden Dritten ein familiäres oder wirtschaftliches Naheverhältnis besteht.

Der Vermittler ist als Doppelmakler tätig.


Infrastruktur / Entfernungen

Gesundheit
Arzt <75m
Apotheke <275m
Klinik <1.250m
Krankenhaus <2.450m

Kinder & Schulen
Schule <500m
Kindergarten <300m
Universität <1.525m
Höhere Schule <3.000m

Nahversorgung
Supermarkt <25m
Bäckerei <275m
Einkaufszentrum <1.900m

Sonstige
Geldautomat <300m
Bank <300m
Post <425m
Polizei <100m

Verkehr
Bus <75m
U-Bahn <100m
Straßenbahn <1.200m
Bahnhof <175m
Autobahnanschluss <125m

Angaben Entfernung Luftlinie / Quelle: OpenStreetMap

Klimaanlage: JA
Swimmingpool: JA
Barrierefrei: JA
Provision: 3% des Kaufpreises zzgl. 20% USt.


Alle Details anzeigen

KONTAKT






 

Lasse dich kostenlos vom Anbieter dieser Immobilie zurückrufen.







 


 
IMMOcontract Immobilien Vermittlung GmbH
Projektteam DANUBEFLATS
Telefonnummer anzeigen Telefon Allgemein: +43189008002302
 
Bitte dem Makler die FindMyHome.at - ID bekanntgeben: 5609116

Bewertungen dieses Anbieters
Netiquette

BEWERTUNGEN DIESES ANBIETERS

 
Netiquette
FINDMYHOME.AT
NETIQUETTE
Auch du kannst bewerten! 7 Tage nach deiner Anfrage erhältst du dafür von uns ein Bewertungsmail.
Alle Infos zu unseren Auszeichnungen und dem FINDMYHOME.AT Qualitätsprogramm findest du hier: Übersicht anzeigen

FINANZIERUNG
?>

Du willst wissen, wie viel dein Umzug kosten wird?

Mach gleich den kostenlosen Preisvergleich und schau, welche seriösen Anbieter in deiner Region günstig deinen Umzug organisieren


ZUM UMZUGS-VERGLEICH
-->

MYHOME BLOG
SuchAgentin auf FindMyHome.at
Unterschiedlichen Rechtsthemen, köstliche Rezepte, neueste Design-Highlights, sowie aktuelle Technik-Tools für Ihr Eigenheim.


FINDMYHOME.AT SUCHAGENTIN
SuchAgentin auf FindMyHome.at
Hallo, soll ich dir ähnliche Immobilien kostenfrei per E-Mail schicken?


Durch die Nutzung unserer Seite erklären Sie sich mit der Verwendung von Cookies zur Verbesserung Ihres Online-Erlebnisses einverstanden. Detaillierte Informationen zu diesem und weiteren Themen erhalten Sie in unserer Datenschutzerklärung.