MEIN ERGEBNIS ANPASSEN

Dachgeschoß Wohn(T)raum in begehrter Lage im 19. Bezirk! Wohnen bei den Weinbergen! - Objektnr. 5609094

  • Top_08_T4A1449_auswahl
  • Top_08_T4A1461_auswahl
  • Top_08_T4A0089_auswahl
  • Top_08_T4A0130_auswahl
  • Top_08_T4A0108_auswahl
  • Top_08_T4A0115_auswahl
  • Top_08_T4A0126_auswahl
  • Top_08_T4A0153_auswahl
  • Allgemein_T4A1279
  • Allgemein_T4A0945
  • Allgemein_T4A0988
  • Allgemein_T4A1431
  • Allgemein_T4A1605
  • Allgemein_T4A1405
  • Allgemein_T4A1399
  • Verkaufspläne_Unterer Schreiberweg-10
1190
Ort
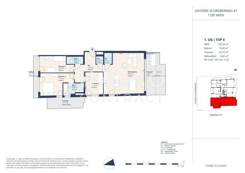
116,18 m²
Fläche
4.0
Zimmer

ECKDATEN
FindMyHome.at // Externe Immobilien-ID5609094 // 1939/162146
ImmobilienartWohnung - Eigentum
Anschrift1190 Wien
Baujahr2023
Geschosse5
Fläche116,18 m²
Terrassen2 (39,00 m²)
Zimmer4.0
Bad2
WC2
 Abstellraum
Kaufpreis:€ 1.969.000,00
Ratenzahlung:Finanzierungsmöglichkeiten für diese Immobilie anzeigen
Provision: 70.884,00 ? inkl. 20% USt.







BESCHREIBUNG

Dachgeschoß Wohn(T)raum in begehrter Lage im 19. Bezirk! Wohnen bei den Weinbergen!

Wohnen in den Weingärten!

Der Untere Schreiberweg liegt idyllisch und doch stadtnahe eingebettet zwischen Schreiberbach und den umliegenden Weinbergen. Er ist benannt nach einem herzoglichen Hofschreiber, der um 1297 im Besitz der Ländereien um den Schreiberbach war.

Lassen Sie sich von der Geschichte dieses charmanten Ortes verzaubern

In bester Nachbarschaft, am Südhang des Kahlenbergs gelegen, finden Sie diese 13 modernen und komfortablen Eigentumswohnungen zwischen 2 und 5 Zimmern, welche den Ansprüchen höchsten Wohnkomforts definitiv gerecht werden. Die weitläufigen Freiflächen, als Eigengärten, Loggien, Balkonen und/oder Terrassen ausgestaltet, laden zum Verweilen im Freien ein.

In den großzügigen Gartenwohnungen wurden private Pools sowie zugehörige Poolhäuser errichtet, die den Wohnbereich in der warmen Jahreszeit nach Außen verlagern und Spaß für die ganze Familie versprechen! Ein klimafreundliches Heizsystem inkl. Photovoltaikanlage, eine Kühlung sowie die private Tiefgarage sorgen für zusätzlichen Wohnkomfort.

Das Projekt im Überblick:

- 13 attraktive Eigentumswohnungen mit 2-5 Zimmern
- Wohnflächen zwischen ca. 47 m² und ca. 192 m² zzgl. Garten, Balkon und/oder Terrasse
- Tiefgarage mit 13 KFZ-Abstellplätzen
- Einlagerungsräume im Erdgeschoss
- Fahrrad- und Kinderwagenabstellraum
- Eventbereich mit Küche und WC
- bereits fertiggestellt und sofort beziehbar

Ein Tiefgaragenstellplatz ist nicht im Preis enthalten. Ein Doppelparker kostet € 90.000 und ein Einzelparker kostet € 50.000.

Überzeugen Sie sich selbst von der hohen Qualität und dem Wohlfühlfaktor dieses Projekts und vereinbaren Sie sich gerne einen persönlichen Besichtigungstermin mit uns!

Der Ordnung halber weisen wir auf unserer Doppelmaklertätigkeit gemäß § 5 MaklerG hin.

Wir weisen darauf hin, dass zwischen dem Vermittler und dem zu vermittelnden Dritten ein familiäres oder wirtschaftliches Naheverhältnis besteht.

Der Vermittler ist als Doppelmakler tätig.


Infrastruktur / Entfernungen

Gesundheit
Arzt <1.000m
Apotheke <500m
Klinik <1.000m
Krankenhaus <2.000m

Kinder & Schulen
Schule <1.000m
Kindergarten <1.000m
Universität <1.500m
Höhere Schule <1.500m

Nahversorgung
Supermarkt <1.000m
Bäckerei <1.000m
Einkaufszentrum <2.000m

Sonstige
Geldautomat <1.500m
Bank <1.000m
Post <500m
Polizei <1.500m

Verkehr
Bus <500m
U-Bahn <2.000m
Straßenbahn <1.000m
Bahnhof <2.000m
Autobahnanschluss <2.000m

Angaben Entfernung Luftlinie / Quelle: OpenStreetMap

Klimaanlage: JA
Provision: 70.884,00 ? inkl. 20% USt.


Alle Details anzeigen

KONTAKT






 

Lasse dich kostenlos vom Anbieter dieser Immobilie zurückrufen.







 


 
IMMOcontract Immobilien Vermittlung GmbH
Michael Schwabe
Telefonnummer anzeigen Telefon Allgemein: +4318900800
Handy Bearbeiter: +4366460008102
 
Bitte dem Makler die FindMyHome.at - ID bekanntgeben: 5609094

Bewertungen dieses Anbieters
Netiquette

BEWERTUNGEN DIESES ANBIETERS

 
Netiquette
FINDMYHOME.AT
NETIQUETTE
Auch du kannst bewerten! 7 Tage nach deiner Anfrage erhältst du dafür von uns ein Bewertungsmail.
Alle Infos zu unseren Auszeichnungen und dem FINDMYHOME.AT Qualitätsprogramm findest du hier: Übersicht anzeigen

FINANZIERUNG
?>

Du willst wissen, wie viel dein Umzug kosten wird?

Mach gleich den kostenlosen Preisvergleich und schau, welche seriösen Anbieter in deiner Region günstig deinen Umzug organisieren


ZUM UMZUGS-VERGLEICH
-->

MYHOME BLOG
SuchAgentin auf FindMyHome.at
Unterschiedlichen Rechtsthemen, köstliche Rezepte, neueste Design-Highlights, sowie aktuelle Technik-Tools für Ihr Eigenheim.


FINDMYHOME.AT SUCHAGENTIN
SuchAgentin auf FindMyHome.at
Hallo, soll ich dir ähnliche Immobilien kostenfrei per E-Mail schicken?


ÄHNLICHE IMMOBILIEN
Aehnliche Immobilie - Vorschaubild 1

SieVienne - Living - Top 2 - Magnolia Garden - Objektnr. 5608084

137,24 m² - 5 Zimmer
1635000 €
PLZ: 1190

Mehr anzeigen

Aehnliche Immobilie - Vorschaubild 2

SieVienne - Living - Top 6 - Die Große mit Weitblick... - Objektnr. 5608085

136,68 m² - 5 Zimmer
1605000 €
PLZ: 1190

Mehr anzeigen

Aehnliche Immobilie - Vorschaubild 3

Wohnen, wo die Weinberge beginnen - 133,81 m² Eigentum mit T... - Objektnr. 5558179

133,81 m² - 3.0 Zimmer
1915452.68 €
PLZ: 1190

Mehr anzeigen

Durch die Nutzung unserer Seite erklären Sie sich mit der Verwendung von Cookies zur Verbesserung Ihres Online-Erlebnisses einverstanden. Detaillierte Informationen zu diesem und weiteren Themen erhalten Sie in unserer Datenschutzerklärung.