Ab sofort steht dieses Haus mit 9 Wohnungen und ein kleines Büro zum Verkauf. Alle Wohnungen sind befristet vermietet und sind eine gute Anlage, das Büro steht derzeit leer.
Das Haus wurde 2020/2021 fertig gestellt und vollkommen saniert und befindet sich im Bauland-Kerngebiet nur wenige Meter vom Zentrum entfernt.
Einheit Lage Nutzfläche lt. Einreichplan
| Ebene |
Fläche |
Terr, Balkon, Garten |
Fläche gewichtet |
| EG |
72,35 |
|
72,35 |
| EG |
35,77 |
|
35,77 |
| EG |
65,25 |
10 |
70,25 |
| HP |
45,54 |
|
45,54 |
| HP |
49,38 |
|
49,38 |
| DG |
64,44 |
6,63 |
73,10 |
| HP |
75,58 |
|
75,58 |
| OG,DG |
123,12 |
|
90,00 |
| HP |
42,23 |
|
42,23 |
| EG,DG |
80,07 |
56,31 |
108,23 |
Ausstattung:
- Jede Wohnung verfügt über eine Fußbodenheizung
- eine Küche
- Badezimmer mit Badewanne oder Dusche
- zu jeder Wohnung gehört ein Kellerabteil
- ausgestattet mit Laminat und Fliesen
- Fahrradabstellraum
Die Liegenschaft steht auf einem Grundstück mit einer Fläche von 621 m²; Errichtung um 1890. Im Zuge der Sockelsanierung 2020 wurden sämtliche Leitungen erneuert und Wohnungen zusammengelegt, dadurch ergibt
sich eine gute Durchmischung der Wohnungsgrößen, sie variieren von 40m² bis 123m² und sind daher gut vermittelbar.
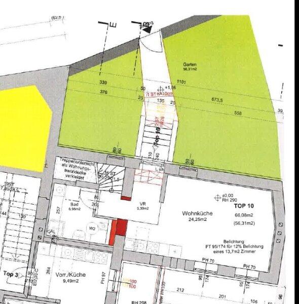
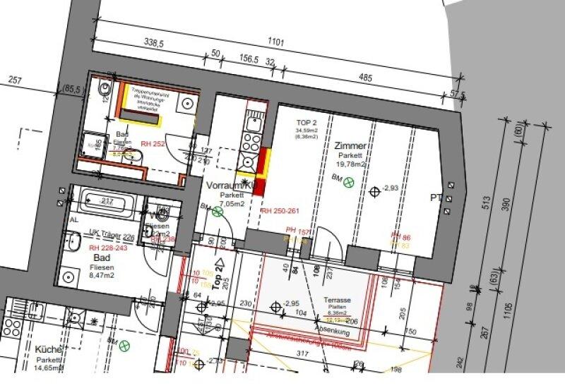
Das Gebäude verfügt über ein Kellergeschoß, Erdgeschoß, Obergeschoß und ein erstes Dachgeschoß. Die Wohnnutzfläche beträgt 653 m², hinzu kommt noch die Kellerfläche. Insgesamt besteht das
Objekt aus 10 Bestandseinheiten. Eine Wohnung bietet einen Eigengarten mit eigenem Eingang, zwei Wohnungen sind mit Loggia oder Terrasse ausgestattet. Zur Grundausstattung jeder Wohnung gehört eine Küche, ein voll
eingerichtetes Badezimmer. Die Böden bestehen aus Laminat und Fliesen. Das Haus wird mit Gas -Fußbodenheizung beheizt.
Der Verkaufspreis versteht sich netto. Hinzu kommen noch die 20% USt.
Die Nettomieteinnahmen im Monat betragen derzeit € 5068,76.-, Nettojahreseinnahmen € 60825,12.-
Aufgrund der Nachweispflicht gegenüber dem Eigentümer ersuchen wir um Verständnis, dass nur Anfragen mit der Angabe der vollständigen Anschrift und Telefonnummer bearbeitet werden können.
Wir weisen auf Ihre 14-tägige Rücktrittsfrist (gemäß § 11 FAGG ) hin. Um Ihre Rechte zu wahren, können nur Anfragen mit vollständigen Kontaktdaten (Name, Adresse, Telefon, Email) beantwortet werden. Vor Ablauf der 14-tägigen Rücktrittsfrist werden wir gerne für Sie tätig, wenn Sie gesetzeskonform (FAGG) uns ausdrücklich (am einfachsten per E-Mail) dazu auffordern.
Wenn der Kaufvertrag/der Mietvertrag nicht zustande kommt, bleibt unsere Tätigkeit für Sie vollkommen kostenlos.
Wir weisen auf das bestehende wirtschaftliche Naheverhältnis zum Verkäufer hin iSd gesetzlichen anwendbaren Bestimmungen.
Im Zuge eines Liegenschaftserwerbs fallen auch Grunderwerbsteuern und Grundbucheintragungsgebühren (4,6 % vom KP) an, sowie allenfalls die Einverleibung eines Pfandrechts, falls Sie die Liegenschaft mittels Kredit finanzieren. Auf die dem Exposé beiliegende Nebenkostenübersicht wird verwiesen.
Ich trete als Doppelmakler auf.
Ich freue mich auf Ihre Nachricht und stehe Ihnen für weitere Fragen zur Verfügung. Sie erreichen mich unter 0676 6086484.
Wir weisen darauf hin, dass zwischen dem Vermittler und dem zu vermittelnden Dritten ein familiäres oder wirtschaftliches Naheverhältnis besteht.
Der Vermittler ist als Doppelmakler tätig.
Infrastruktur / Entfernungen
Gesundheit
Arzt <500m
Apotheke <500m
Klinik <4.500m
Krankenhaus <5.500m
Kinder & Schulen
Kindergarten <500m
Schule <1.000m
Nahversorgung
Supermarkt <500m
Bäckerei <500m
Einkaufszentrum <4.500m
Sonstige
Bank <500m
Geldautomat <500m
Post <500m
Polizei <500m
Verkehr
Bus <500m
Bahnhof <1.500m
Straßenbahn <5.000m
Autobahnanschluss <1.500m
Flughafen <3.500m
Angaben Entfernung Luftlinie / Quelle: OpenStreetMap
Provision: 3% des Kaufpreises zzgl. 20% USt.