MEIN ERGEBNIS ANPASSEN

Traumwohnung | Traumterrassen | Traumlage - Objektnr. 5607947


ökologisch beheizt
virtuell besichtigen
1110
Ort
88,00 m²
Fläche
3.0
Zimmer
WEITERE MEDIEN

Virtuelle Rundgänge


ECKDATEN
FindMyHome.at // Externe Immobilien-ID5607947 // 6619
ImmobilienartWohnung - Eigentum
Anschrift1110 Wien,Simmering
Baujahr2014
Befeuerung
Fernwärme
Stock3
Terrassen1 (54,00 m²)
Zimmer3.0
Bad1
WC1
Kaufpreis:€ 399.000,00
Ratenzahlung:Finanzierungsmöglichkeiten für diese Immobilie anzeigen
Provision: 3% des Kaufpreises zzgl. 20% USt.







BESCHREIBUNG

Traumwohnung | Traumterrassen | Traumlage

Diese Wohnung ist vor allem für Paare und Familien zur Eigennutzung geeignet und verfügt über ausgezeichnete Anbindung, Nahversorgung und Freizeitwert. Das Highlight stellen die sehr großzügigen Freiflächen dar.

 

3D TOUR:

Verschaffen Sie sich einen perfekten Ersteindruck von den Räumlichkeiten mit unserer virtuellen Tour:

 

Klicken Sie bitte hier zu unserer 3D-Tour

 

LAGE

Zentralste Lage und hoher Freizeitwert - Die Wohnung befindet sich in einem der attraktivsten Grätzl von Simmering mit hervorragender öffentlicher Anbindung (U-Bahn, Straßenbahn und Bus direkt vor der Türe). Einerseits nahe zum Bezirkszentrum mit perfekter Nahversorgung und Infrastruktur sowie andererseits hoher Freizeitwert durch Nähe zu den Simmeringer Erholungsgebieten und dem Wiener Prater.

 

OBJEKTBESCHREIBUNG:

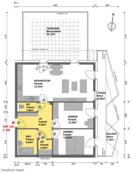
Perfekte Raumnutzung und traumhafte, großzügige Freiflächen - Hier haben Paare und Familien genügend Platz auf effizient genutztem Raum. Der Grundriss ist perfekt. Insgesamt 3 Zimmer, davon 2 Schlafzimmer und ein großes Wohnzimmer mit räumlich abgeteilter offener Küche mit allen elektrischen Geräten, Bad mit Wanne und Waschmaschine, separate Toilette mit Handwaschbecken, praktischer Abstellraum und als Highlight insgesamt 54m2 Freiflächen aufgeteilt auf eine riesige Terrasse, Loggia und Balkon. Alle Räume sind zentral über das Vorzimmer begehbar. Ein Kellerabteil, Fahrrad- sowie Kinderwagen-Abstellraum sind im sehr gepflegten Haus vorhanden.

 

AUSSTATTUNG:

Ausgezeichnet erhaltene Wohnung - Die Wohnung wurde bisher ausschließlich von der Eigentümerfamilie selbst genutzt, die sehr sorgsam mit der Wohnung umgegangen ist. Die Wohnung kann deshalb bezogen werden wie sie ist. Sie ist mit Parkettböden in den Wohnräumen und Fliesen in den Nassräumen ausgestattet und wird mit Fernwärme beheizt. Die Wohnraumbelüftung erzeugt angenehmes Wohnklima. Insgesamt verfügt die Wohnung über ausgezeichnete Energieeffizienz. Die Wohnung wird mit Küche ansonsten unmöbliert übergeben.

 

SONSTIGES:

Wohnkomfort - Insgesamt bieten die Entwicklung des Grätzls, die überzeugende Anbindung, der hohe Freizeitwert, der effiziente Grundriss der Wohnung und die traumhaften Freiflächen hohe Lebensqualität und Wohnkomfort zu einem vernünftigen Preis-Leistungsverhältnis.

Es kann optional ein schöner Kfz-Stellplatz in der Tiefgarage der Wohnhausanlage um € 24.000,- zusätzlich erworben werden.

 

Nähere Details, sowie eine virtuelle 3D Tour, erhalten Sie in Ihrem persönlichen Expose auf Anfrage!

Es wird auf ein persönliches / wirtschaftliches Naheverhältnis zum Eigentümer hingewiesen.

Wir weisen darauf hin, dass zwischen dem Vermittler und dem zu vermittelnden Dritten ein familiäres oder wirtschaftliches Naheverhältnis besteht.

Der Vermittler ist als Doppelmakler tätig.

Herr Mag. Norbert Brigelhuber, Mobil: +43 664 9122958, Mail: n.brigelhuber@advanta.at, steht für ein persönliches Gespräch sowie für einen Besichtigungstermin gerne zur Verfügung.


Infrastruktur / Entfernungen

Gesundheit
Arzt <500m
Apotheke <500m
Klinik <1.500m
Krankenhaus <3.000m

Kinder & Schulen
Schule <500m
Kindergarten <500m
Universität <2.000m
Höhere Schule <2.000m

Nahversorgung
Supermarkt <500m
Bäckerei <500m
Einkaufszentrum <500m

Sonstige
Geldautomat <500m
Bank <500m
Post <500m
Polizei <500m

Verkehr
Bus <500m
U-Bahn <500m
Straßenbahn <500m
Bahnhof <500m
Autobahnanschluss <1.500m

Angaben Entfernung Luftlinie / Quelle: OpenStreetMap

Barrierefrei: JA
Provision: 3% des Kaufpreises zzgl. 20% USt.


Alle Details anzeigen

KONTAKT






 

Lasse dich kostenlos vom Anbieter dieser Immobilie zurückrufen.







 


 
ADVANTA ? Immobilienvermittlungs GmbH
Norbert Brigelhuber
Telefonnummer anzeigen Telefon Allgemein: +4314098400
Handy Bearbeiter: +436649122958
 
Bitte dem Makler die FindMyHome.at - ID bekanntgeben: 5607947

Bewertungen dieses Anbieters
Qualitätsmakler
Qualitätsmakler:
2020, 2021,
Netiquette
Freundlichkeit
87 %

BEWERTUNGEN DIESES ANBIETERS

 
Qualit�tsmakler
Qualitätsmakler
2020, 2021
Weiterempfehlung
WIRD SEHR GERNE

Freundlichkeit
BESONDERS
FREUNDLICH
Netiquette
FINDMYHOME
NETIQUETTE
Auch du kannst bewerten! 7 Tage nach deiner Anfrage erhältst du dafür von uns ein Bewertungsmail.
Alle Infos zu unseren Auszeichnungen und dem FINDMYHOME.AT Qualitätsprogramm findest du hier: Übersicht anzeigen

FINANZIERUNG
?>

Du willst wissen, wie viel dein Umzug kosten wird?

Mach gleich den kostenlosen Preisvergleich und schau, welche seriösen Anbieter in deiner Region günstig deinen Umzug organisieren


ZUM UMZUGS-VERGLEICH
-->

MYHOME BLOG
SuchAgentin auf FindMyHome.at
Unterschiedlichen Rechtsthemen, köstliche Rezepte, neueste Design-Highlights, sowie aktuelle Technik-Tools für Ihr Eigenheim.


FINDMYHOME.AT SUCHAGENTIN
SuchAgentin auf FindMyHome.at
Hallo, soll ich dir ähnliche Immobilien kostenfrei per E-Mail schicken?


ÄHNLICHE IMMOBILIEN
Aehnliche Immobilie - Vorschaubild 1

Wohnen auf einer Ebene ? hell und ruhig - Objektnr. 5599172


80,00 m² - 4.0 Zimmer
450000 €
PLZ: 1110

Mehr anzeigen

Aehnliche Immobilie - Vorschaubild 2

=DAS LAURENZ= ERSTBEZUG Top Anlage Wohnung U3 2 Zimmer + Log... - Objektnr. 5606065

57,49 m² - 2.0 Zimmer
372262.5 €
PLZ: 1110

Mehr anzeigen

Aehnliche Immobilie - Vorschaubild 3

ZU HAUSE AM PULS DER STADT - Objektnr. 5602374


44,52 m² - 2 Zimmer
335000 €
PLZ: 1110

Mehr anzeigen

Durch die Nutzung unserer Seite erklären Sie sich mit der Verwendung von Cookies zur Verbesserung Ihres Online-Erlebnisses einverstanden. Detaillierte Informationen zu diesem und weiteren Themen erhalten Sie in unserer Datenschutzerklärung.