MEIN ERGEBNIS ANPASSEN

Stylish wohnen mit Weitblick - 3-Zimmer-Terrassenwohnung mit Naturflair - Objektnr. 5607271

virtuell besichtigen
8073
Ort
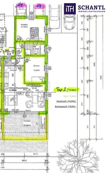
72,32 m²
Fläche
3.0
Zimmer
WEITERE MEDIEN

Dokumente

Virtuelle Rundgänge


ECKDATEN
FindMyHome.at // Externe Immobilien-ID5607271 // 294028
ImmobilienartEigentum
AnschriftJoseph-Haydn-Gasse
8073 Graz
Baujahr2009
Stock1
Fläche72,32 m²
Terrassen1 (25,00 m²)
Zimmer3.0
Bad1
WC1
Kaufpreis:€ 319.000,00
Ratenzahlung:Finanzierungsmöglichkeiten für diese Immobilie anzeigen
Provision: 3% des Kaufpreises zzgl. 20% USt.







BESCHREIBUNG

Stylish wohnen mit Weitblick - 3-Zimmer-Terrassenwohnung mit Naturflair

Stylish wohnen mit Weitblick 3-Zimmer-Terrassenwohnung mit Naturflair

 

Urbaner Lifestyle trifft grüne Ruhe Ihr neues Zuhause mit Wow-Faktor. In einem exklusiven Wohnhaus mit nur vier Einheiten erwartet Sie diese traumhafte 3-Zimmer-Wohnung im 1. Obergeschoss, ein echtes Design-Highlight mit sonniger Terrasse, cleverer Raumaufteilung und herrlichem Grünblick. Mit 72 m² Wohnfläche, einer großzügigen Terrasse und zwei privaten Parkplätzen bietet diese Wohnung alles, was modernes Wohnen heute ausmacht, Komfort, Stil und Lebensqualität.

Fakten der Top 2:

  • WFL von 72,32m²
  • Hauptschlafzimmer mit 14,79 m²
  • weiteres Schlafzimmer mit 12,25 m²
  • helles Badezimmer mit Fenster, Dusche, Badewanne & Waschmaschinenanschluss
  • separates WC mit Handwaschbecken
  • einladende Diele mit 4,01 m²
  • KFZ-Abstellplatz Nr.07 & Nr.11
  • ein großzügiges Kellerabteil mit 14,25 m² bietet praktischen Stauraum. Für Ihren Komfort sind zwei KFZ-Abstellplätze (Nr. 07 & 11) im Eigentum inkludiert
  • die monatlichen Kosten belaufen sich auf ca. € 370,00 netto inklusive Betriebs-, Heiz- und Warmwasserkosten sowie Rücklage
  • Provision 3% zuzüglich UST

hier geht´s zum 360°- Rundgang

 

Highlights zur Wohnung Top 2:

  • perfekte Raumaufteilung und großzügige Wohnfläche
  • die 72,32m² dieser Wohnung sind optimal aufgeteilt, was ein besonders komfortables und großzügiges Wohnen ermöglicht, der durchdachte Grundriss sorgt für helle und gut nutzbare Räume, die eine einladende Atmosphäre schaffen
  • ein Highlight der Wohnung ist die großzügige Terrasse, mit ungefähr 25 m² sie bietet genug Platz für gemütliche Abende im Freien, BBQs mit Freunden oder entspannte Stunden mit Blick ins Grüne, der ungestörte, idyllische Ausblick auf die umliegende Natur ist eine wahre Oase der Ruhe
  • das Badezimmer lässt keine Wünsche offen, es ist mit einer modernen Badewanne und einer separaten Dusche ausgestattet, was den Alltag komfortabel gestaltet und Ihnen die Möglichkeit bietet, nach einem langen Tag sowohl Entspannung als auch Funktionalität zu genießen
  • die in der gesamten Wohnung installierte Fußbodenheizung sorgt für eine angenehme und gleichmäßige Wärme, besonders in den kühleren Monaten, sie verleiht dem Zuhause nicht nur ein gemütliches Wohngefühl, sondern bietet auch modernen Wohnkomfort auf höchstem Niveau
  • zwei private Abstellplätze sind im KP inkludiert!
  • ein weiterer Vorteil dieser Immobilie sind die zwei zur Wohnung gehörenden KFZ-Abstellplätze, sie bieten Ihnen und Ihren Gästen jederzeit bequeme Parkmöglichkeiten direkt vor der Haustür eine absolute Seltenheit in der heutigen Zeit
  • zur Wohnung gehört außerdem ein außergewöhnlich großes Kellerabteil, extra viel Stauraum - mit 14,25m², hier finden Sie ausreichend Platz für Fahrräder, saisonale Gegenstände oder Hobbyzubehör, dieser großzügige Stauraum sorgt dafür, dass Ihr Wohnraum frei und offen bleibt, während Sie dennoch alles griffbereit haben
  • die Lage der Wohnung kombiniert das Beste aus Stadt und Land, Sie wohnen ruhig und im Grünen, sind aber in wenigen Minuten in Graz oder beim beliebten Shoppingcenter Seiersberg, öffentliche Verkehrsmittel, Schulen, Kindergärten und Einkaufsmöglichkeiten sind alle in unmittelbarer Nähe und schnell erreichbar.
  • die moderne Bauweise und die energieeffiziente Ausstattung machen die Wohnung nicht nur kostensparend, sondern auch zukunftssicher, niedrige Betriebskosten und ein nachhaltiger Umgang mit Ressourcen sind hier garantiert
  • ideal für Paare, kleine Familien, oder als Investment
  • diese Wohnung ist perfekt für Paare oder kleine Familien, die modernen Komfort schätzen und das Leben im Grünen suchen, aber auch für Investoren, die in eine gefragte Lage investieren möchten, die Kombination aus großzügiger Terrasse, moderner Ausstattung und hervorragender Anbindung an Graz macht diese Wohnung zu einem attraktiven Gesamtpaket 

 

Worauf noch warten

Vereinbaren Sie noch heute eine Besichtigung oder mit uns! Sie wollen Ihre Immobilie verkaufen Dann sind Sie bei uns goldrichtig Wir sind gerne für Sie da und unterstützen Sie unverbindlich bei der Bewertung Ihrer Immobilie. Mit viel Sorgfalt stellen wir Ihnen alle wichtigen Informationen und Unterlagen zusammen, damit Sie die besten Entscheidungen treffen können. In Kooperation mit unserer SFI Vermögenstreuhand begleiten wir Sie bei der Verwirklichung Ihres Traumobjekts und unterstützen Sie beim nachhaltigen Vermögensaufbau. Mit unseren erfahrenen Experten sorgen wir dafür, dass Sie die besten Konditionen erhalten damit Ihre Träume Wirklichkeit werden!


www.schantl-ith.at in Kooperation mit sfi-invest.com


Die Angaben über das angebotene Objekt erfolgen mit der Sorgfalt eines ordentlichen Immobilienmaklers; für die Richtigkeit solcher Angaben, die auf Informationen der über das Objekt Verfügungsberechtigten beruhen, wird keine Gewähr geleistet!

 

 

 

Wir weisen darauf hin, dass zwischen dem Vermittler und dem zu vermittelnden Dritten ein familiäres oder wirtschaftliches Naheverhältnis besteht.

Der Vermittler ist als Doppelmakler tätig.


Infrastruktur / Entfernungen

Gesundheit
Arzt <1.000m
Apotheke <2.750m
Klinik <8.750m
Krankenhaus <6.500m

Kinder & Schulen
Schule <1.000m
Kindergarten <1.000m
Universität <7.750m
Höhere Schule <8.500m

Nahversorgung
Supermarkt <250m
Bäckerei <2.500m
Einkaufszentrum <4.500m

Sonstige
Geldautomat <1.500m
Bank <1.500m
Polizei <1.250m
Post <3.000m

Verkehr
Bus <250m
Straßenbahn <5.250m
Autobahnanschluss <2.750m
Bahnhof <1.250m
Flughafen <1.500m

Angaben Entfernung Luftlinie / Quelle: OpenStreetMap

Kabel/SAT/TV: JA
Provision: 3% des Kaufpreises zzgl. 20% USt.


Alle Details anzeigen

KONTAKT






 

Lasse dich kostenlos vom Anbieter dieser Immobilie zurückrufen.







 


 
Schantl ITH Immobilientreuhand GmbH
Ursula Seiwald
Telefonnummer anzeigen Handy Bearbeiter: +436645725475
 
Bitte dem Makler die FindMyHome.at - ID bekanntgeben: 5607271

Bewertungen dieses Anbieters
Qualitätsmakler
Qualitätsmakler:
2015, 2016, 2018, 2019, 2020, 2021, 2023 , 2024, 2025,
Netiquette
Freundlichkeit
80 %

BEWERTUNGEN DIESES ANBIETERS

 
Qualit�tsmakler
Qualitätsmakler
2015, 2016, 2018, 2019, 2020, 2021, 22/23, 2024, 2025
Antwortzeit
ø 48h ANTWORT
Weiterempfehlung
WIRD GERNE

Freundlichkeit
BESONDERS
FREUNDLICH
Netiquette
FINDMYHOME
NETIQUETTE
Auch du kannst bewerten! 7 Tage nach deiner Anfrage erhältst du dafür von uns ein Bewertungsmail.
Alle Infos zu unseren Auszeichnungen und dem FINDMYHOME.AT Qualitätsprogramm findest du hier: Übersicht anzeigen

FINANZIERUNG
?>

Du willst wissen, wie viel dein Umzug kosten wird?

Mach gleich den kostenlosen Preisvergleich und schau, welche seriösen Anbieter in deiner Region günstig deinen Umzug organisieren


ZUM UMZUGS-VERGLEICH
-->

MYHOME BLOG
SuchAgentin auf FindMyHome.at
Unterschiedlichen Rechtsthemen, köstliche Rezepte, neueste Design-Highlights, sowie aktuelle Technik-Tools für Ihr Eigenheim.


FINDMYHOME.AT SUCHAGENTIN
SuchAgentin auf FindMyHome.at
Hallo, soll ich dir ähnliche Immobilien kostenfrei per E-Mail schicken?


ÄHNLICHE IMMOBILIEN
Aehnliche Immobilie - Vorschaubild 1

Licht, Luft & Lebensqualität - Traumhafte 3-Zimmer-Wohnung m... - Objektnr. 5607270

72,32 m² - 3.0 Zimmer
319000 €
PLZ: 8073

Mehr anzeigen

Durch die Nutzung unserer Seite erklären Sie sich mit der Verwendung von Cookies zur Verbesserung Ihres Online-Erlebnisses einverstanden. Detaillierte Informationen zu diesem und weiteren Themen erhalten Sie in unserer Datenschutzerklärung.